Selene by IMSU Homes

DISPLAY HOME

A home of boundless wonder.

Inspired by the boundless, celestial beauty of the mythological titan goddess, the Selene is a residence that exudes space, sophistication and comfort. This expansive home offers a sanctuary that echoes the majestic serenity of the night sky.

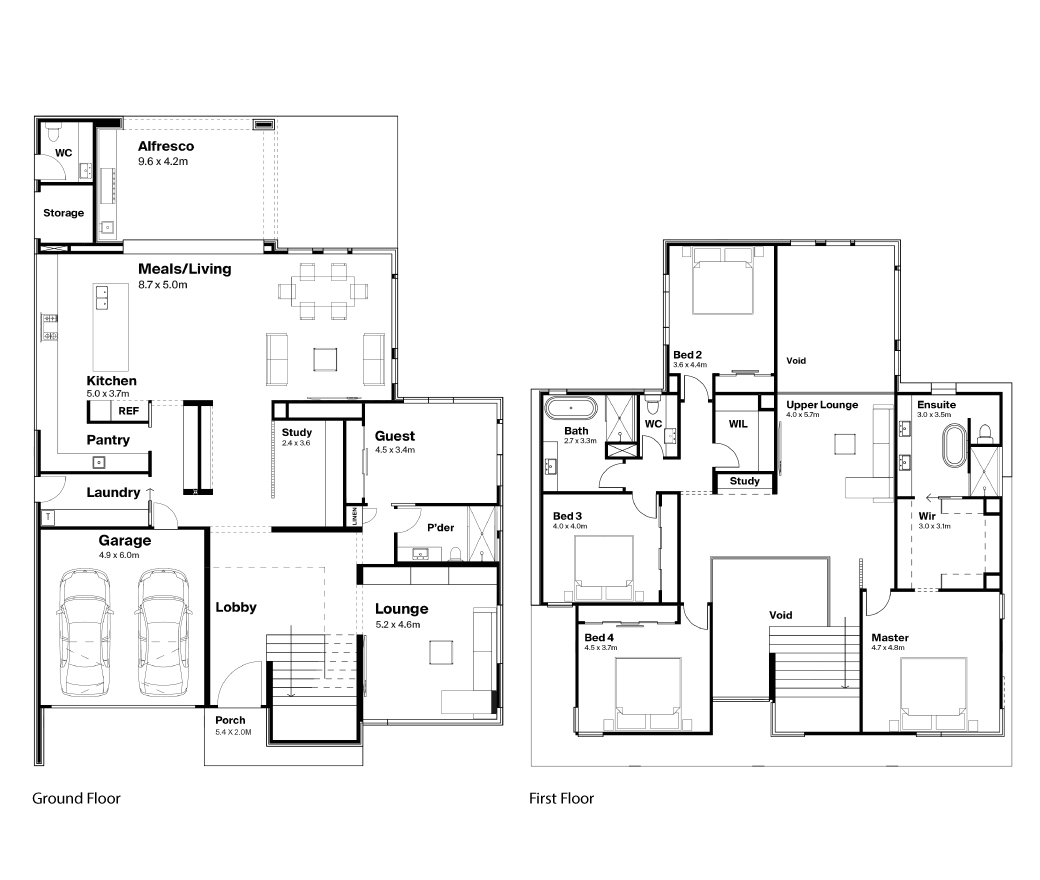
Entering the lobby of the home, this inspiration is immediately apparent, with a soaring void and grand, oversized staircase both featured in the light-filled entry lobby area.

The main living, dining and kitchen area is spacious, relaxing, and inviting. Featuring high ceilings and another gorgeous feature void, this expansive space exudes understated elegance, with the generous application of glazing to connect to the outside world. A sprawling adjoined alfresco area offers the tantalising potential of inside/outside living and entertainment. The addition of plentiful storage space, as well as a huge butler’s pantry, make the area not only practical, but beautiful as well.

Throughout the remainder of the ground floor, purposefully-appointed additional private study and lounge areas offer the opportunity for productivity or secluded relaxation if so desired. A beautiful downstairs guest bedroom offers an inviting and homely space for overnight guests.

Ascending to the first floor, a secondary living area overlooks the main ground-floor living area, creating a sense of connectivity across levels.

The huge master bedroom, complete with enormous walk-in-robe and luxurious ensuite, brings a sense of glamour and occasion to everyday living.

The three additional first-floor bedrooms are generously-proportioned, and include ample storage. The luxurious, spacious first-floor bathroom and adjacent powder room is positioned at the centre of the floor, conveniently accessible for all.


Floor-plan options for Selene

Selene 57
Bed 5
Bath 4
Living 4
Car 2
Builder: IMSU Homes
Home Design: Selene
Floor Area: 525.3m2
House Width: 15.99m
House Length: 22.16m

Display Homes & 3D Tours for Selene by IMSU Homes

Loading...