
Commander by JG King Homes
DISPLAY HOME
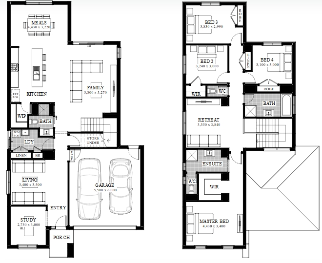
Take charge of your home life with Commander - the double storey home that keeps on giving to families of all sizes. This floorplan consists of four bedrooms. Downstairs living spaces and clever storage solutions in the form of wardrobes, linen closets and even an under-stair storage area. There’s enough room for the whole family to enjoy their time together or privately, made better with a huge open plan family, meals and kitchen space that opens to the great outdoors
Display Homes & 3D Tours for Commander by JG King Homes
Loading...
4