
Fitzroy by JG King Homes
DISPLAY HOME
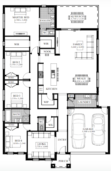
Impeccable design makes Fitzroy impressive from the moment you step in the door. With an expansive living space and large bedrooms, Fitzroy is ideal for the growing family. A study nook near the kitchen allows you to keep an eye on homework while you prepare meals. Then, take a well-earned break in the family room nearby. With living areas on one side and bedrooms zoned on the other, private spaces are kept away from the livelier areas of the home to make entertaining and peaceful nights possible at the same time.
Display Homes & 3D Tours for Fitzroy by JG King Homes
Loading...
4
