Alabama by Kialla Homes

DISPLAY HOME

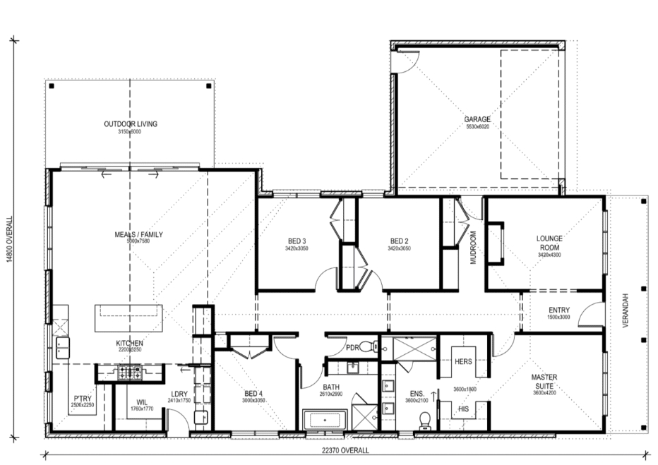
The Alabama boasts stunning coastal Hamptons styling, combining yesteryear charm with modern beachside living. It features a cozy lounge/office, a spacious Master Bedroom with walk-through robes and a beautifully designed ensuite. The Family, Kitchen, and Meals areas have vaulted ceilings with exposed beams, leading to an elegant Outdoor entertaining space with triangle windows above bi-parting doors.

The classic Hamptons style two-tone Kitchen offers a glass overhead, coffee station, and a spacious Island bench with a farmhouse sink below the window. Additionally, there’s a walk-in pantry and laundry on either side and behind the kitchen, ideal for a busy family.

The home includes a walk-through mudroom from the Garage with extra coat cupboard storage. It also boasts a luxury-sized bathroom and three space-filled bedrooms, with several optional sizes available. Nothing has been left out in this well-appointed home.


Floor-plan options for Alabama

Alabama 286
Bed 4
Bath 2
Living 2
Car 2
Home Design: Alabama
Floor Area: 266.23m2
House Width: 14.8m
House Length: 22.37m

Display Homes & 3D Tours for Alabama by Kialla Homes

Loading...
Alabama by Kialla Homes