Carolina by Kialla Homes

DISPLAY HOME

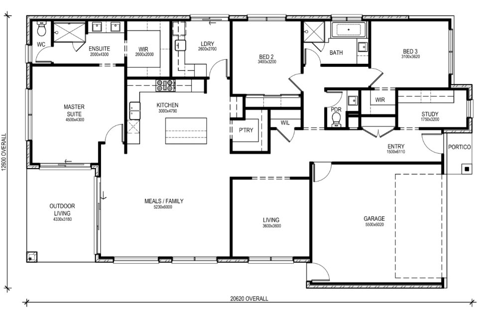
The Carolina is an idyllic retreat designed with downsizers in mind. Upon entering, you’ll be welcomed by earthy tones and coastal horizontal VJ Panelling on the walls, complemented by the convenience of an internal garage access door and abundant storage. Not to mention, a generously sized study nook awaits.

This captivating floor plan includes three large bedrooms, a well-appointed bathroom, and a beautiful central powder room. The Master Bedroom, positioned at the rear, ensures privacy and relaxation. Two central living areas create ample space for your comfort, and the outdoor living area, accessible from both the family room and master bedroom, provides a delightful retreat.

The light-filled Kitchen and Family Meals area cater perfectly to a couple or single dweller, offering everything one could desire. The contemporary coastal Kitchen boasts double wall ovens and plenty of drawers for easy living. You’ll find a spacious walk-in pantry with benches, cupboards, and shelving, as well as a large laundry, all in pleasing two-tone earthy colours, completing the ideal design.

 


Floor-plan options for Carolina

Carolina 253
Bed 3
Bath 2.5
Living 2
Car 2
Home Design: Carolina
Floor Area: 235.50m2
House Width: 12.6m
House Length: 20.62m

Display Homes & 3D Tours for Carolina by Kialla Homes

Loading...
Carolina by Kialla Homes