Ascot by King Homes NSW

DISPLAY HOME

Introducing the Ascot, a versatile and popular double-storey home by King Homes NSW. Available in five different designs, the Ascot can be configured as either a four or five-bedroom home, perfectly suiting the diverse needs of modern families.

Why You’ll Love the Ascot:

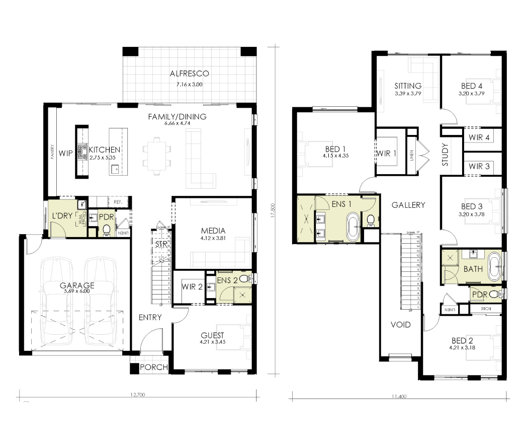
Flexible Bedroom Options: The Ascot can be customised to feature either four or five spacious bedrooms, providing flexibility to meet your family’s needs. The main suite includes a walk-in robe and a luxurious ensuite, creating a private retreat for parents. An additional guest bedroom with an ensuite is located on the ground floor, offering privacy and comfort for visitors.

Versatile Living Areas: Designed with multiple living spaces, the Ascot includes a large open-plan family and dining area, a separate media room, a sitting room, and a study. These areas are perfect for entertaining, relaxing, and productive activities, catering to the varied needs of a modern family.

Modern Kitchen: The contemporary kitchen is equipped with a walk-in pantry, making meal preparation enjoyable and efficient. Its central location ensures easy access to the dining and living areas, ideal for both everyday living and entertaining guests.

Functional Design: The layout of the Ascot maximises space and practicality. The laundry room and linen closet are conveniently located close to the kitchen and living areas, enhancing functionality. The inclusion of a walk-in pantry and multiple storage spaces provides ample storage and preparation areas. The upper floor features a gallery and void area, adding a touch of sophistication to the home.

Outdoor Enjoyment: The spacious alfresco area extends the living space outdoors, providing a perfect spot for dining, entertaining, or simply enjoying the fresh air. Additionally, a balcony on the upper floor adds an extra element of outdoor living.

 


Floor-plan options for Ascot

Ascot 38
Bed 5
Bath 3.5
Living 3
Car 2
Home Design: Ascot
Floor Area: 354 m2
House Width: 12.7m
House Length: 18.5m

Display Homes & 3D Tours for Ascot by King Homes NSW

Loading...