Horizon by Lily Homes

DISPLAY HOME

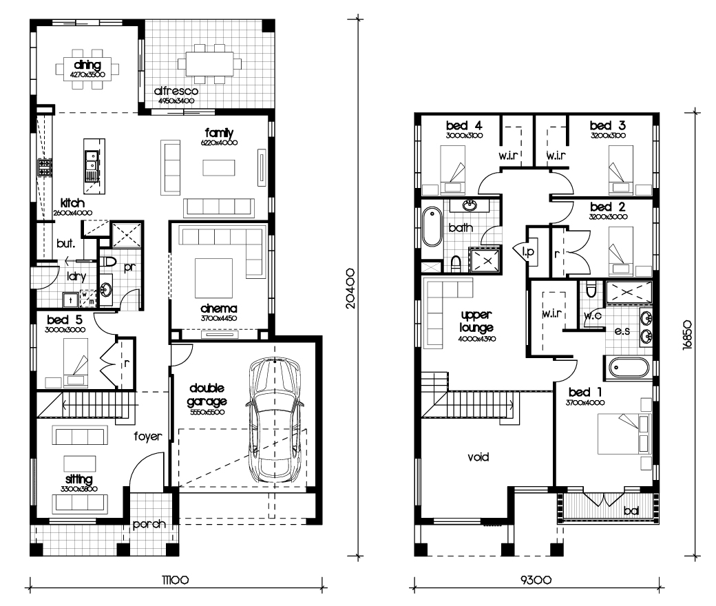
The Horizon proves you don’t have to compromise on features with a smaller block.

The master bedroom in this two storey design has its own private balcony accessible by gorgeous French doors. It also features a walk-in wardrobe and ensuite. The other three bedrooms have built-in wardrobes and are close to the main bathroom and upstairs lounge area, an ideal hub for relaxing or even gaming.

You’ll love the beautiful kitchen with bench space and a scullery to make cooking for guests a breeze The family and dining area are in this same open plan area of the home and provide access to the alfresco where you can enjoy meals with family and friends.

Other wonderful features include a cinema room for movie nights and a dedicated study area for homework or office work.
 


Floor-plan options for Horizon

Horizon 36
Bed 4
Bath 2
Living 2
Car 2
Builder: Lily Homes
Home Design: Horizon
Floor Area: 329m2
House Width: 11m
House Length: 19.2m

Display Homes & 3D Tours for Horizon by Lily Homes

Loading...

More House and Land Packages by Lily Homes (Home Builder)

Bed  5 Bath  3 Car  2
Suburb: Orchard Hills NSW 2748
Builder: Lily Homes
Land Size: 306.00m²
A brand new masterplanned community close to transport, shops and schools, Orchard Hills North provides the opportunity enjoy all the benefits of urban convenience in a beautiful setting.

Set among rolling hills with panoramic views to the Blue Mountains, OHN will include a new village centre with shops and a proposed primary school as well as sporting fields, parkland and waterways. In addition, the new Metro station at Orchard Hills is 2km down the road and the new Western Sydney airport is just 14km away.

The Ruby 28 Guest Bed by Lily Homes on Lot 5112 is a contemporary double storey home perfectly suited to maximise this 306sqm homesite. The home features 5 bedrooms + study hub, 3 bathrooms, multiple living areas, double garage and includes:

• Upgraded 2.59m ceiling heights to the ground floor.
• Fully ducted premium Actron air-conditioning.
• Bulkhead to kitchen cabinetry, with cabinetry above the fridge space.
• Glazed porcelain tiling throughout the entry, hallways and kitchen/family/dining.
• Premium carpet range to balance of the home.
• 20mm stone benchtops throughout kitchen and bathrooms.
• Freestanding bath, floating vanities and niches to shower recess.
• Insect screens to openable windows.
• Remote controlled garage door.
• Fisher & Paykel appliances.
• Extended laundry stone benchtop with cupboards under.
• 1.2 wall tiles to all bathrooms.
• Fully tiled entry and alfresco.
• Colour on driveway
Price: $1,271,900