Regency by Lily Homes

DISPLAY HOME

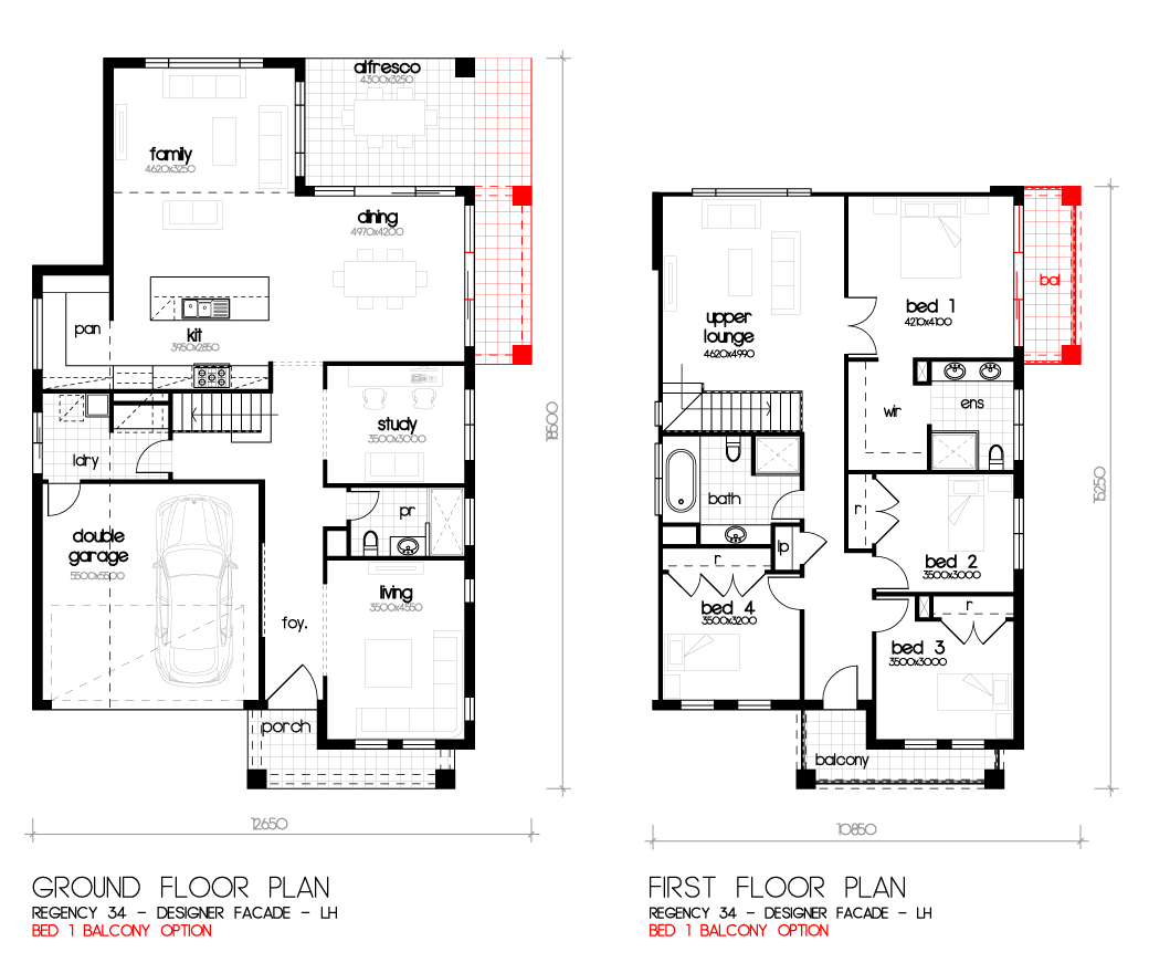
The Regency 34 is a beautiful two-story structure that is ideal for a large family needing additional space. The downstairs is perfectly designed for guests, as you have a spacious family room, a separate dining area, a front entry meeting area, plus a study that can be a functional work space or a quiet place for the kids to focus on their homework. An alfresco dining area allows you to enjoy the morning sun or the late afternoon sky as you enjoy your meal.

Heading upstairs, there are four spacious bedrooms, and two full baths. Each bedroom comes with a walk-in closet, and has plenty of window space to provide natural light. Plus, an upper lounge area provides an additional family space where you can enjoy a late evening movie together before heading to bed. Add in a double garage and this is a home that is perfect for any family.
 


Floor-plan options for Regency

Regency 34 Corner Option
Bed 4
Bath 3
Living 2
Car 2
Builder: Lily Homes
Home Design: Regency
Floor Area: 306.7m2
House Width: 11.2m
House Length: 17.5m

Display Homes & 3D Tours for Regency by Lily Homes

Loading...

More House and Land Packages by Lily Homes (Home Builder)

Bed  5 Bath  3 Car  2
Suburb: Orchard Hills NSW 2748
Builder: Lily Homes
Land Size: 306.00m²
A brand new masterplanned community close to transport, shops and schools, Orchard Hills North provides the opportunity enjoy all the benefits of urban convenience in a beautiful setting.

Set among rolling hills with panoramic views to the Blue Mountains, OHN will include a new village centre with shops and a proposed primary school as well as sporting fields, parkland and waterways. In addition, the new Metro station at Orchard Hills is 2km down the road and the new Western Sydney airport is just 14km away.

The Ruby 28 Guest Bed by Lily Homes on Lot 5112 is a contemporary double storey home perfectly suited to maximise this 306sqm homesite. The home features 5 bedrooms + study hub, 3 bathrooms, multiple living areas, double garage and includes:

• Upgraded 2.59m ceiling heights to the ground floor.
• Fully ducted premium Actron air-conditioning.
• Bulkhead to kitchen cabinetry, with cabinetry above the fridge space.
• Glazed porcelain tiling throughout the entry, hallways and kitchen/family/dining.
• Premium carpet range to balance of the home.
• 20mm stone benchtops throughout kitchen and bathrooms.
• Freestanding bath, floating vanities and niches to shower recess.
• Insect screens to openable windows.
• Remote controlled garage door.
• Fisher & Paykel appliances.
• Extended laundry stone benchtop with cupboards under.
• 1.2 wall tiles to all bathrooms.
• Fully tiled entry and alfresco.
• Colour on driveway
Price: $1,271,900