DISPLAY HOME

The beautiful Ruby is a double storey home that pairs functionality with style.

You’ll love the kitchen and the large walk-in pantry. No more overcrowded cupboards or appliances on benches. The meals and family area seamlessly adjoin the kitchen in a modern open plan layout. Both the kitchen and family rooms have sliding doors leading to the alfresco area.

A large theatre room adds to the entertainment value of the home, suitable for quiet nights in with the family or movie nights with friends.

A small study nook, along with a powder room and laundry with outdoor access, add to the functionality of the ground floor layout.

The upper level is just as functional, comprising of three bedrooms with built-in wardrobes and a master bedroom with a walk through wardrobe and ensuite. In one configuration of the design, there is also space for a sitting room upstairs.
 


Floor-plan options for Ruby

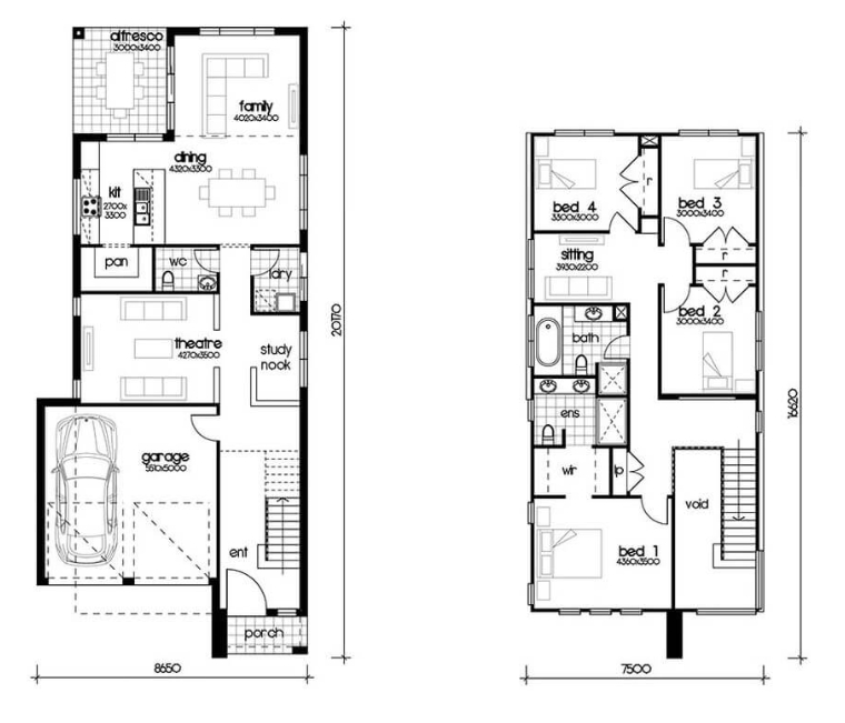
Ruby 25 MK III
Bed 4
Bath 2
Living 3
Car 2
Builder: Lily Homes
Home Design: Ruby
Floor Area: 241.7m2
House Width: 8.7m
House Length: 18.8m
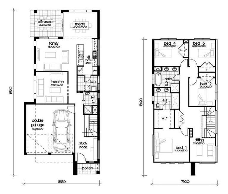
Ruby 28
Bed 4
Bath 2
Living 2
Car 2
Builder: Lily Homes
Home Design: Ruby
Floor Area: 290.8m2
House Width: 8.7m
House Length: 20.7m

Display Homes & 3D Tours for Ruby by Lily Homes

Loading...

More House and Land Packages by Lily Homes (Home Builder)

Bed  5 Bath  3 Car  2
Suburb: Orchard Hills NSW 2748
Builder: Lily Homes
Land Size: 306.00m²
A brand new masterplanned community close to transport, shops and schools, Orchard Hills North provides the opportunity enjoy all the benefits of urban convenience in a beautiful setting.

Set among rolling hills with panoramic views to the Blue Mountains, OHN will include a new village centre with shops and a proposed primary school as well as sporting fields, parkland and waterways. In addition, the new Metro station at Orchard Hills is 2km down the road and the new Western Sydney airport is just 14km away.

The Ruby 28 Guest Bed by Lily Homes on Lot 5112 is a contemporary double storey home perfectly suited to maximise this 306sqm homesite. The home features 5 bedrooms + study hub, 3 bathrooms, multiple living areas, double garage and includes:

• Upgraded 2.59m ceiling heights to the ground floor.
• Fully ducted premium Actron air-conditioning.
• Bulkhead to kitchen cabinetry, with cabinetry above the fridge space.
• Glazed porcelain tiling throughout the entry, hallways and kitchen/family/dining.
• Premium carpet range to balance of the home.
• 20mm stone benchtops throughout kitchen and bathrooms.
• Freestanding bath, floating vanities and niches to shower recess.
• Insect screens to openable windows.
• Remote controlled garage door.
• Fisher & Paykel appliances.
• Extended laundry stone benchtop with cupboards under.
• 1.2 wall tiles to all bathrooms.
• Fully tiled entry and alfresco.
• Colour on driveway
Price: $1,271,900