Savannah by Lily Homes

DISPLAY HOME

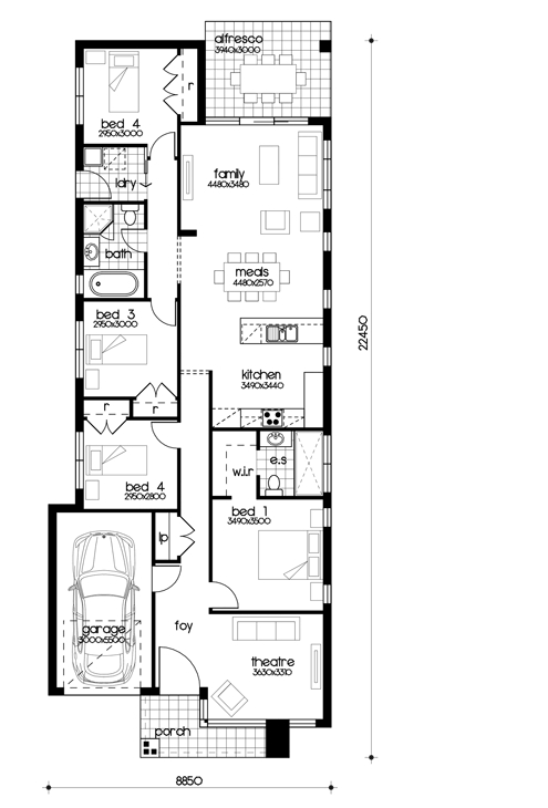
The Savannah is a great single storey home for those just entering the market or looking for a small investment. It’s also suitable for narrow blocks of land.

It features three to four bedrooms, with the master bedroom containing a walk-in wardrobe and ensuite. It also optimises modern living with an open plan that integrates kitchen, meals and family room space. This area then opens up onto an alfresco, ideal for outdoor dining.

With a lovely entrance, laundry with outdoor access, main bathroom featuring both a shower and bathtub and a single car garage with internal access, the Savannah makes a wonderful first home.
 


Floor-plan options for Savannah

Savannah 20 MK II
Bed 4
Bath 2
Living 2
Car 1
Builder: Lily Homes
Home Design: Savannah
Floor Area: 177.3m2
House Width: 8.9m
House Length: 22.5m

Display Homes & 3D Tours for Savannah by Lily Homes

Loading...

More House and Land Packages by Lily Homes (Home Builder)

Bed  5 Bath  3 Car  2
Suburb: Orchard Hills NSW 2748
Builder: Lily Homes
Land Size: 306.00m²
A brand new masterplanned community close to transport, shops and schools, Orchard Hills North provides the opportunity enjoy all the benefits of urban convenience in a beautiful setting.

Set among rolling hills with panoramic views to the Blue Mountains, OHN will include a new village centre with shops and a proposed primary school as well as sporting fields, parkland and waterways. In addition, the new Metro station at Orchard Hills is 2km down the road and the new Western Sydney airport is just 14km away.

The Ruby 28 Guest Bed by Lily Homes on Lot 5112 is a contemporary double storey home perfectly suited to maximise this 306sqm homesite. The home features 5 bedrooms + study hub, 3 bathrooms, multiple living areas, double garage and includes:

• Upgraded 2.59m ceiling heights to the ground floor.
• Fully ducted premium Actron air-conditioning.
• Bulkhead to kitchen cabinetry, with cabinetry above the fridge space.
• Glazed porcelain tiling throughout the entry, hallways and kitchen/family/dining.
• Premium carpet range to balance of the home.
• 20mm stone benchtops throughout kitchen and bathrooms.
• Freestanding bath, floating vanities and niches to shower recess.
• Insect screens to openable windows.
• Remote controlled garage door.
• Fisher & Paykel appliances.
• Extended laundry stone benchtop with cupboards under.
• 1.2 wall tiles to all bathrooms.
• Fully tiled entry and alfresco.
• Colour on driveway
Price: $1,271,900