Boston by Long Island Homes
DISPLAY HOME
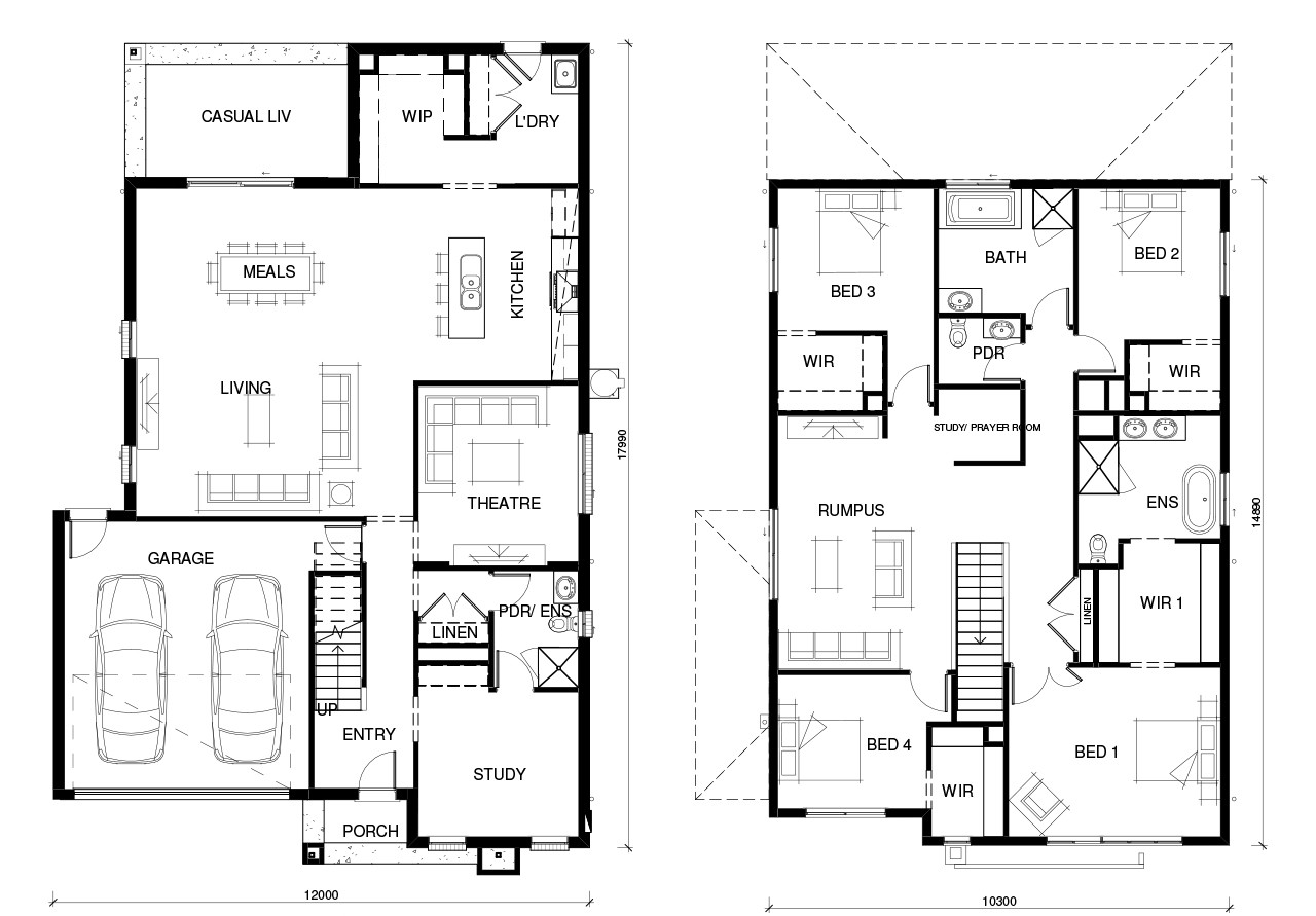
A great home suitable for a family. Consisting of three living Areas, study and alfresco and four bedrooms. Suitable for a 14 metre wide block.
Display Homes & 3D Tours for Boston by Long Island Homes
Loading...
4
