Calgary by Long Island Homes
DISPLAY HOME
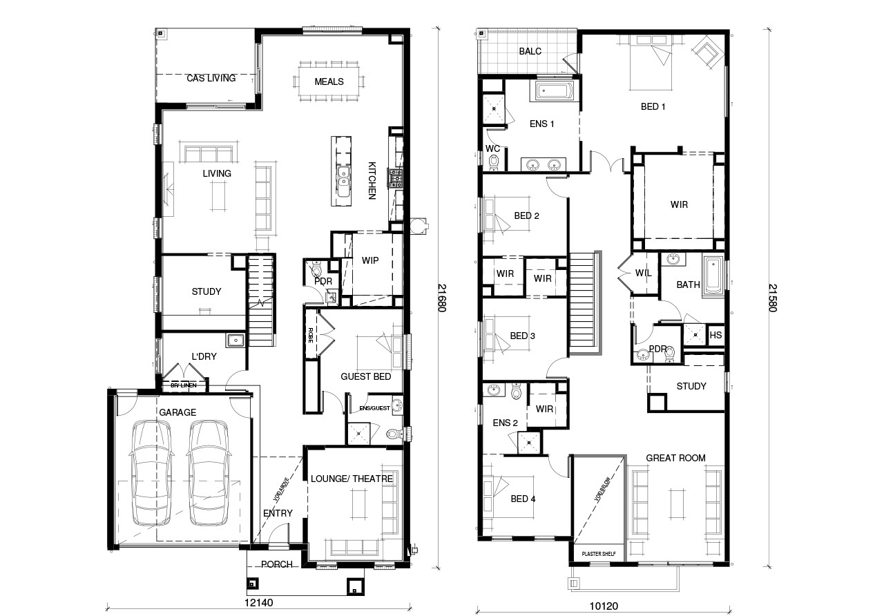
The Calgary is a high-end and comfortable home. The entrance with a void creates a sense of openness and grandeur in the entryway. The master bedroom also brings you light and spaciousness with a balcony, a large ensuite and an extensive walk-in robe. Having study rooms on both levels allows for flexibility in choosing a workspace. If you have multiple people working from home, each individual can have their own dedicated workspace.
Display Homes & 3D Tours for Calgary by Long Island Homes
Loading...
5
