Cocos by Long Island Homes
DISPLAY HOME
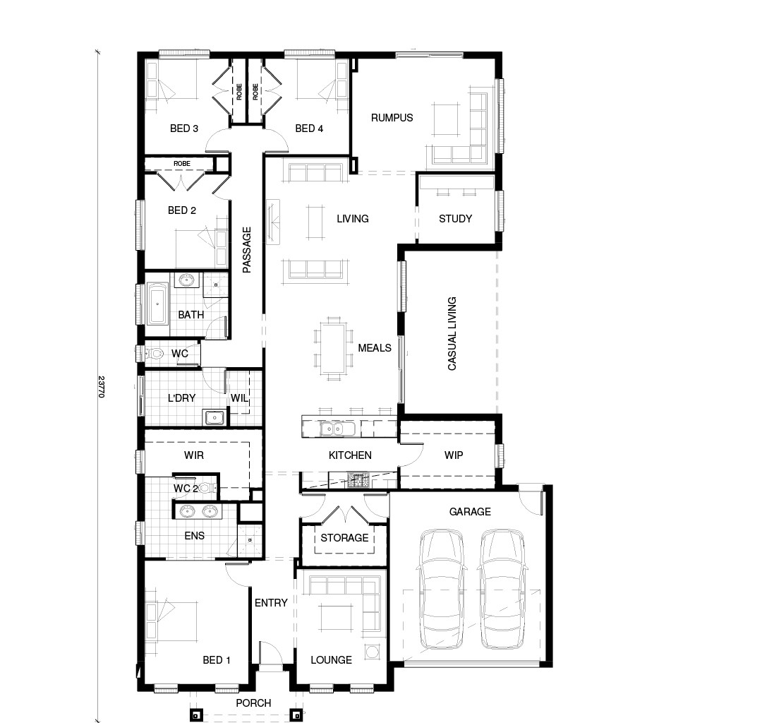
Luxury in a family package! A true family home, meticulously designed so there is no wasted space. The Cocos range includes many clever options; easy access from the garage to the butlers pantry, outdoor entertaining straight off the kitchen area and a massive laundry/utility room. The Cocos is available in many shapes and sizes to suit the needs of any growing family.
Display Homes & 3D Tours for Cocos by Long Island Homes
Loading...
4
