Newport by Long Island Homes
DISPLAY HOME
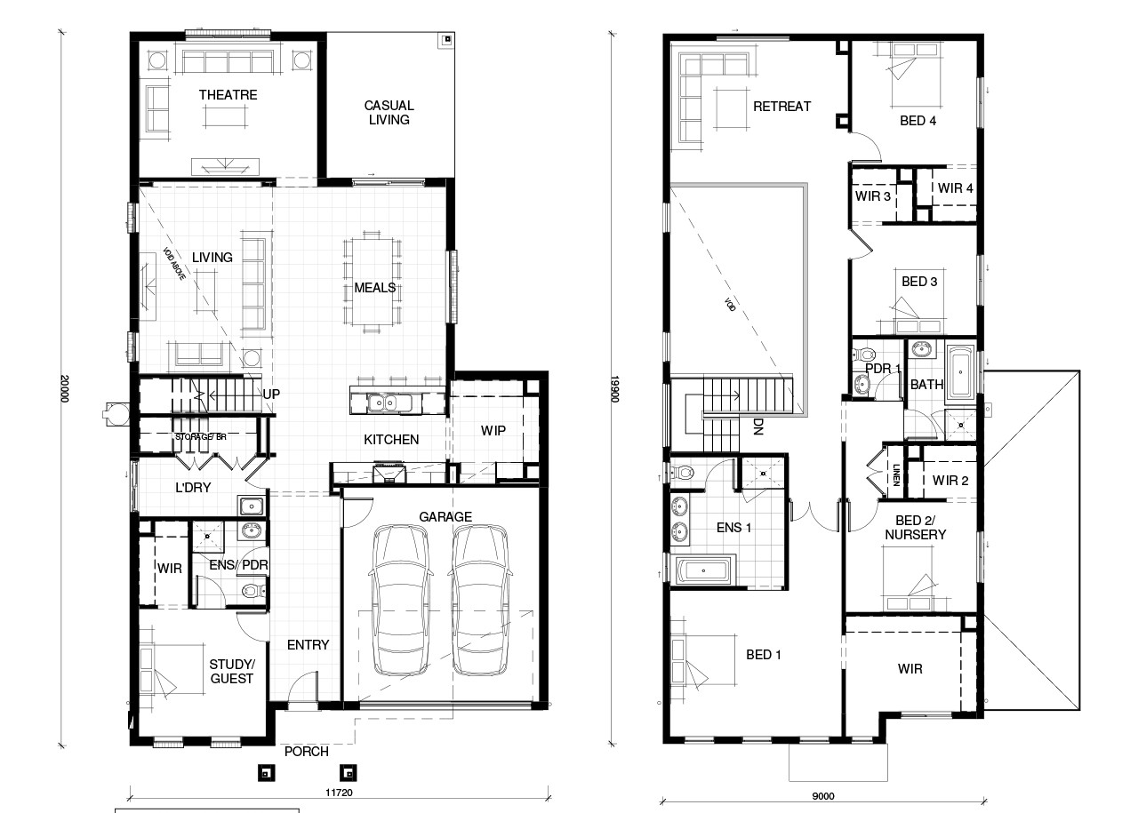
The Newport seamlessly combines functionality and elegance, crafting the perfect embodiment of a dream residence. It is a popular family design, available with or without a void over the living room. With the option of a ground floor bedroom, and with an option of an upstairs bed 2 near the master bedroom for a nursery or room for a growing family.
Display Homes & 3D Tours for Newport by Long Island Homes
Loading...
5
