Enzo by McDonald Jones Homes

DISPLAY HOME

Endless options for effortless modern living.

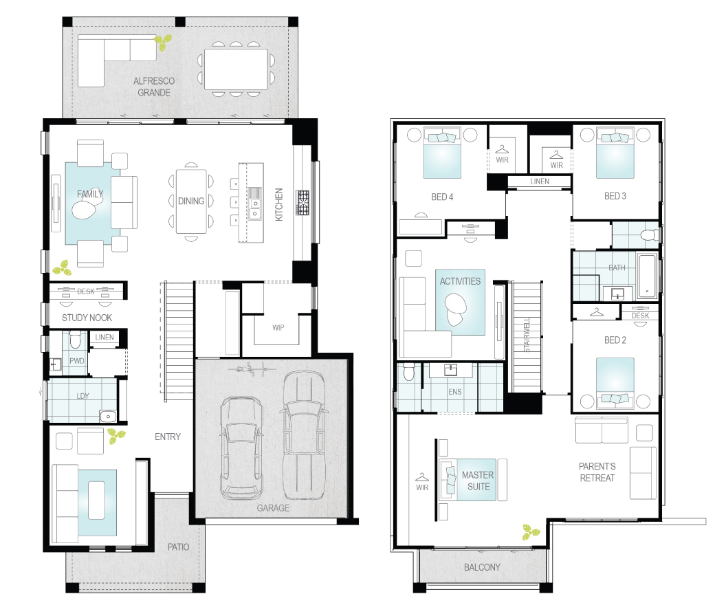
Flowing spaces – the consideration to the modern lifestyle is evident by the functional flow of this two-storey design. The ground floor is dedicated to connecting, relaxing, and entertaining with a separate Living at the front and an open plan Family at the rear.


Smart Design for Modern Living - Despite the Enzo design being ideal for modern narrow blocks, you will be amazed at the amount of space offered within this range. Featuring three separate living areas are the highlight with additional luxuries like a walk-in pantry and linen plus a study on the ground and optional Alfresco.


Relax in the Retreat – the incredible front positioned master suite, of the Enzo One, offers a parents retreat lounge area and private balcony to enjoy quiet evenings to wind down in your very own space. The Enzo Two option offers a study nook instead of the parents retreat offering options to suit your lifestyle and preferences.
You will be delighted every day in the thoughtful design of the Enzo.

 


Floor-plan options for Enzo

Enzo Three
Bed 4
Bath 2.5
Living 2
Car 2
Home Design: Enzo
House Width: 11.5m
House Length: 20.98m

Display Homes & 3D Tours for Enzo by McDonald Jones Homes

Loading...