Havana by McDonald Jones Homes

DISPLAY HOME

The Best Things in Life

The Havana range seamlessly combines all the practicalities you desire so you can enjoy everything you love about being home – every day.

Each design in the Havana range caters to different locations and lifestyles through modern architectural design creating liveability and adding a little luxury to your home. Built-in desks, additional storage, and children’s activity or home theatre or both – so you can create a unique living experience that suits your needs.

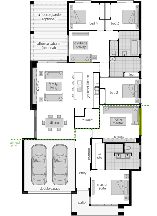
Family is number one in Havana – and there’s plenty of scope for multi-functional use of space. A well-appointed gourmet kitchen overlooks the spacious dining and living zones, which flow generously to the airy alfresco. Depending on your design, there’s also a generous theatre or activities to ensure plenty of social spaces and quiet relaxation areas.
You’ll cherish the four spacious bedrooms and the privacy offered by their clever layout. The master suite features a luxurious ensuite and walk-in robe, and the three remaining bedrooms offer privacy and space for each family member.

The Havana range comes in a range of variations and options to suit block widths and a range of different configurations to create your dream home. This is a home your family will grow comfortably, treasure and keep coming home to as the years roll on.

 


Floor-plan options for Havana

Havana Encore
Bed 4
Bath 2
Living 2
Car 2
Home Design: Havana
Floor Area: 291m2
House Width: 12.17m
House Length: 22.37m
Havana Executive
Bed 4
Bath 2
Living 2
Car 2
Home Design: Havana
House Width: 13m
House Length: 22.37m
Havana Grande
Bed 4
Bath 2
Living 2
Car 2
Home Design: Havana
House Width: 13.04m
House Length: 22.5m

Display Homes & 3D Tours for Havana by McDonald Jones Homes

Loading...