Tulloch by McDonald Jones Homes

DISPLAY HOME

Life is a Breeze

Thoughtful arrangement of spaces and intuitive design enhance family life in the Tulloch and make it an outstanding home for tricky narrow lots.

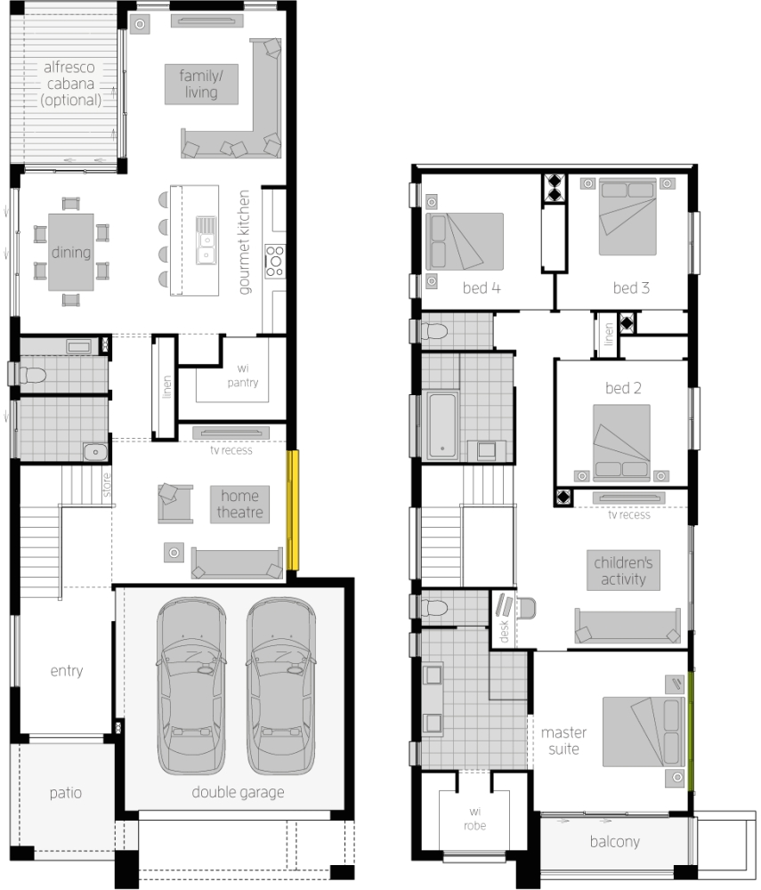
Your narrow lot shouldn’t narrow your choices. The Tulloch is the perfect example of how clever design and imaginative thinking can tick all the boxes for a family home, wherever you choose to build it. Offering four bedrooms, two bathrooms and a double garage, it’s easy to see why the Tulloch is the choice for many families bringing their dream home to life.

Two stunning levels of seamless interaction come together in the Tulloch and result in a home offering multiple living spaces that invite family togetherness but also cater to the need for retreat and privacy. The free-flowing connection is enhanced by the wide, open spaces and expanses of windows that work together to evoke a feeling of calm and well-being.

We know it’s the small touches that make a big difference! Like the thoughtful separation of the home theatre from the main living area to create a quiet space for relaxation and family nights. Or the abundance of storage, hidden walk-in pantry, powder room, laundry and the addition of a home office. It’s these small, creative details that work together in the Tulloch to enhance the easy lifestyle this home offers you and your family.

 


Floor-plan options for Tulloch

Tulloch 31 One
Bed 4
Bath 2.5
Living 2
Car 2
Home Design: Tulloch
House Width: 8.6m
House Length: 21.98m

Display Homes & 3D Tours for Tulloch by McDonald Jones Homes

Loading...