Glendale by Metricon Homes
DISPLAY HOME
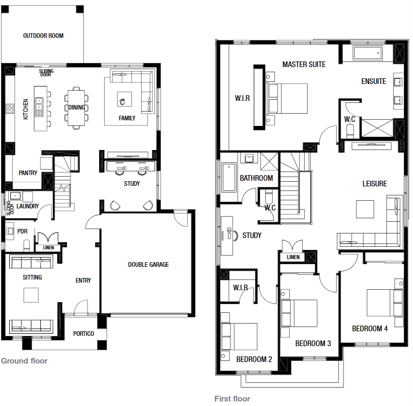
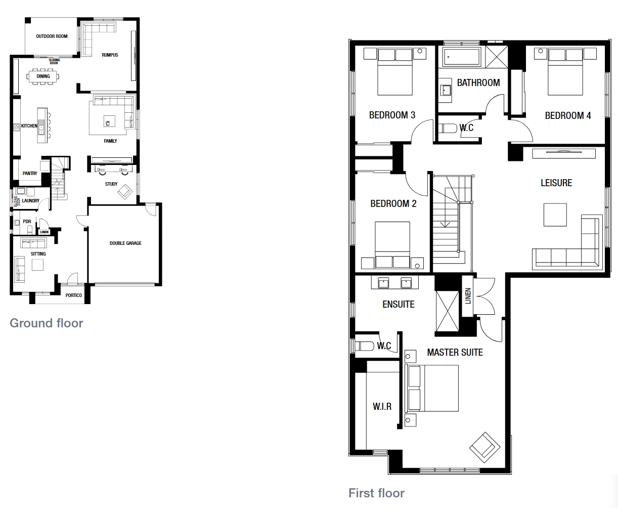
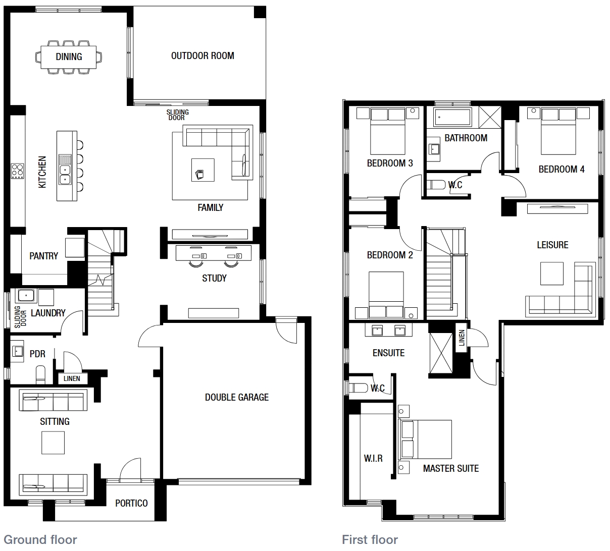
A family favourite for brilliant design and opulent living
Designed with your family’s needs and aspirations firmly in mind, the Glendale provides an amazing modern design with spacious living areas downstairs and fabulous comfort upstairs. There are plenty of open and private living areas, including the front sitting room, separate study and large rumpus room. The addition of an outdoor room means even more space for entertaining family and friends. You’ll be the envy of your neighbours.
Display Homes & 3D Tours for Glendale by Metricon Homes
Loading...
Glendale 45 By Metricon Homes
Kaduna Park Estate - Officer South
Glendale 45 | Modern Façade By Metricon Homes
Lucas Ballarat - Lucas
Glendale 45 By Metricon Homes
Windermere Estate - Mambourin
Glendale 37 | Yale Façade By Metricon Homes
HomeWorld Marsden Park - Marsden Park
Glendale 45 | Alpine Façade By Metricon Homes
HomeWorld Box Hill - Box Hill
Glendale 39MR | Yale Façade By Metricon Homes
Arise Estate - Rochedale
4
