Marion by Metricon Homes
DISPLAY HOME
With three great floorplans, the Marion is flexible family living at its most affordable.
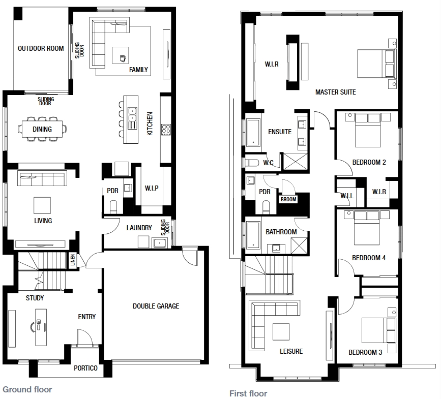
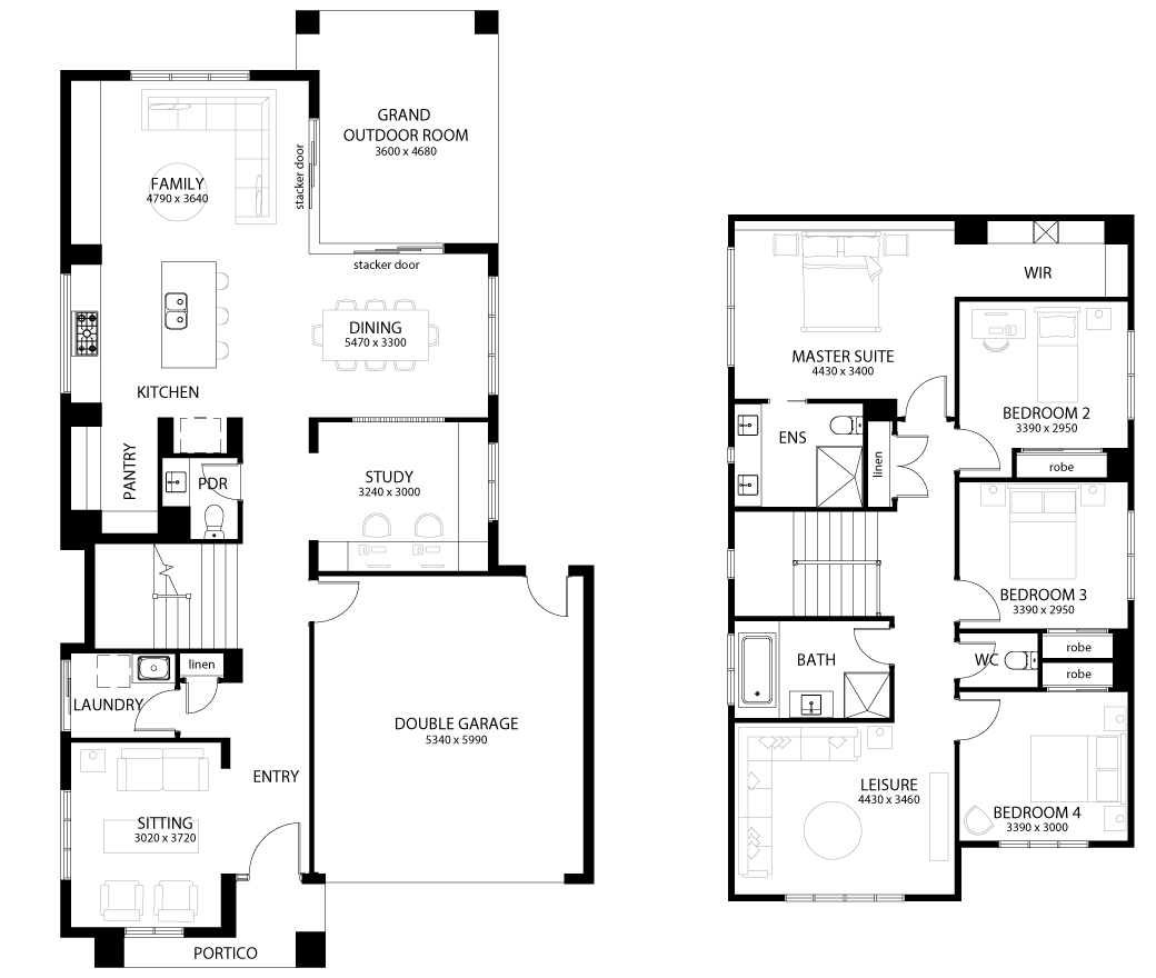
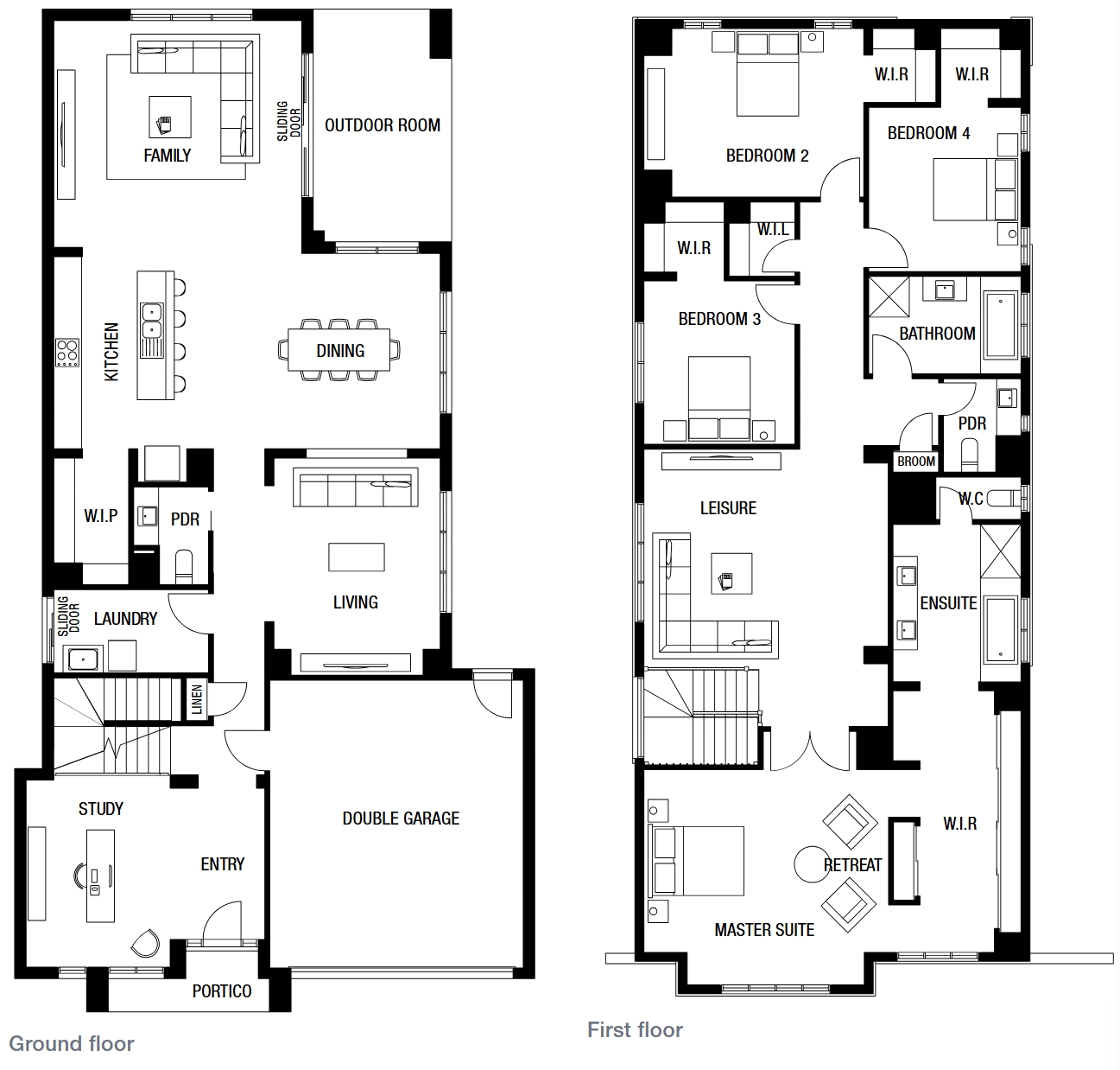
This all-new design truly is a home that delivers space, space, space. From the impressive portico entrance that opens to a luxurious sitting room/study, to the upstairs leisure area, spacious bedrooms and a Master suite with a huge walk-in robe and resort style ensuite, this is a true family home that celebrates life. Just choose the size that suits you and your block.
Display Homes & 3D Tours for Marion by Metricon Homes
Loading...
Marion 29 | Nordic Façade By Metricon Homes
Merrifield - Mickleham
Marion 29 | Princeton Façade By Metricon Homes
Stockland Minta - Berwick
Marion 29 By Metricon Homes
Stockland Mt. Atkinson - Truganina
Marion 42 | Nordic Façade By Metricon Homes
Stockland Banksia - Armstrong Creek
Marion 30 | Yale Façade By Metricon Homes
HomeWorld Leppington - Leppington
Marion 39 | Deakin Façade By Metricon Homes
Whiterock Estate - White Rock
Marion 40 | Princeton Façade By Metricon Homes
SkyRidge Estate - Worongary
Marion 40 | Yale Façade By Metricon Homes
Stockland Aura Sunshine Coast - Banya
4
