Merricks by Metricon Homes
DISPLAY HOME
A truly beautiful home where you'll love to live.
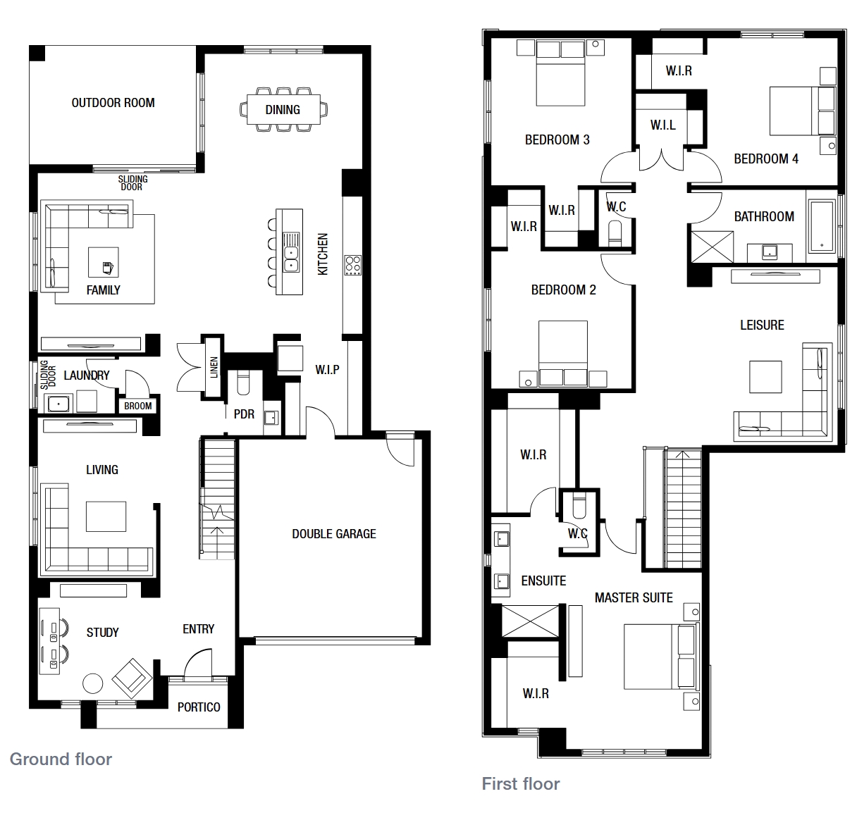
This lovely family home is packed with thoughtful design elements. Four substantial bedrooms and ample entertaining areas are complemented by the luxury of a private study at the front of the home, a large sitting room and huge upstairs leisure room. With a walk-in pantry and walk-in linen closet this is truly a home with everything.
Display Homes & 3D Tours for Merricks by Metricon Homes
Loading...
4

