Zita by Metricon Homes
DISPLAY HOME
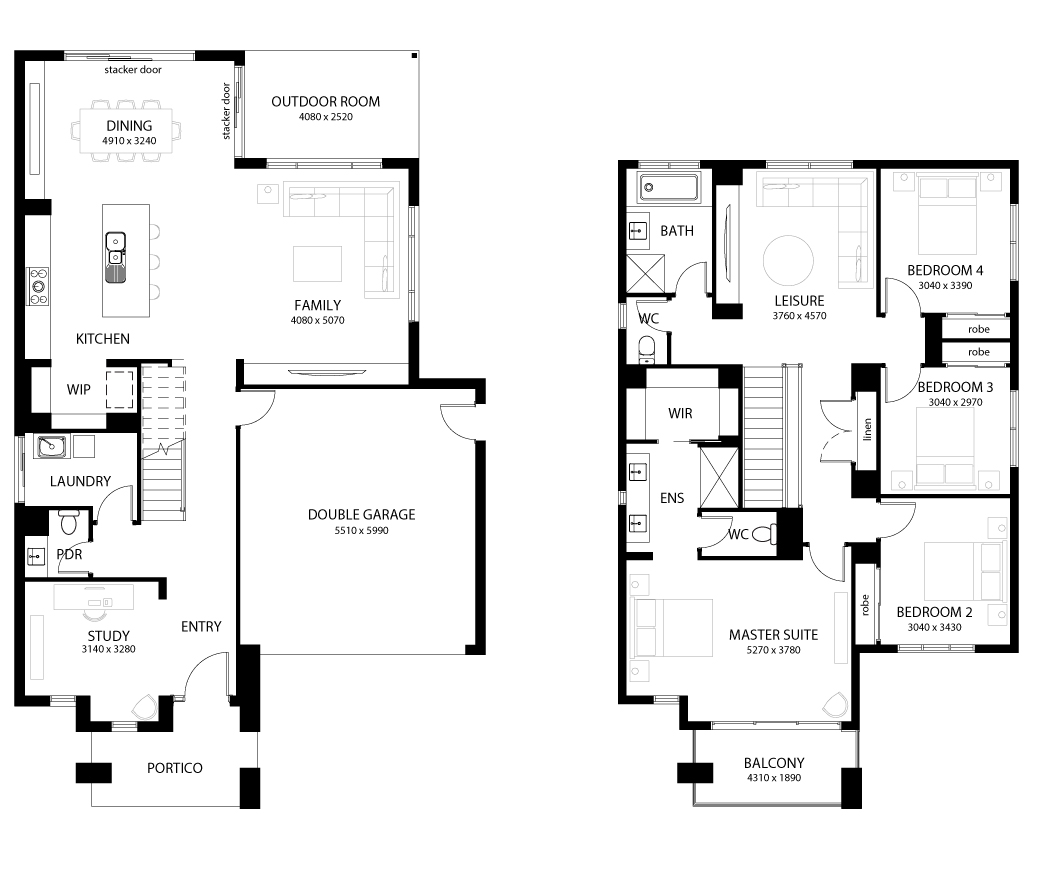
Designed to fit on narrow blocks, the Zita packs plenty of punch
Designed to fit on narrow blocks, the Zita packs plenty of punch, starting with the open-plan living area at the rear and the private study at the front of the home. Located on the first floor is your own private master suite as well as three more bedrooms. The large double garage offers plenty of additional storage space, ideal for the growing family.
Display Homes & 3D Tours for Zita by Metricon Homes
Loading...
4
