Carrington Grand by MOJO Homes

DISPLAY HOME

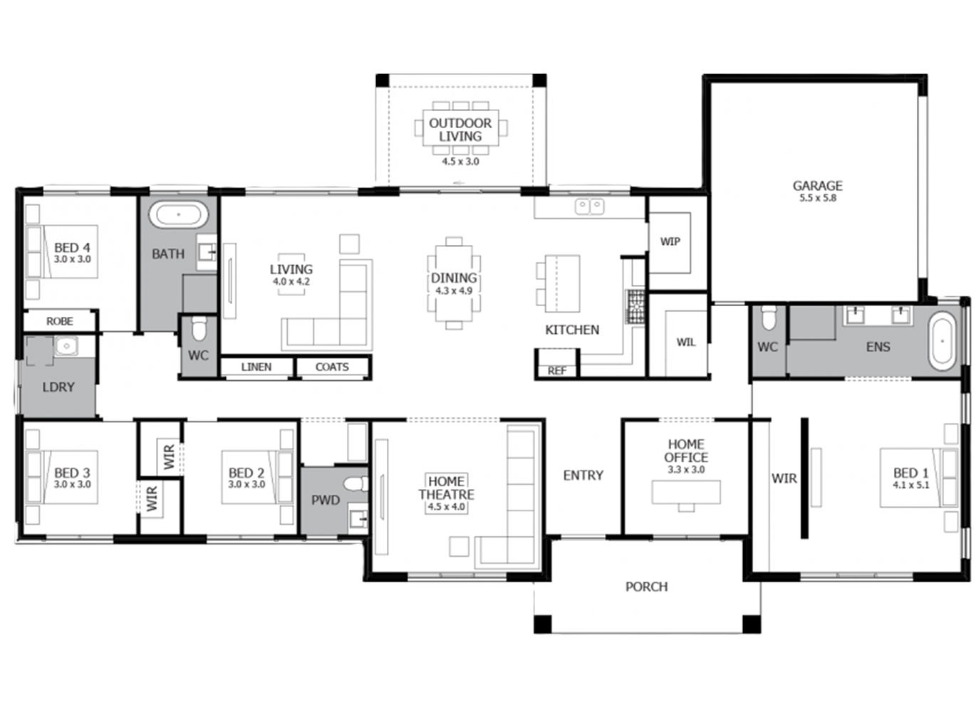
The Carrington Grand One 31 offers a unique twist on acreage living. Its side-situated garage makes it ideal for corner blocks, while the facade is designed with large windows and intricate detailing.

The spacious master suite at the front of the home offers a view of the yard, while the other bedrooms are located at the rear for privacy. The open-plan living, dining, and kitchen area forms the heart of the home, with the dining area connecting seamlessly to the outdoors. A home theatre provides an escape for movie lovers, and the home office, positioned at the front, offers privacy for remote work. Perfect for rural or residential settings, this design is ideal for family living.
 


Floor-plan options for Carrington Grand

Carrington Grand One 31
Bed 4
Bath 2.5
Living 2
Car 2
Builder: MOJO Homes
Home Design: Carrington Grand
Floor Area: 290.57m2
House Width: 25.28m
House Length: 13.46m

Display Homes & 3D Tours for Carrington Grand by MOJO Homes

Loading...