Chevron by MOJO Homes

DISPLAY HOME

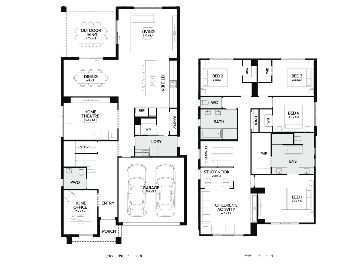
The Chevron 37 impresses with it's open-plan living area offering plenty of space for family gatherings, seamlessly connecting the kitchen, dining, and outdoor living for year-round entertaining. On the ground floor, there's a home theatre and office, while upstairs features three bedrooms with walk-in robes, a main bedroom with ensuite, a study nook, and a children's activity area – making it an ideal family home design.

 


Floor-plan options for Chevron

Chevron 37
Bed 4
Bath 2.5
Living 2
Car 2
Builder: MOJO Homes
Home Design: Chevron
Floor Area: 343.79m2
House Width: 10.66m
House Length: 19.55m

Display Homes & 3D Tours for Chevron by MOJO Homes

Loading...