Brighton by Montgomery Homes

DISPLAY HOME

Award winning 4 bedroom home designs. Explore the Brighton two storey design for additional space.

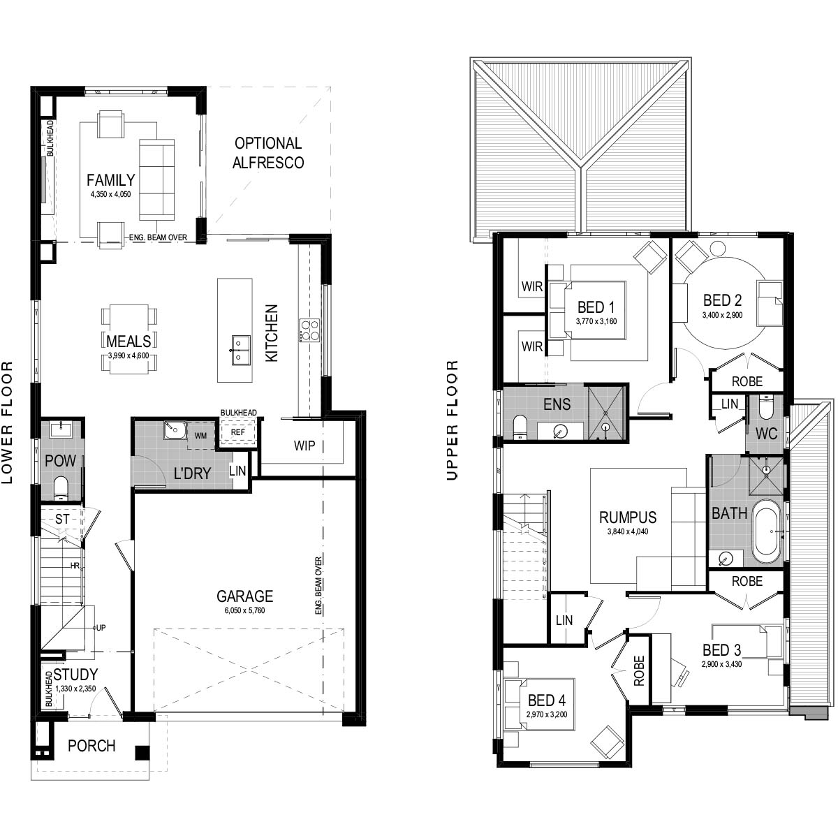
The Brighton 229 is is a new two storey design, which has been cleverly considered for narrow sites with a 10.6m overall width (or 10.3m with zero lot setback). Enjoy family time in the naturally lit home which exudes a refreshing, welcoming vibe as soon as you enter.

As you pass through the study, the entrance takes you down to the dining and kitchen area of the home which seamlessly flows to the alfresco. Consider an optional stacker door to the alfresco area to add extra dimension to your living area.

Upstairs the rumpus room provides a secondary living area or a children’s retreat, while you relax in the master suite which hosts twin walk-in robes.

 


Floor-plan options for Brighton

Brighton 229
Bed 4
Bath 2
Living 2
Car 2
Home Design: Brighton
Floor Area: 226.23m2
House Width: 9.9m
House Length: 17.5m

Display Homes & 3D Tours for Brighton by Montgomery Homes

Loading...