Verona by Plantation Homes
DISPLAY HOME
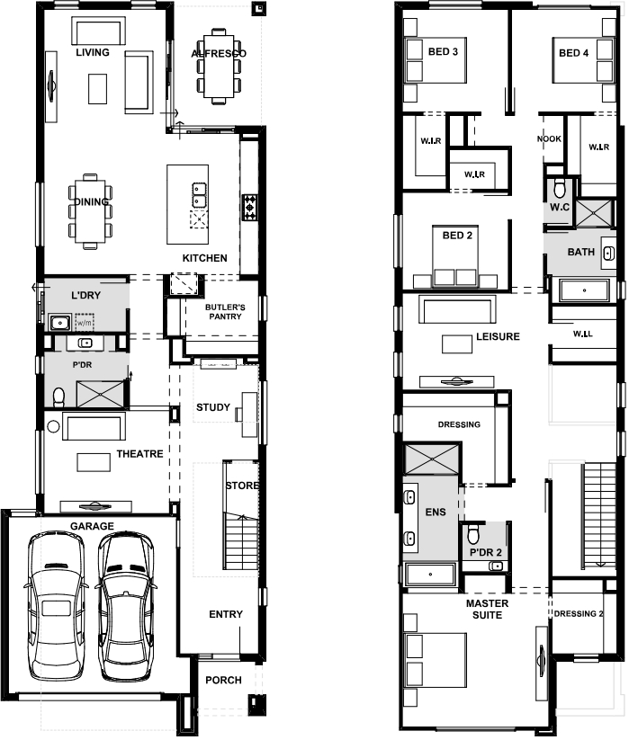
Don’t be deceived by the 10m wide frontage, this design packs a punch and has not compromised on features. All rooms are cleverly integrated and seamlessly connect to the open plan living hub with a chef’s kitchen and grand butler’s pantry.
Display Homes & 3D Tours for Verona by Plantation Homes
Loading...

4