Corrima by Rawson Homes

DISPLAY HOME

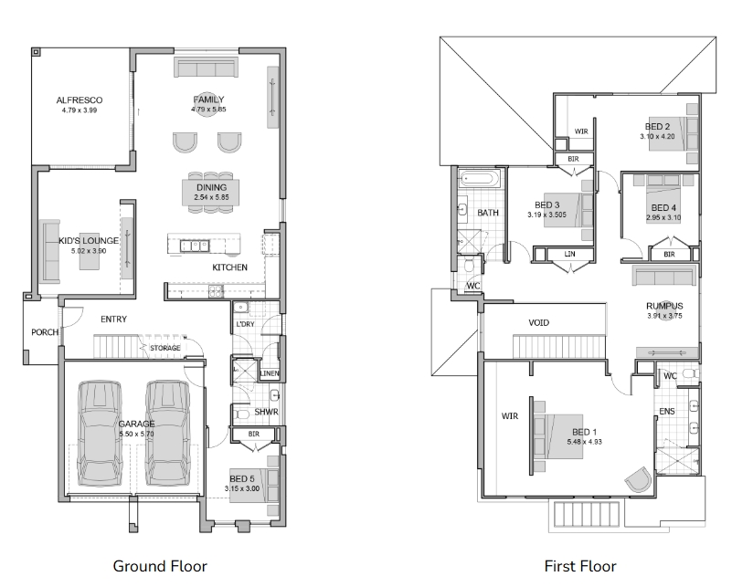
From the moment you walk into the Corrima 36, you are greeted by a home designed with every family member in mind. Created to seamlessly connect outdoor and indoor living with spaces to gather and entertain or relax from the day, this home perfectly balances both form and function.

 


Floor-plan options for Corrima

Corrima 36
Bed 5
Bath 3
Living 2
Car 2
Home Design: Corrima
Floor Area: 334.45m2

Display Homes & 3D Tours for Corrima by Rawson Homes

Loading...

More House and Land Packages by Rawson Homes (Home Builder)

Bed  4 Bath  2 Car  1
Suburb: Austral NSW 2179
Land Size: 334.00m²
Floor Area: 279.98m²
Reserve for $500 | Fixed price guarantee | Stamp duty rebate
EASY START
To help you secure your new home sooner, we've reduced the up-front costs:
- Reserve your home for $500
- Exchange your building contract for $9,500
- Exchange your land contract for 5%

Terms and conditions apply.


STAMP DUTY REBATE - THE TIME IS NOW!
For a limited time, we'll cover the stamp duty when you purchase this stunning new home. This exclusive offer won't last long - contact us today before it's gone!

Terms and conditions apply.


THE BETTER BUILD NOW, PAY LATER
Enjoy more time to save, while we build! Settle on your land now, and start building your home with a 10% deposit and only pay the balance once it's finished. Unlike other single contract offers, this way you can own your land now and save big by only paying stamp duty on the land.
It's the better way to build now, and pay later.

- Less up-front savings needed
- More time for you to save
- No progress payments on your build
- Lock in your price today

Offer strictly limited, don't miss your chance

Terms and conditions apply.


FIXED PRICE, NO SURPRISES
Enjoy peace of mind with a fixed price - know exactly what you’re paying upfront, with no hidden costs or surprises along the way.

THE BENHAM 30
The Benham is a wonderful family residence with impressive living areas downstairs, including an open plan kitchen dining and lounge area leading out to a generous alfresco space. When you do need some quiet, upstairs the kids have their own huge lounge area while you have the option for some peaceful moments downstairs in the rumpus room, or head to your master suite with spacious ensuite and walk-in robe for some ‘me time’. The Benham is a beautiful contemporary home thoughtfully designed for the joys and the stresses of modern family living.


INCLUSIONS
Each home comes with an extensive range of premium inclusions designed to inspire and enhance your home. Below showcases a number of luxury inclusions that come as standard within each, highlighting the stylish nature and elevated appeal of living within Eucalypt Grove.

- Fixed Site Costs

- Coloured Concrete Driveway & Path

- Tiles to porch & alfresco

- 2600mm high ceilings & 2340mm high internal doors to GF

- 2450mm high ceilings & 2040mm high internal doors to FF

- 900mm Kitchen Appliances

- Dishwasher + microwave

- 20mm stone benchtop to kitchen and bathrooms

- Ducted air conditioning

- 3.5kW solar system

- Colorbond Roof including Anticon Blanket

DISCLAIMER:
Photographs, artist impressions and other pictures in this flyer are for illustrative purposes only and may show fixtures, fittings or finishes which are not supplied by Rawson Homes, or which are only available in some Rawson Homes designs or when selected as inclusions above the standard inclusions for a particular design. This may include landscaping and outdoor items, floor coverings, doors, furniture, kitchen, bathroom, light fittings, electrical fittings and decorative items, which are shown as examples only. Please refer to your Tender for specific details of the inclusions and exclusions. Please speak to a Rawson Homes Consultant to discuss detailed home pricing for different designs and inclusions.
Price: $1,213,200
Bed  4 Bath  2 Car  1
Suburb: Austral NSW 2179
Land Size: 334.00m²
Floor Area: 175.56m²
Reserve for $500 | Fixed price guarantee | Stamp duty rebate
EASY START
To help you secure your new home sooner, we've reduced the up-front costs:
- Reserve your home for $500
- Exchange your building contract for $9,500
- Exchange your land contract for 5%

Terms and conditions apply.

STAMP DUTY REBATE - THE TIME IS NOW!
For a limited time, we'll cover the stamp duty when you purchase this stunning new home. This exclusive offer won't last long - contact us today before it's gone!

Terms and conditions apply.


THE BETTER BUILD NOW, PAY LATER
Enjoy more time to save, while we build! Settle on your land now, and start building your home with a 10% deposit and only pay the balance once it's finished. Unlike other single contract offers, this way you can own your land now and save big by only paying stamp duty on the land.
It's the better way to build now, and pay later.

- Less up-front savings needed
- More time for you to save
- No progress payments on your build
- Lock in your price today

Offer strictly limited, don't miss your chance

Terms and conditions apply.

FIXED PRICE, NO SURPRISES
Enjoy peace of mind with a fixed price - know exactly what you’re paying upfront, with no hidden costs or surprises along the way.

THE HAVEN 19
Step into the Haven 19 – a contemporary and cleverly designed home that’s perfect for growing families or first home buyers seeking extra space.

At the front of the home, the private master suite features a walk-in robe and stylish ensuite, positioned next to a versatile second living area. The heart of the home opens to a spacious kitchen, dining, and family zone that flows seamlessly onto the outdoor alfresco. With two bathrooms and a single car garage, the Haven 19 delivers comfort, flexibility and exceptional value for modern living.


INCLUSIONS
Each home comes with an extensive range of premium inclusions designed to inspire and enhance your home. Below showcases a number of luxury inclusions that come as standard within each, highlighting the stylish nature and elevated appeal of living within Eucalypt Grove.

- Fixed Site Costs

- Coloured Concrete Driveway & Path

- Tiles to porch & alfresco

- 2600mm high ceilings & 2340mm high internal doors to GF

- 2450mm high ceilings & 2040mm high internal doors to FF

- 900mm Kitchen Appliances

- Dishwasher + microwave

- 20mm stone benchtop to kitchen and bathrooms

- Ducted air conditioning

- 3.5kW solar system

- Colorbond Roof including Anticon Blanket

DISCLAIMER:
Photographs, artist impressions and other pictures in this flyer are for illustrative purposes only and may show fixtures, fittings or finishes which are not supplied by Rawson Homes, or which are only available in some Rawson Homes designs or when selected as inclusions above the standard inclusions for a particular design. This may include landscaping and outdoor items, floor coverings, doors, furniture, kitchen, bathroom, light fittings, electrical fittings and decorative items, which are shown as examples only. Please refer to your Tender for specific details of the inclusions and exclusions. Please speak to a Rawson Homes Consultant to discuss detailed home pricing for different designs and inclusions.
Price: $1,030,010
Bed  4 Bath  3 Car  1
Suburb: Austral NSW 2179
Land Size: 300.00m²
Floor Area: 235.46m²
Reserve for $500 | Fixed price guarantee | Stamp duty rebate
EASY START
To help you secure your new home sooner, we've reduced the up-front costs:
- Reserve your home for $500
- Exchange your building contract for $9,500
- Exchange your land contract for 5%

Terms and conditions apply.

STAMP DUTY REBATE - THE TIME IS NOW!
For a limited time, we'll cover the stamp duty when you purchase this stunning new home. This exclusive offer won't last long - contact us today before it's gone!

Terms and conditions apply.

THE BETTER BUILD NOW, PAY LATER
Enjoy more time to save, while we build! Settle on your land now, and start building your home with a 10% deposit and only pay the balance once it's finished. Unlike other single contract offers, this way you can own your land now and save big by only paying stamp duty on the land.
It's the better way to build now, and pay later.

- Less up-front savings needed
- More time for you to save
- No progress payments on your build
- Lock in your price today

Offer strictly limited, don't miss your chance

Terms and conditions apply.

FIXED PRICE, NO SURPRISES
Enjoy peace of mind with a fixed price - know exactly what you’re paying upfront, with no hidden costs or surprises along the way.

THE BELVIEW 25
The Belview is all about thinking big in every way - design, functionality, beauty - for a large family lifestyle. A stylish entrance hallway leads past a family lounge area and downstairs bedroom to an impeccable family/dining and kitchen area designed to impress with its own adjoining walk-in pantry and stunning alfresco outdoor area. Upstairs kids can escape to their own rumpus room while parents delight in a spacious master suite with walk-in robe and ensuite. Multiple living areas, luxury features and a clever floorplan design lets the Belview excel as a stylish, compact home for a big lifestyle on a narrow block.

INCLUSIONS
Each home comes with an extensive range of premium inclusions designed to inspire and enhance your home. Below showcases a number of luxury inclusions that come as standard within each, highlighting the stylish nature and elevated appeal of living within Eucalypt Grove.

- Fixed Site Costs

- Coloured Concrete Driveway & Path

- Tiles to porch & alfresco

- 2600mm high ceilings & 2340mm high internal doors to GF

- 2450mm high ceilings & 2040mm high internal doors to FF

- 900mm Kitchen Appliances

- Dishwasher + microwave

- 20mm stone benchtop to kitchen and bathrooms

- Ducted air conditioning

- 3.5kW solar system

- Colorbond Roof including Anticon Blanket

DISCLAIMER:
Photographs, artist impressions and other pictures in this flyer are for illustrative purposes only and may show fixtures, fittings or finishes which are not supplied by Rawson Homes, or which are only available in some Rawson Homes designs or when selected as inclusions above the standard inclusions for a particular design. This may include landscaping and outdoor items, floor coverings, doors, furniture, kitchen, bathroom, light fittings, electrical fittings and decorative items, which are shown as examples only. Please refer to your Tender for specific details of the inclusions and exclusions. Please speak to a Rawson Homes Consultant to discuss detailed home pricing for different designs and inclusions.
Price: $1,129,520