
Clifton by Sherridon Homes
DISPLAY HOME
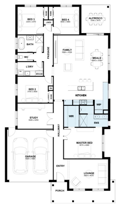
The Clifton home blends elegance and practicality, with thoughtfully zoned bedrooms and versatile function spaces. It’s designed for both entertaining and privacy, ensuring every family member enjoys comfort and convenience, whether hosting gatherings or seeking a quiet retreat.
Display Homes & 3D Tours for Clifton by Sherridon Homes
Loading...
4