
Durack by Simonds Homes
DISPLAY HOME
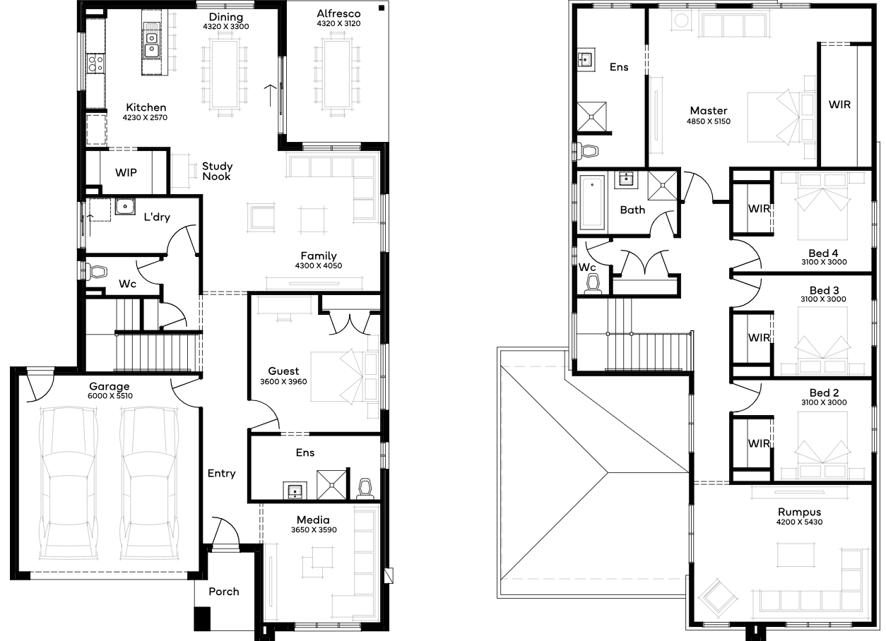
A luxurious home with expansive living and private zones for families.
Suitable for 14m+ blocks, the grand Durack 36 floor plan presents 5 bedrooms and 3 bathrooms. This double-storey house design is crafted for luxury, with spacious living areas for multi-generational families. It combines sophisticated elegance with practical features, ensuring every family member enjoys both communal gatherings and personal retreats within a modern and elegant setting.
Display Homes & 3D Tours for Durack by Simonds Homes
Loading...
5