
Silverton by Simonds Homes
DISPLAY HOME
Embodies family living with a house design featuring an open kitchen and home theatre.
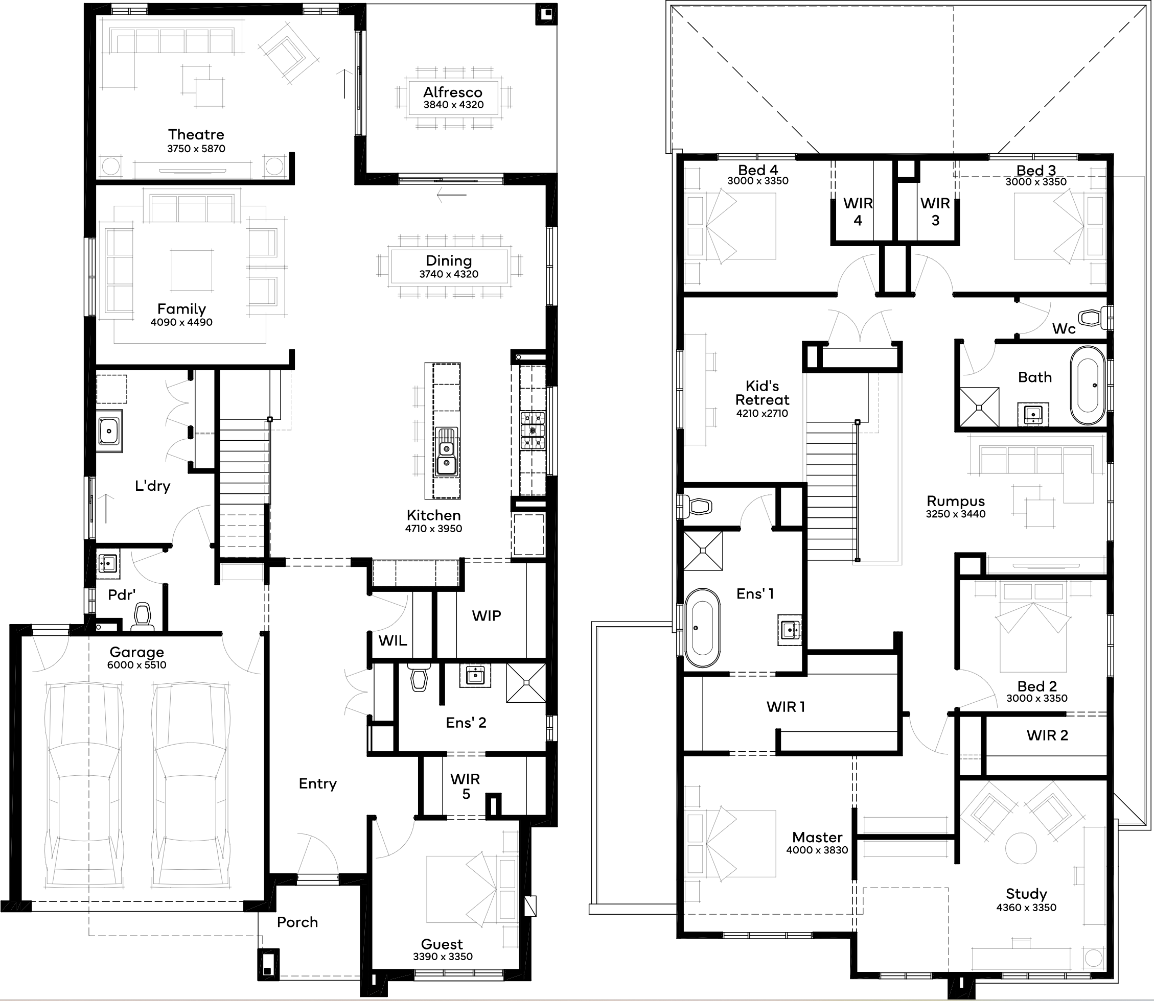
The Silverton 45, a 5-bedroom, 3-bathroom double-storey home with 4 living spaces, exemplifies the pinnacle of family living. It features an open kitchen and dining area, a cosy home theatre, and an apartment-style master bedroom upstairs. The floor plan includes a separate retreat connected to the rumpus and a private home office adjoining the master suite. Designed for 14m+ blocks, this versatile layout adapts to changing seasons and family needs, making the Silverton 45 an ideal choice for growing families.
Display Homes & 3D Tours for Silverton by Simonds Homes
Loading...
5