Kentucky by Stroud Homes

DISPLAY HOME

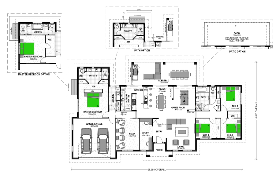
At around 26 meters wide, the Kentucky 304 is right at home on acreage land. In its ideal orientation (north up) the Alfresco and living areas are bathed in warm morning light, creating a most comfortable home.


Floor-plan options for Kentucky

Kentucky 304
Bed 4
Bath 2
Living 2
Car 2
Home Design: Kentucky
Floor Area: 306.7m2
House Width: 26m
House Length: 14.8m

Display Homes & 3D Tours for Kentucky by Stroud Homes

Loading...

More House and Land Packages by Stroud Homes (Home Builder)

Bed  3 Bath  2 Car  2
Suburb: Bellingen NSW 2454
Land Size: 610.00m²
Floor Area: 180sq
Orientation: North
Est. Land Registration: Oct 2023
About the Willow 180:
The Willow 180 is designed for today's living and perfect for new housing estates. You will love entertaining in the alfresco area under the main roof of the home. Designed to make great times with family and friends even better, you'll enjoy circulating through the generous alfresco, dining and great spacious kitchen.

INCLUSIONS
-M Class Slab
-Site Works to .5M
-60m2 Broom Finished Concrete Driveway
-Caesarstone benchtops: kitchen & bathrooms
-900mm Westinghouse S/Steel, upright cooker
-900mm Westinghouse range hood, fully ducted
-Westinghouse stainless steel dishwasher
-Soft close kitchen drawers - cutlery bank
-Colorbond roof, 22 colour range
-Flyscreens and sliding screen doors
-TV antenna, clothesline and letterbox
-3 Coat Wattyl Paint System
-$7,500 Additional Piering Allowance
-$20,000 retaining wall allowance
- Water meter supplied and installed
- connection of all services to home
-LED Downlights throughout
-Bulkheads above overhead cupboards
-Gainsborough door furniture
-Built in robes in all bedrooms
-Godfrey Hirst carpet to bedrooms/media
-Tiles or Vinyl Planking to living areas
-Quality Mizu tapware
-Instant Gas Hot water system
-Multiple HIA Award Winning Builder
-Personalized interior designer service
Plus many more Fully Loaded Inclusions!

Taylors Rise Estate, Bellingen
Not to be missed, Taylors Rise Estate is soon to be registered for building. You can build your dream home in the picturesque township of Bellingen.
Taylors Rise Subdivision sits on the edge of town, where residential connectivity meets rural freedom.
Only five minutes or 2km from all amenities such as schools, shops, sporting fields and more, plus only 30 minutes to the world-famous beaches of the region and also the Coffs Harbour Airport, connecting you to many of the capital cities of Australia.
These rare and one-of-a-kind Bellingen lots enhance and embrace the natural surroundings of the mid north coast's most treasured location. These blocks are not to be missed and are selling fast.
**Note: Our House and land packages are a two contract process, so you would first need to secure the land through either Warren Weick Real Estate. Our team would the work with you to design, quote and contract the home construction.**

Lot 36:
land size:610m2
Price:$465,000
Land Agents:
Warren Weick Real Estate:
Warren Weick: 0427 552 287
Price: $869,970
Bed  4 Bath  2 Car  3
Suburb: Bellingen NSW 2454
Land Size: 600.00m²
Floor Area: 190sq
Orientation: North West
Est. Land Registration: Oct 2023
About the Wildflower 190:
Bright and Breezy the "Wildflower" design brings the outdoors in. The design allows the living and alfresco areas to overlook a pool and gardens providing an "everyday resort" feel. We've minimised the amount of hallway to give flowing, connected living areas and more value for your dollar. Best of all, the children have their own area to retire to when they want. Good sized bedrooms (3m x 3m) are a feature of this efficient design.

INCLUSIONS
-M Class Slab
-Site Works to .5M
-60m2 Broom Finished Concrete Driveway
-Caesarstone benchtops: kitchen & bathrooms
-900mm Westinghouse S/Steel, upright cooker
-900mm Westinghouse range hood, fully ducted
-Westinghouse stainless steel dishwasher
-Soft close kitchen drawers - cutlery bank
-Colorbond roof, 22 colour range
-Flyscreens and sliding screen doors
-TV antenna, clothesline and letterbox
-3 Coat Wattyl Paint System
-$7,500 Additional Piering Allowance
- Water meter supplied and installed
- connection of all services to home
-LED Downlights throughout
-Bulkheads above overhead cupboards
-Gainsborough door furniture
-Built in robes in all bedrooms
-Godfrey Hirst carpet to bedrooms/media
-Tiles or Vinyl Planking to living areas
-Quality Mizu tapware
-Instant Gas Hot water system
-Multiple HIA Award Winning Builder
-Personalized interior designer service
Plus many more Fully Loaded Inclusions!

Taylors Rise Estate, Bellingen
Not to be missed, Taylors Rise Estate is soon to be registered for building. You can build your dream home in the picturesque township of Bellingen.
Taylors Rise Subdivision sits on the edge of town, where residential connectivity meets rural freedom.
Only five minutes or 2km from all amenities such as schools, shops, sporting fields and more, plus only 30 minutes to the world-famous beaches of the region and also the Coffs Harbour Airport, connecting you to many of the capital cities of Australia.
These rare and one-of-a-kind Bellingen lots enhance and embrace the natural surroundings of the mid north coast's most treasured location. These blocks are not to be missed and are selling fast.

**Note: Our House and land packages are a two contract process, so you would first need to secure the land through either Warren Weick Real Estate. Our team would the work with you to design, quote and contract the home construction.**

Lot 28:
land size:600m2
Price:$462,000

Land Agents:

Warren Weick Real Estate:
Warren Weick: 0427 552 287
Price: $868,270