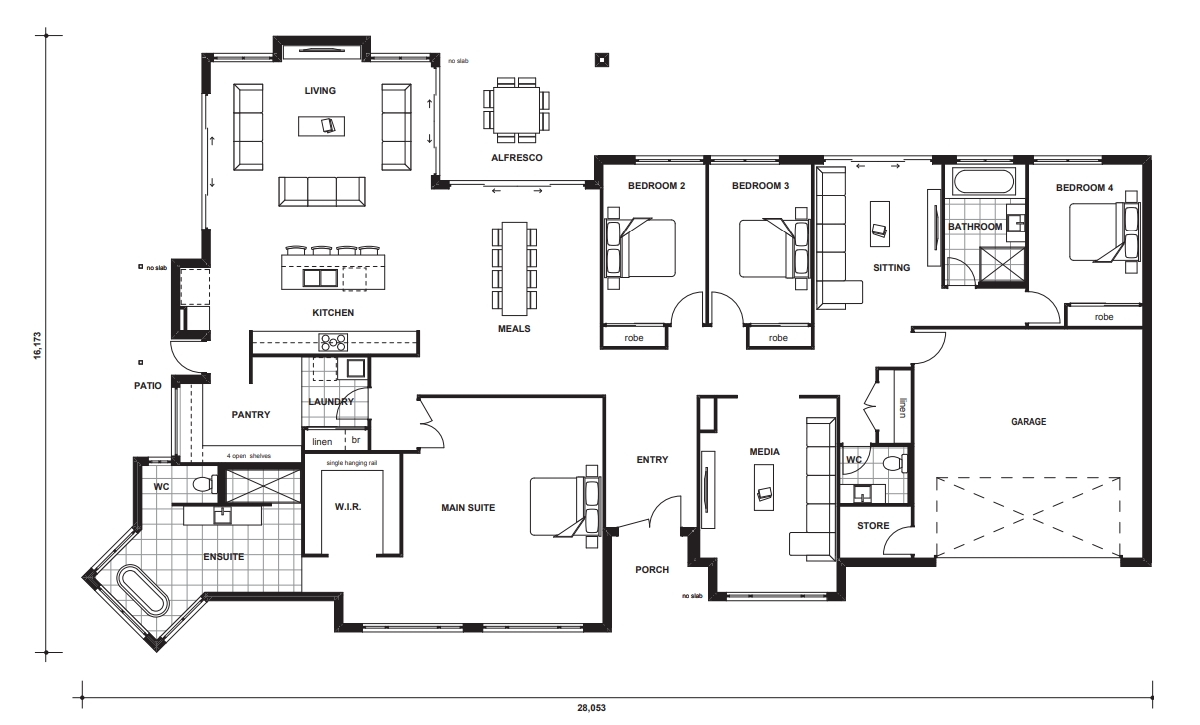
DISPLAY HOMEMaleny | @ North Harbour Estate - Burpengary East Home Designs by Stylemaster Homes Maleny by Stylemaster Homes HOME DESIGN Floor-plan options for Maleny Maleny 4 25 3 2 Builder: Stylemaster Homes Home Design: Maleny Floor Area: 356.70m2 House Width: 28.053m House Length: 16.173m Display Homes & 3D Tours for Maleny by Stylemaster Homes Loading... Maleny By Stylemaster Homes North Harbour Estate - Burpengary East North Harbour Estate - Burpengary East