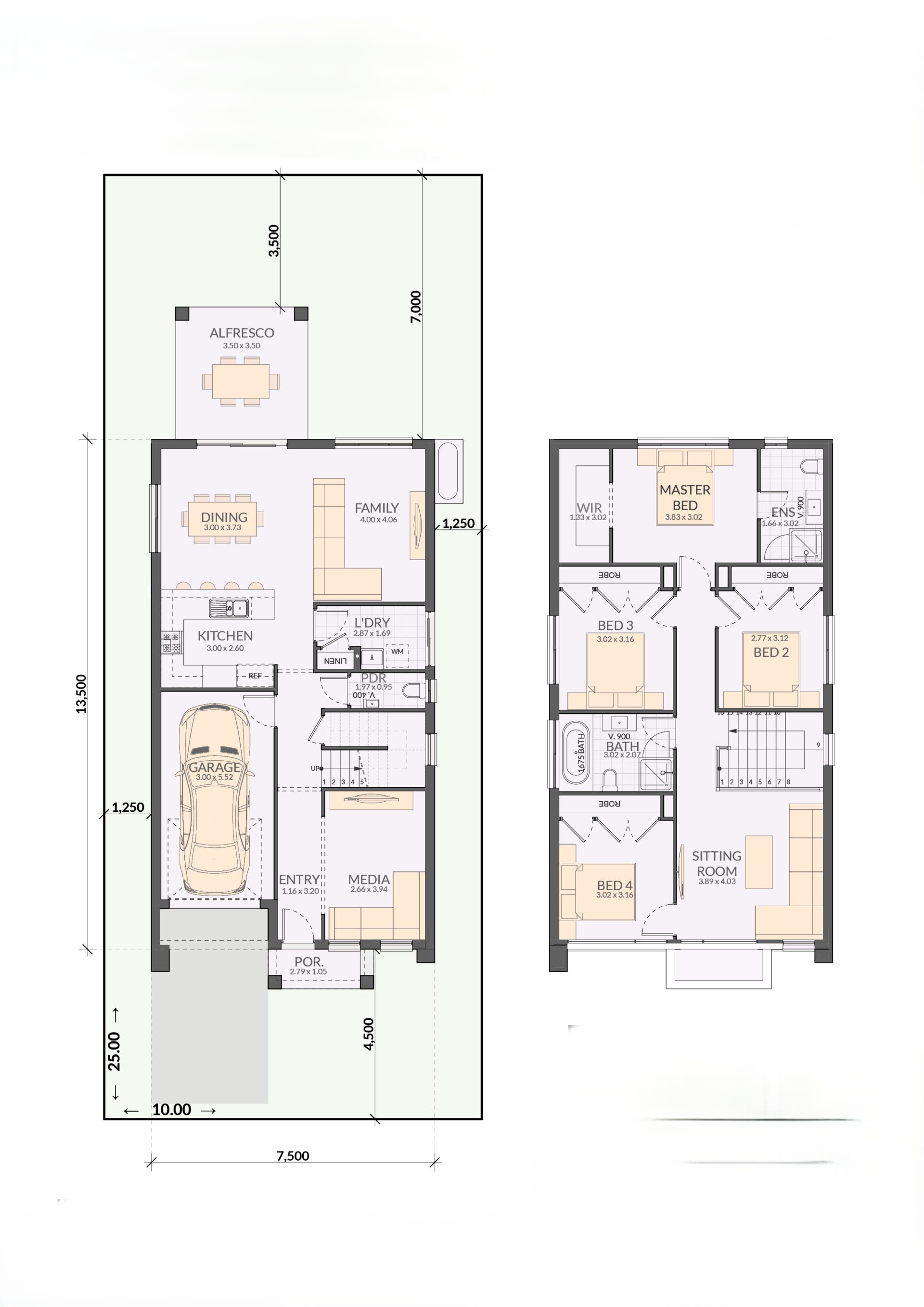
Summerlin Plus by Sundancer Homes
DISPLAY HOME
The Summerlin Plus is the perfect home for those who love to entertain and appreciate outdoor living.
With its spacious and inviting open living areas, this double storey home is the ultimate balance of indoor and outdoor living. And with its huge walk-in wardrobe and ensuite in the master bedroom, it’s got all the comforts you need for a peaceful retreat.
Whether you’re up for some family time or want to host a summer barbecue, the Summerlin Plus has got you covered.
Display Homes & 3D Tours for Summerlin Plus by Sundancer Homes
Loading...
4
