London by Trend Connection Homes

DISPLAY HOME

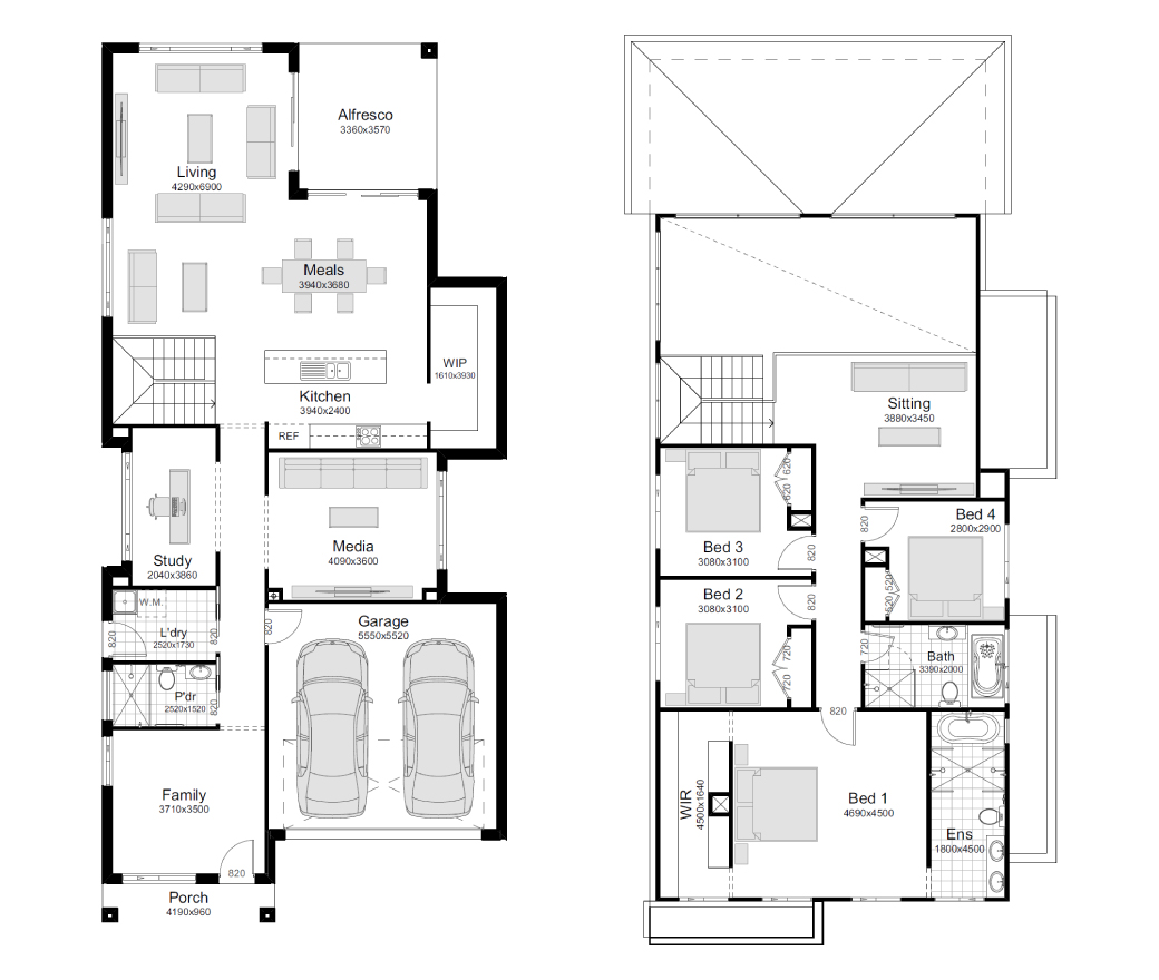
Inspired by the the world-famous city, the London derives elegant design and timeless architectural beauty from its namesake. A thoughtfully-designed 4-bedroom home, our London display combines a sense of subtle grace and grandeur with intelligent practicality. Its contemporary design incorporates an abundance of natural light to fully feature the gorgeous high ceilings, lending an unmatched sense of space and airiness to the home – perfect for families of all types to grow and thrive.

 


Floor-plan options for London

London 35
Bed 4
Bath 3
Living 4
Car 2
Home Design: London
Floor Area: 321.02m2
House Width: 12.5m
House Length: 28m

Display Homes & 3D Tours for London by Trend Connection Homes

Loading...