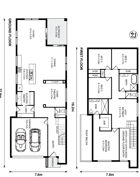
DISPLAY HOMEGabriella 299 | @ Leppington Living Display Village - Leppington Home Designs by Verona Homes Gabriella by Verona Homes HOME DESIGN Floor-plan options for Gabriella Gabriella 299 4 2.5 2 2 Builder: Verona Homes Home Design: Gabriella Floor Area: 299.2m2 House Width: 7.8m House Length: 22.6m Display Homes & 3D Tours for Gabriella by Verona Homes Loading... Gabriella 299 By Verona HomesLeppington Living Display Village - Leppington Leppington Living Display Village - Leppington