Lot 185: @ Casey Green Estate - Narre Warren VIC 3805
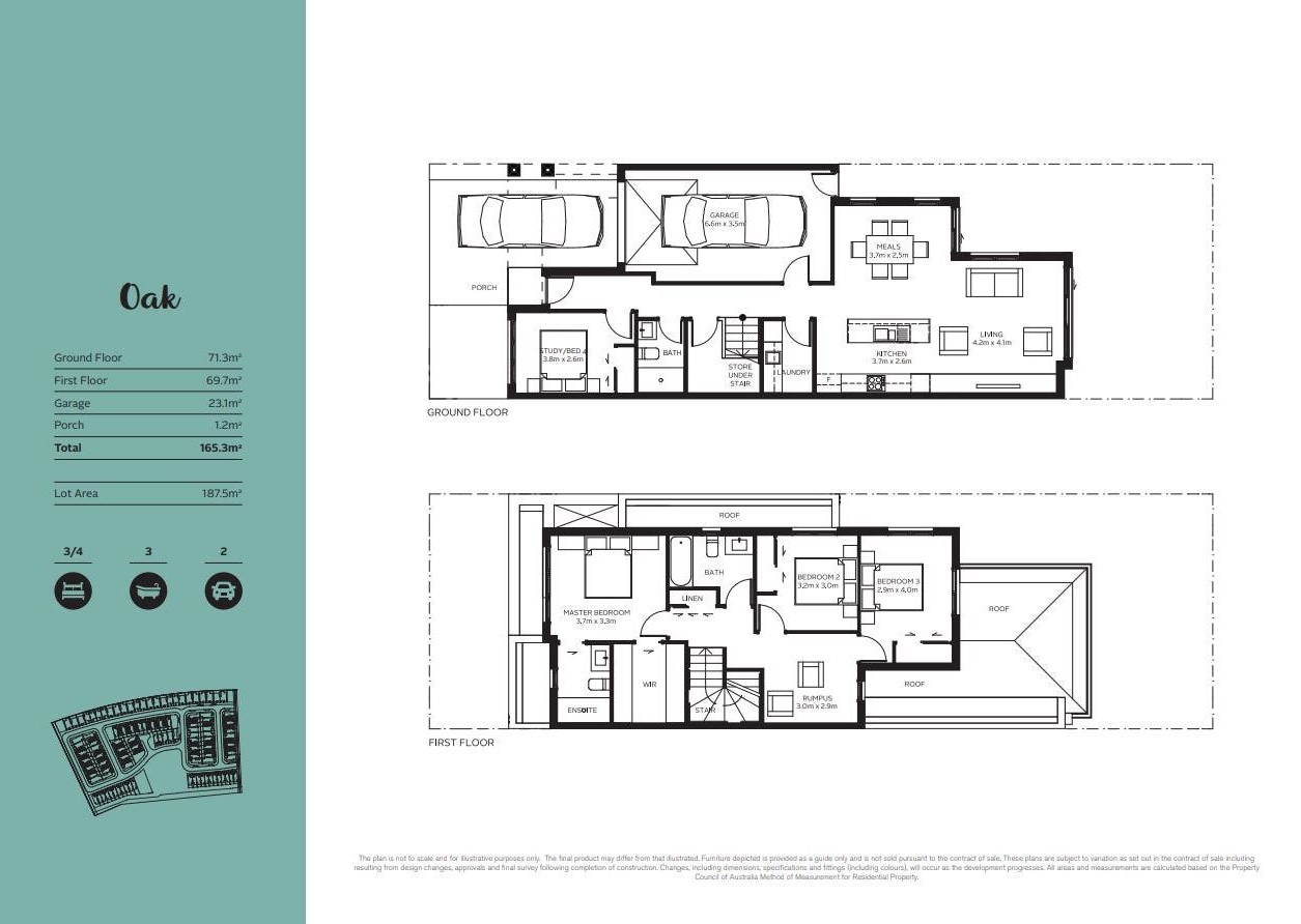
• Boasting 4 bedrooms (main with ensuite and WIR, the other three bedrooms with BIR)
• Stylish second bathroom with bath
• Kitchen with stone bench tops, laser-cut joinery imported from Italy, European stainless-steel appliances & good storage
• Open plan living/meals area flowing to the courtyard
• Separate laundry
• Lock-up garage with access into the home
• LED lights, split system air conditioning, and ducted heating
4
3
2Development Info of Casey Green Estate - Narre Warren
This information is estimated by the OpenLot research team. Let us know here to provide up-to-date information about this development.
| Total new homes | 58 |
| Area size | 9.06 hectares |
| Growth Region | Melbourne South East Growth Corridor |
| City council | Casey City Council |
| Developer | Osanrae |
| Project marketer | Tamagold Real Estate |
| Distance to | Melbourne CBD - 37 km south-east |
Location & Map for Casey Green Estate - Narre Warren
Visit Display Homes near Casey Green Estate - Narre Warren
Land Price Trend in Narre Warren VIC 3805
- In Jan - Mar 23, the median price for vacant land in Narre Warren VIC 3805 was $610,000. *
- From Oct - Dec 17 to Jan - Mar 23, the median price for vacant land in Narre Warren VIC 3805 has increased 84.85%. *
- From 2008 to 2022, the median price for vacant land in Narre Warren VIC 3805 has increased 222.04%. *
Vacancy Rate in Narre Warren VIC 3805
View full vacancy rate history in Narre Warren VIC 3805 via SQM Research.
Schools near Casey Green Estate - Narre Warren
Here are 6 schools near Casey Green Estate - Narre Warren:
7-12 Independent Special School - School Head Campus
Prep-6 Government Primary School
Prep-6 Government Primary School
U Government Special School
7-12 Government Secondary School
Prep-6 Catholic Primary School
Popular Estates near Casey Green Estate - Narre Warren
Latest New Home Articles for You
19/Aug/2025 | OpenLot.com.au
🏡 Suburb Profile: Beveridge
19/Aug/2025 | OpenLot.com.au
test
19/Aug/2025 | OpenLot.com.au
tests
13/Jun/2025 | OpenLot.com.au
Display Homes at Playford Alive Estate: A Thriving Community at the Heart of Munno Para
Welcome to Playford Alive, a vibrant and dynamic masterplanned community ...
11/Jun/2025 | OpenLot.com.au
Display Homes at Ocean Hill Estate: A Thriving Community by the Coast
A short stroll from the white sands of Madora Beach and fringed by the co...
10/Jun/2025 | OpenLot.com.au
Display Homes at Bluestone Estate: An Established Community in the Mount Barker
Whether you’re a first home buyer, a growing family, or looking to downsi...
09/Jun/2025 | OpenLot.com.au
Queensland Leads, But NSW and VIC Fall Behind, in New Housing Buyer Demand Index
New data reveals that Australia’s new housing market remains resilient de...
06/Jun/2025 | OpenLot.com.au
Display Homes at Minters Fields Estate: A Scenic Hillside Community in Mount Barker
Nestled in the heart of Mount Barker, Minters Fields offers a truly remar...
03/Jun/2025 | OpenLot.com.au
🏡 Step Inside a Frenken Home at Smiths Lane
During a recent visit to the Smiths Lane display village, OpenLot.com.au ...











