Dawn on Deception Estate - Deception Bay
This information is estimated by the OpenLot research team. Let us know here to provide up-to-date information about this development.
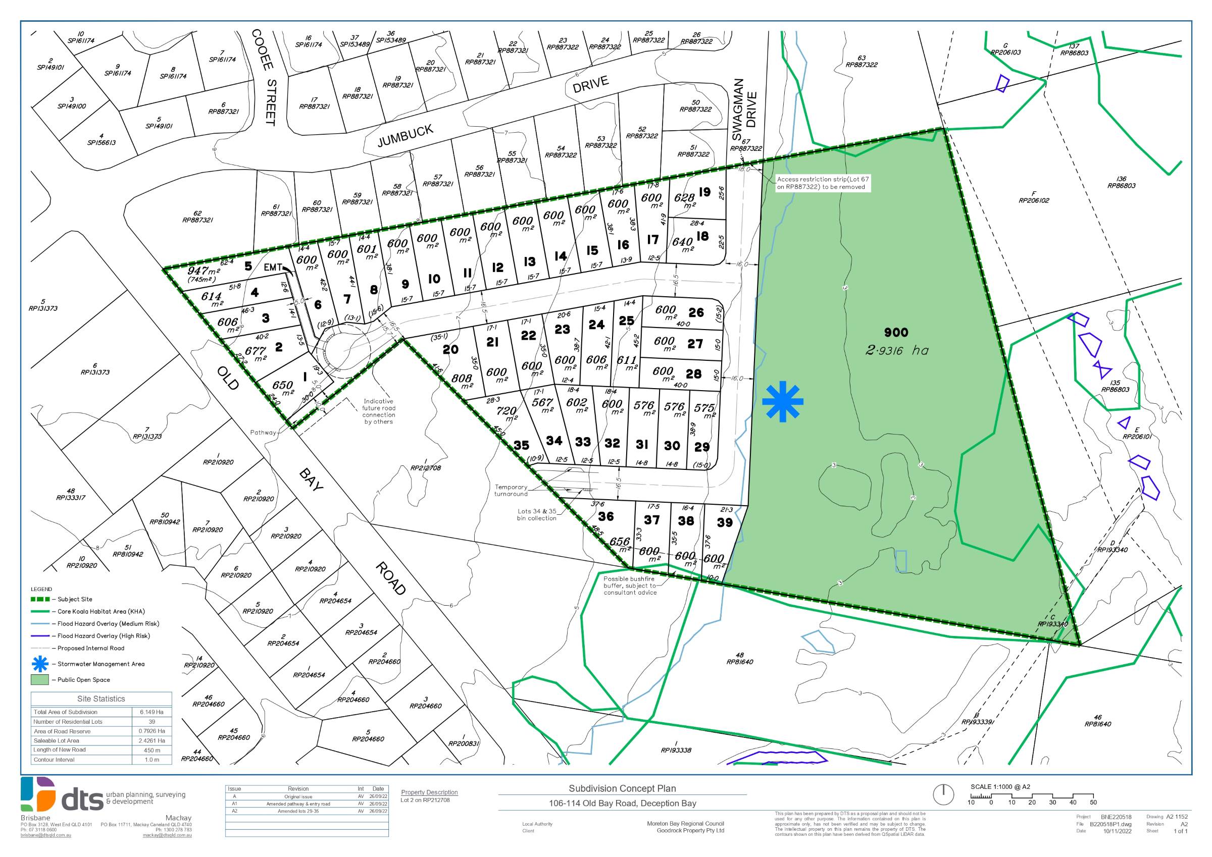
| Total new homes | 38 |
| Area size | 6.15 hectares |
| Growth Region | Greater Brisbane Growth Areas |
| City council | Moreton Bay Regional Council |
| Developer | CBM |
| Project marketer | ProjX Group |
| Distance to | Brisbane Airport - 26 km north-west Brisbane CBD - 33 km north |
Land for Sale, House and Land Packages:
Popular Estates near Dawn on Deception Estate - Deception Bay
Updates for Dawn on Deception Estate - Deception Bay
Location & Map for Dawn on Deception Estate - Deception Bay
Visit Display Homes near Dawn on Deception Estate - Deception Bay
Vacancy Rate in Deception Bay QLD 4508
View full vacancy rate history in Deception Bay QLD 4508 via SQM Research.
Schools near Dawn on Deception Estate - Deception Bay
Here are 6 schools near Dawn on Deception Estate - Deception Bay:
Prep-6 Government Primary School
Prep-6 Catholic Primary School
10-12 Independent Special School - School Head Campus
Prep-6 Government Primary School
7-12 Catholic Special School - School Head Campus
Prep-6 Government Primary School
Reviews & Comments on Dawn on Deception Estate - Deception Bay
Estate Brochure, Masterplan, Engineering Plan, Plan of Subdivision (POS), Design Guidelines
FAQs about Dawn on Deception Estate - Deception Bay
View all estates from CBM
View all estates marketed by ProjX Group
- Deception Bay North State School - 584m south
- Christ the King Catholic Primary School - 727m south-east
- Kairos Community College - 2.2km south-east
- Deception Bay State School - 2.2km south-east
- Deception Bay Flexible School - 2.2km south-east
- Moreton Downs State School - 2.6km south
Popular Estates near Dawn on Deception Estate - Deception Bay
Latest New Home Articles for You
19/Aug/2025 | OpenLot.com.au
🏡 Suburb Profile: Beveridge
19/Aug/2025 | OpenLot.com.au
test
19/Aug/2025 | OpenLot.com.au
tests
13/Jun/2025 | OpenLot.com.au
Display Homes at Playford Alive Estate: A Thriving Community at the Heart of Munno Para
Welcome to Playford Alive, a vibrant and dynamic masterplanned community ...
11/Jun/2025 | OpenLot.com.au
Display Homes at Ocean Hill Estate: A Thriving Community by the Coast
A short stroll from the white sands of Madora Beach and fringed by the co...
10/Jun/2025 | OpenLot.com.au
Display Homes at Bluestone Estate: An Established Community in the Mount Barker
Whether you’re a first home buyer, a growing family, or looking to downsi...
09/Jun/2025 | OpenLot.com.au
Queensland Leads, But NSW and VIC Fall Behind, in New Housing Buyer Demand Index
New data reveals that Australia’s new housing market remains resilient de...
06/Jun/2025 | OpenLot.com.au
Display Homes at Minters Fields Estate: A Scenic Hillside Community in Mount Barker
Nestled in the heart of Mount Barker, Minters Fields offers a truly remar...
03/Jun/2025 | OpenLot.com.au
🏡 Step Inside a Frenken Home at Smiths Lane
During a recent visit to the Smiths Lane display village, OpenLot.com.au ...












