Fair Views Estate - Horsley
This information is estimated by the OpenLot research team. Let us know here to provide up-to-date information about this development.
| Total new homes | 84 |
| Area size | 7.82 hectares |
| Growth Region | Wollongong (Illawarra-Shoalhaven Region) |
| City council | Wollongong City Council |
| Developer | CAVI Developments |
| Project marketer | One Agency Elite Property Group |
| Creative agency | One Minute Cinema, Wide Open Media |
| Distance to | Wollongong CBD - 12 km south-west Sydney CBD - 78 km south-west |
Land for Sale, House and Land Packages:
Popular Estates near Fair Views Estate - Horsley
Updates for Fair Views Estate - Horsley
Location & Map for Fair Views Estate - Horsley
Visit Display Homes near Fair Views Estate - Horsley
Vacancy Rate in Horsley NSW 2530
View full vacancy rate history in Horsley NSW 2530 via SQM Research.
Schools near Fair Views Estate - Horsley
Here are 6 schools near Fair Views Estate - Horsley:
K-6 Government Primary School
7-12 Government Secondary School
K-6 Catholic Primary School
K-6 Government Primary School
7-12 Government Secondary School
K-6 Government Primary School
Reviews & Comments on Fair Views Estate - Horsley
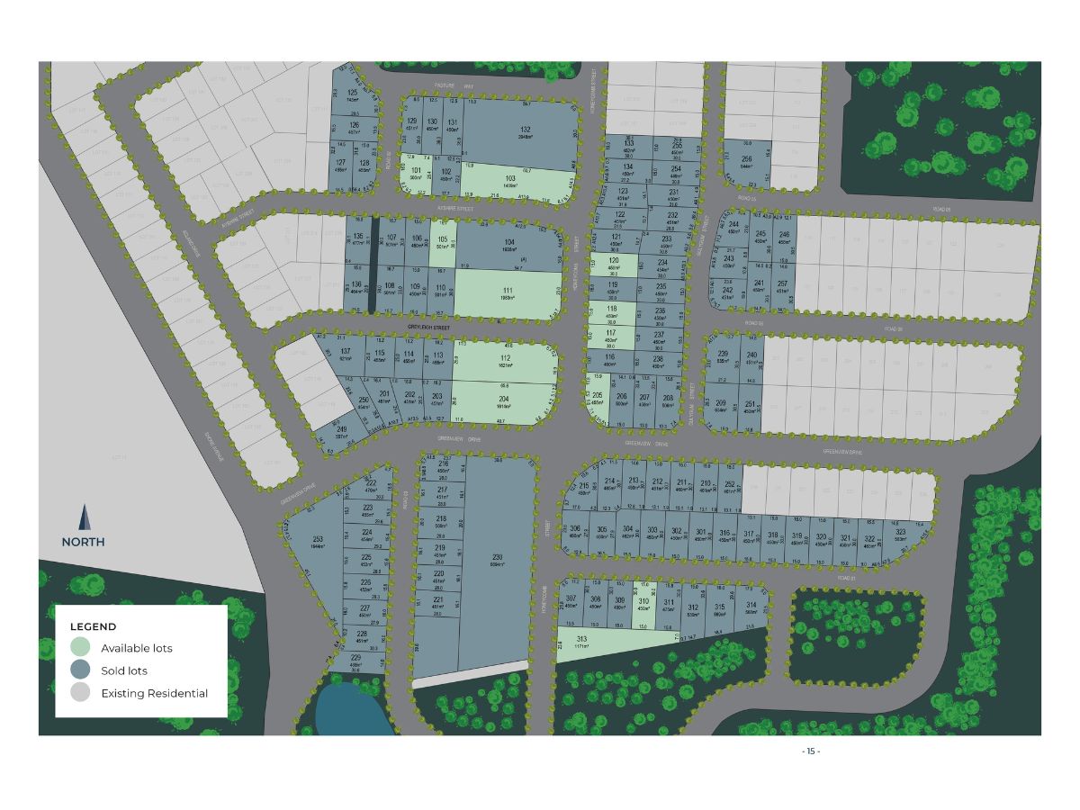
Estate Brochure, Masterplan, Engineering Plan, Plan of Subdivision (POS), Design Guidelines
FAQs about Fair Views Estate - Horsley
View all estates from CAVI Developments
View all estates marketed by One Agency Elite Property Group
- Dapto Public School - 1.5km south-east
- Dapto High School - 2.4km south-east
- St John's Catholic Primary School - 3.0km south-east
- Lakelands Public School - 3.4km south-east
- Kanahooka High School - 3.6km east
- Mount Brown Public School - 3.9km south
Popular Estates near Fair Views Estate - Horsley
Latest New Home Articles for You
19/Aug/2025 | OpenLot.com.au
🏡 Suburb Profile: Beveridge
19/Aug/2025 | OpenLot.com.au
test
19/Aug/2025 | OpenLot.com.au
tests
13/Jun/2025 | OpenLot.com.au
Display Homes at Playford Alive Estate: A Thriving Community at the Heart of Munno Para
Welcome to Playford Alive, a vibrant and dynamic masterplanned community ...
11/Jun/2025 | OpenLot.com.au
Display Homes at Ocean Hill Estate: A Thriving Community by the Coast
A short stroll from the white sands of Madora Beach and fringed by the co...
10/Jun/2025 | OpenLot.com.au
Display Homes at Bluestone Estate: An Established Community in the Mount Barker
Whether you’re a first home buyer, a growing family, or looking to downsi...
09/Jun/2025 | OpenLot.com.au
Queensland Leads, But NSW and VIC Fall Behind, in New Housing Buyer Demand Index
New data reveals that Australia’s new housing market remains resilient de...
06/Jun/2025 | OpenLot.com.au
Display Homes at Minters Fields Estate: A Scenic Hillside Community in Mount Barker
Nestled in the heart of Mount Barker, Minters Fields offers a truly remar...
03/Jun/2025 | OpenLot.com.au
🏡 Step Inside a Frenken Home at Smiths Lane
During a recent visit to the Smiths Lane display village, OpenLot.com.au ...












