Forest Springs Estate - Kirkwood
This information is estimated by the OpenLot research team. Let us know here to provide up-to-date information about this development.
| Total new homes | N/A |
| Area size | N/A |
| City council | Gladstone Regional Council |
| Developer | Walker Corporation |
Land for Sale, House and Land Packages:
Popular Estates near Forest Springs Estate - Kirkwood
Updates for Forest Springs Estate - Kirkwood
Location & Map for Forest Springs Estate - Kirkwood
Vacancy Rate in Kirkwood QLD 4680
View full vacancy rate history in Kirkwood QLD 4680 via SQM Research.
Schools near Forest Springs Estate - Kirkwood
Here are 6 schools near Forest Springs Estate - Kirkwood:
Prep-6 Government Primary School
Prep-6 Government Primary School
Prep-12 Independent Combined School
7-12 Catholic Secondary School
Prep-6 Catholic Primary School
7-12 Government Secondary School
Reviews & Comments on Forest Springs Estate - Kirkwood
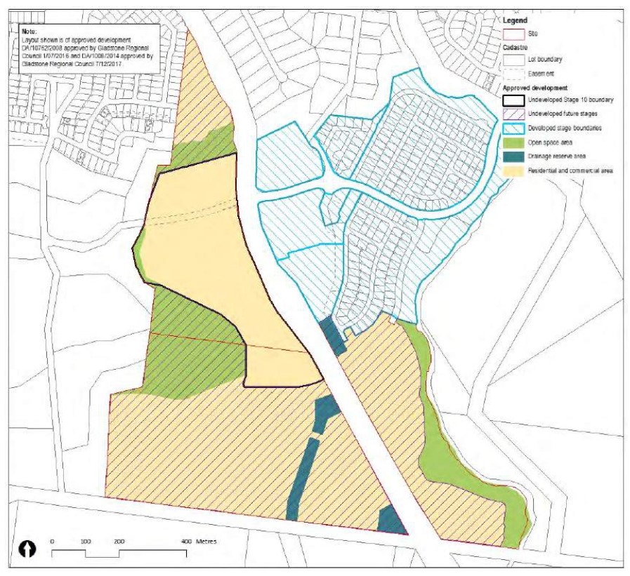
Estate Brochure, Masterplan, Engineering Plan, Plan of Subdivision (POS), Design Guidelines
FAQs about Forest Springs Estate - Kirkwood
View all estates from Walker Corporation
- Kin Kora State School - 2.6km north
- Clinton State School - 3.2km north-west
- Trinity College - 3.5km north
- Chanel College - 3.8km north
- St John the Baptist Catholic Primary School - 3.9km north-west
- Toolooa State High School - 4.0km north-east
Popular Estates near Forest Springs Estate - Kirkwood
Latest New Home Articles for You
19/Aug/2025 | OpenLot.com.au
🏡 Suburb Profile: Beveridge
19/Aug/2025 | OpenLot.com.au
test
19/Aug/2025 | OpenLot.com.au
tests
13/Jun/2025 | OpenLot.com.au
Display Homes at Playford Alive Estate: A Thriving Community at the Heart of Munno Para
Welcome to Playford Alive, a vibrant and dynamic masterplanned community ...
11/Jun/2025 | OpenLot.com.au
Display Homes at Ocean Hill Estate: A Thriving Community by the Coast
A short stroll from the white sands of Madora Beach and fringed by the co...
10/Jun/2025 | OpenLot.com.au
Display Homes at Bluestone Estate: An Established Community in the Mount Barker
Whether you’re a first home buyer, a growing family, or looking to downsi...
09/Jun/2025 | OpenLot.com.au
Queensland Leads, But NSW and VIC Fall Behind, in New Housing Buyer Demand Index
New data reveals that Australia’s new housing market remains resilient de...
06/Jun/2025 | OpenLot.com.au
Display Homes at Minters Fields Estate: A Scenic Hillside Community in Mount Barker
Nestled in the heart of Mount Barker, Minters Fields offers a truly remar...
03/Jun/2025 | OpenLot.com.au
🏡 Step Inside a Frenken Home at Smiths Lane
During a recent visit to the Smiths Lane display village, OpenLot.com.au ...








