Forster Grange Estate - Forster
This information is estimated by the OpenLot research team. Let us know here to provide up-to-date information about this development.
| Total new homes | N/A |
| Area size | N/A |
| City council | MidCoast Council |
| Developer | N/A |
| Project marketer | Professionals Forster Tuncurry |
| Creative agency | Cheeky Monkey Marketing |
Land for Sale, House and Land Packages:
Popular Estates near Forster Grange Estate - Forster
Updates for Forster Grange Estate - Forster
Location & Map for Forster Grange Estate - Forster
Vacancy Rate in Forster NSW 2428
View full vacancy rate history in Forster NSW 2428 via SQM Research.
Schools near Forster Grange Estate - Forster
Here are 6 schools near Forster Grange Estate - Forster:
7-10 Government Secondary School
K-6 Government Primary School
K-6 Catholic Primary School
K-6 Government Primary School
7-10 Government Secondary School
11-12 Government Secondary School
Reviews & Comments on Forster Grange Estate - Forster
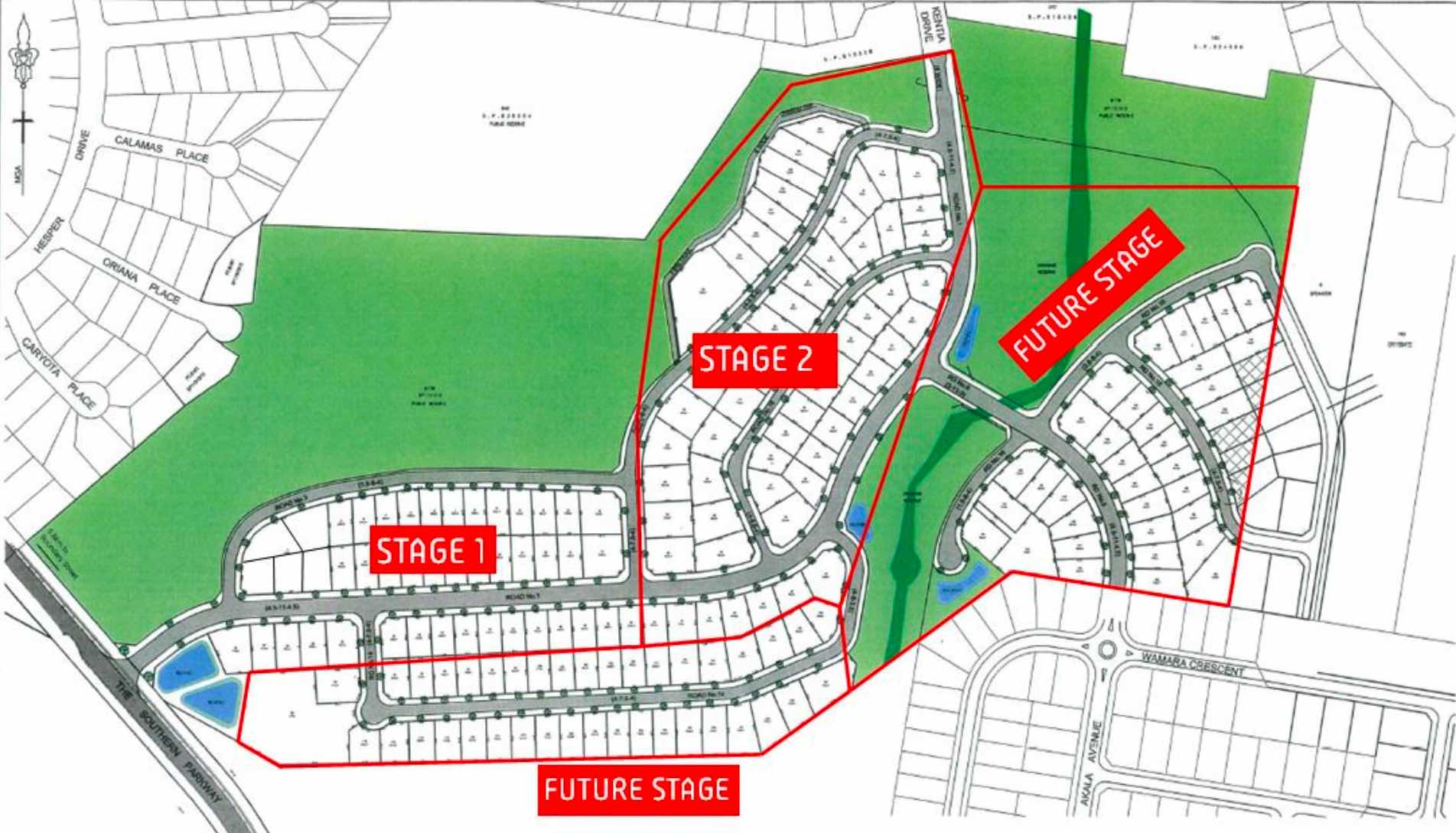
Estate Brochure, Masterplan, Engineering Plan, Plan of Subdivision (POS), Design Guidelines
FAQs about Forster Grange Estate - Forster
View all estates marketed by Professionals Forster Tuncurry
- Great Lakes College Forster Campus - 1.4km south-west
- Forster Public School - 2.7km north-west
- Holy Name Primary School - 3.0km north-west
- Tuncurry Public School - 5.3km north-west
- Great Lakes College Tuncurry Campus - 6.1km north-west
- Great Lakes College Senior Campus - 6.2km north-west
Popular Estates near Forster Grange Estate - Forster
Latest New Home Articles for You
19/Aug/2025 | OpenLot.com.au
🏡 Suburb Profile: Beveridge
19/Aug/2025 | OpenLot.com.au
test
19/Aug/2025 | OpenLot.com.au
tests
13/Jun/2025 | OpenLot.com.au
Display Homes at Playford Alive Estate: A Thriving Community at the Heart of Munno Para
Welcome to Playford Alive, a vibrant and dynamic masterplanned community ...
11/Jun/2025 | OpenLot.com.au
Display Homes at Ocean Hill Estate: A Thriving Community by the Coast
A short stroll from the white sands of Madora Beach and fringed by the co...
10/Jun/2025 | OpenLot.com.au
Display Homes at Bluestone Estate: An Established Community in the Mount Barker
Whether you’re a first home buyer, a growing family, or looking to downsi...
09/Jun/2025 | OpenLot.com.au
Queensland Leads, But NSW and VIC Fall Behind, in New Housing Buyer Demand Index
New data reveals that Australia’s new housing market remains resilient de...
06/Jun/2025 | OpenLot.com.au
Display Homes at Minters Fields Estate: A Scenic Hillside Community in Mount Barker
Nestled in the heart of Mount Barker, Minters Fields offers a truly remar...
03/Jun/2025 | OpenLot.com.au
🏡 Step Inside a Frenken Home at Smiths Lane
During a recent visit to the Smiths Lane display village, OpenLot.com.au ...





