
Fraser Vista Estate - Booral 3 AVAILABLE
[NEW RELEASE] Limited blocks available
- New Land release of 2000sqm blocks, many with water and island views.
- Priced from $425,000 to $650,000*
- Stage 2b titles anticipated August 2025. stage 3a titles anticipated late 2025.
- The Fraser Coast's best island and water-view land release.
- Views of Fraser Island and Great Sandy Strait from many blocks
- Buy land only and select the builder of your choice. Freehold land, no body corporate fees.
- Blocks serviced with town water, underground power, and NBN-ready.
- Many choices of Primary and Secondary schools including Star of the Sea Catholic School, Urangan State High School, and Fraser Coast Anglican College nearby.
- 10 minutes to local shops, 18 minutes to Hervey Bay town centre, Stockland shopping centre and medical centres.
- Enquire now to secure your preferred block.
This information is estimated by the OpenLot research team. Let us know here to provide up-to-date information about this development.
| Total new homes | 177 |
| Area size | 45.80 hectares |
| Growth Region | Hervey Bay (Wide Bay–Burnett Region) |
| City council | Fraser Coast Regional Council |
| Developer | N/A |
| Project marketer | Marks & Partners Property |
Land for Sale, House and Land Packages:
4 Land Lots in Fraser Vista Estate - Booral
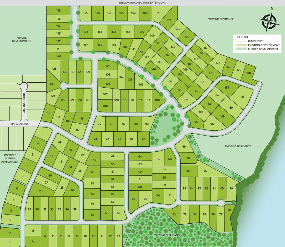
Lot 21 has a 27.8m wide frontage providing plenty of room for your sprawling home and side access. Plus the blocks is near-level, making building a breeze.
Blocks at Fraser Vista are serviced with town water, underground water, and are NBN-Ready. Civil works are nearing completion with registration anticipated in August 2025.
Select your own builder to build your dream home and enjoy the Fraser Coast lifestyle on a free-hold lot, with no body corporate fees. There are only 5 blocks available in this stage so act fast.
Fraser Vista is conveniently located just out of town and close to everything:
• 6 minutes’ drive to River Heads convenience centre
• 8 mins to boat ramp and airport
• 11 minutes to primary and secondary schools
• 15 mins to Urangan Boat Club, Marina,
• 16 mins to Medical precinct and hospitals
• 18 mins to Hervey Bay Town Centre and Stockland shopping Centre.
• 20 mins to Hervey Bay Golf Club
For more information or to arrange an onsite inspection contact Rod on 0408 619 491 or rod@markspartners.com.au
This level block makes building your home easy and cost effective, plus there's plenty of room for a pool or shed with the block being 50m deep.
Blocks at Fraser Vista are serviced with town water, underground water, and are NBN-Ready. Civil works are nearing completion with registration anticipated in August 2025.
Select your own builder to build your dream home and enjoy the Fraser Coast lifestyle on a free-hold lot, with no body corporate fees. There are only 5 blocks available in this stage so act fast.
Fraser Vista is conveniently located just out of town and close to everything:
• 6 minutes’ drive to River Heads convenience centre
• 8 mins to boat ramp and airport
• 11 minutes to primary and secondary schools
• 15 mins to Urangan Boat Club, Marina,
• 16 mins to Medical precinct and hospitals
• 18 mins to Hervey Bay Town Centre and Stockland shopping Centre.
• 20 mins to Hervey Bay Golf Club
For more information or to arrange an onsite inspection contact Rod on 0408 619 491 or rod@markspartners.com.au
Lot 196 is located on the high side of Mahalo Road in an elevated position providing a 180 degree outlook to the coastline and Fraser Island.
Blocks at Fraser Vista are serviced with town water, underground water, and are NBN-Ready. Civil works to stage 3a have commenced, with registration anticipated in late 2025.
Select your own builder to build your dream home and enjoy the Fraser Coast lifestyle on a free-hold lot, with no body corporate fees.
Fraser Vista is conveniently located just out of town and close to everything:
• 6 minutes’ drive to River Heads convenience centre
• 8 mins to boat ramp and airport
• 11 minutes to primary and secondary schools
• 15 mins to Urangan Boat Club, Marina,
• 16 mins to Medical precinct and hospitals
• 18 mins to Hervey Bay Town Centre and Stockland shopping Centre.
• 20 mins to Hervey Bay Golf Club
For more information or to arrange an onsite inspection contact Rod on 0408 619 491 or rod@markspartners.com.au
Updates for Fraser Vista Estate - Booral
Location & Map for Fraser Vista Estate - Booral
Visit Display Homes near Fraser Vista Estate - Booral
Schools near Fraser Vista Estate - Booral
Here are 6 schools near Fraser Vista Estate - Booral:
Prep-12 Independent Combined School
Prep-6 Catholic Primary School
Prep-6 Government Primary School
7-12 Government Secondary School
Prep-6 Government Primary School
Prep-12 Government Special School
Reviews & Comments on Fraser Vista Estate - Booral
Estate Brochure, Masterplan, Engineering Plan, Plan of Subdivision (POS), Design Guidelines
FAQs about Fraser Vista Estate - Booral
View all estates marketed by Marks & Partners Property
- Fraser Coast Anglican College - 8.3km north-west
- Star of the Sea Catholic School - 8.5km north
- Sandy Strait State School - 9.1km north
- Urangan State High School - 9.5km north
- Urangan Point State School - 9.6km north
- Hervey Bay Special School - 10.5km north-west
Popular Estates near Fraser Vista Estate - Booral
Latest New Home Articles for You
19/Aug/2025 | OpenLot.com.au
🏡 Suburb Profile: Beveridge
19/Aug/2025 | OpenLot.com.au
test
19/Aug/2025 | OpenLot.com.au
tests
13/Jun/2025 | OpenLot.com.au
Display Homes at Playford Alive Estate: A Thriving Community at the Heart of Munno Para
Welcome to Playford Alive, a vibrant and dynamic masterplanned community ...
11/Jun/2025 | OpenLot.com.au
Display Homes at Ocean Hill Estate: A Thriving Community by the Coast
A short stroll from the white sands of Madora Beach and fringed by the co...
10/Jun/2025 | OpenLot.com.au
Display Homes at Bluestone Estate: An Established Community in the Mount Barker
Whether you’re a first home buyer, a growing family, or looking to downsi...
09/Jun/2025 | OpenLot.com.au
Queensland Leads, But NSW and VIC Fall Behind, in New Housing Buyer Demand Index
New data reveals that Australia’s new housing market remains resilient de...
06/Jun/2025 | OpenLot.com.au
Display Homes at Minters Fields Estate: A Scenic Hillside Community in Mount Barker
Nestled in the heart of Mount Barker, Minters Fields offers a truly remar...
03/Jun/2025 | OpenLot.com.au
🏡 Step Inside a Frenken Home at Smiths Lane
During a recent visit to the Smiths Lane display village, OpenLot.com.au ...









