
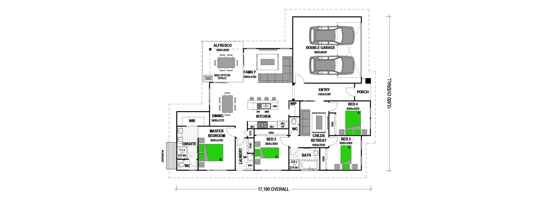
Lot 13: Avoca 198 @ Highland Estate - Walloon QLD 4306
packed with everything you need to move in!
H2 slab allowance, subject to soil tests results
Tiles to porch area and feature entry door
900mm freestanding cooker, rangehood - fully ducted to eave,
dishwasher
Soft close cabinetry, bulkheads above overhead cupboards
Caesarstone benchtops throughout
Quality flooring
Shower niches
4
2
2Development Info of Highland Estate - Walloon
This information is estimated by the OpenLot research team. Let us know here to provide up-to-date information about this development.
| Total new homes | 900 |
| Area size | 57.06 hectares |
| Growth Region | Greater Brisbane Growth Areas |
| City council | Ipswich City Council |
| Developer | Lennium Group |
| Project marketer | RPM Group |
| Creative agency | MAMA Advertising |
| Distance to | Brisbane CBD - 40 km west Gold Coast CBD - 88 km north-west |
Location & Map for Highland Estate - Walloon
Nearby Display Homes from Stroud Homes (Home Builder)
4
2.5
2
2More House and Land Packages in Highland Estate - Walloon
More House and Land Packages by Stroud Homes (Home Builder)
Vacancy Rate in Walloon QLD 4306
View full vacancy rate history in Walloon QLD 4306 via SQM Research.
Schools near Highland Estate - Walloon
Here are 6 schools near Highland Estate - Walloon:
Prep-6 Government Primary School
Prep-6 Government Primary School
Prep-6 Government Primary School
Prep-6 Government Primary School
Prep-12 Independent Combined School
Prep-6 Catholic Primary School
Popular Estates near Highland Estate - Walloon
Latest New Home Articles for You
19/Aug/2025 | OpenLot.com.au
🏡 Suburb Profile: Beveridge
19/Aug/2025 | OpenLot.com.au
test
19/Aug/2025 | OpenLot.com.au
tests
13/Jun/2025 | OpenLot.com.au
Display Homes at Playford Alive Estate: A Thriving Community at the Heart of Munno Para
Welcome to Playford Alive, a vibrant and dynamic masterplanned community ...
11/Jun/2025 | OpenLot.com.au
Display Homes at Ocean Hill Estate: A Thriving Community by the Coast
A short stroll from the white sands of Madora Beach and fringed by the co...
10/Jun/2025 | OpenLot.com.au
Display Homes at Bluestone Estate: An Established Community in the Mount Barker
Whether you’re a first home buyer, a growing family, or looking to downsi...
09/Jun/2025 | OpenLot.com.au
Queensland Leads, But NSW and VIC Fall Behind, in New Housing Buyer Demand Index
New data reveals that Australia’s new housing market remains resilient de...
06/Jun/2025 | OpenLot.com.au
Display Homes at Minters Fields Estate: A Scenic Hillside Community in Mount Barker
Nestled in the heart of Mount Barker, Minters Fields offers a truly remar...
03/Jun/2025 | OpenLot.com.au
🏡 Step Inside a Frenken Home at Smiths Lane
During a recent visit to the Smiths Lane display village, OpenLot.com.au ...











