HoneyGrove Estate - Anketell
- Side and Rear Colourbond Fencing Included
- Close to Costco Wholesale
- Close to Approved shopping precinct
- Stage 1 is SOLD OUT
- Stage 2 has 3 lots left, Titled May 2025 approx
- Satge 3 - land released, titles November 2025- approx
This information is estimated by the OpenLot research team. Let us know here to provide up-to-date information about this development.
| Total new homes | 144 |
| Area size | N/A |
| Growth Region | Perth South West Growth Areas |
| City council | City of Kwinana |
| Developer | Jardim Property Group |
| Distance to | Perth CBD - 30 km south Perth Airport - 33 km south |
Land for Sale, House and Land Packages:
Popular Estates near HoneyGrove Estate - Anketell
Updates for HoneyGrove Estate - Anketell
Location & Map for HoneyGrove Estate - Anketell
Vacancy Rate in Anketell WA 6167
View full vacancy rate history in Anketell WA 6167 via SQM Research.
Schools near HoneyGrove Estate - Anketell
Here are 6 schools near HoneyGrove Estate - Anketell:
K-6 Government Primary School
K-6 Government Primary School
K-6 Government Primary School
PP-12 Independent Combined School
K-6 Government Primary School
7-12 Government Secondary School
Reviews & Comments on HoneyGrove Estate - Anketell
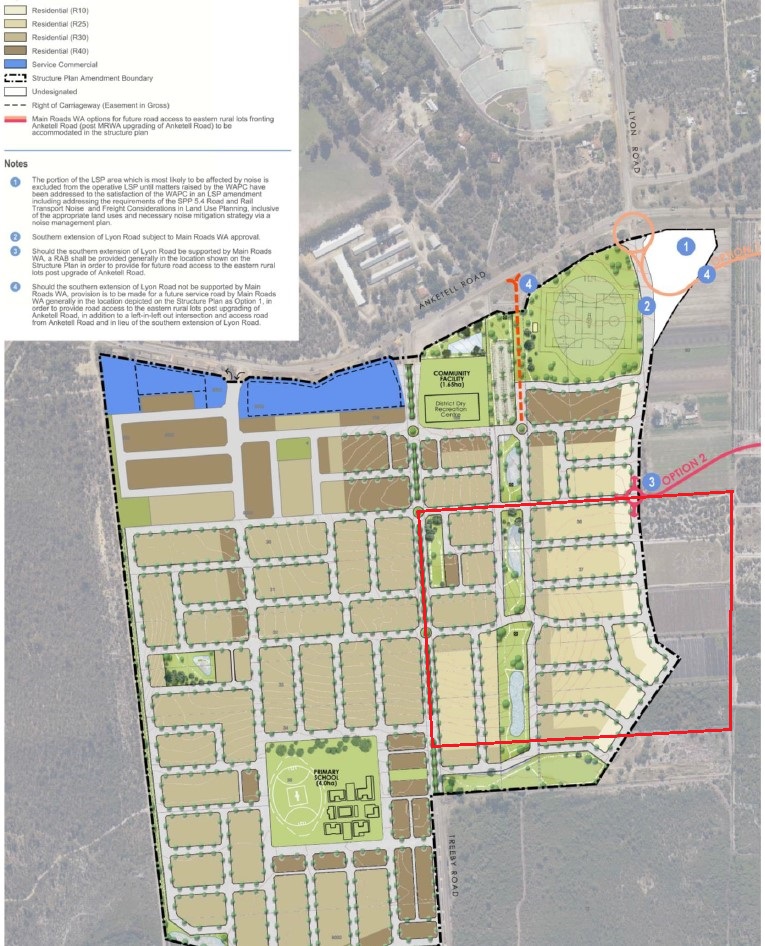
Estate Brochure, Masterplan, Engineering Plan, Plan of Subdivision (POS), Design Guidelines
FAQs about HoneyGrove Estate - Anketell
View all estates from Jardim Property Group
- North Parmelia Primary School - 3.0km south-west
- Bertram Primary School - 3.4km south-west
- Honeywood Primary School - 3.5km north-east
- The King's College - 4.1km south-west
- Orelia Primary School - 4.8km west
- Gilmore College - 4.8km west
Popular Estates near HoneyGrove Estate - Anketell
Latest New Home Articles for You
19/Aug/2025 | OpenLot.com.au
🏡 Suburb Profile: Beveridge
19/Aug/2025 | OpenLot.com.au
test
19/Aug/2025 | OpenLot.com.au
tests
13/Jun/2025 | OpenLot.com.au
Display Homes at Playford Alive Estate: A Thriving Community at the Heart of Munno Para
Welcome to Playford Alive, a vibrant and dynamic masterplanned community ...
11/Jun/2025 | OpenLot.com.au
Display Homes at Ocean Hill Estate: A Thriving Community by the Coast
A short stroll from the white sands of Madora Beach and fringed by the co...
10/Jun/2025 | OpenLot.com.au
Display Homes at Bluestone Estate: An Established Community in the Mount Barker
Whether you’re a first home buyer, a growing family, or looking to downsi...
09/Jun/2025 | OpenLot.com.au
Queensland Leads, But NSW and VIC Fall Behind, in New Housing Buyer Demand Index
New data reveals that Australia’s new housing market remains resilient de...
06/Jun/2025 | OpenLot.com.au
Display Homes at Minters Fields Estate: A Scenic Hillside Community in Mount Barker
Nestled in the heart of Mount Barker, Minters Fields offers a truly remar...
03/Jun/2025 | OpenLot.com.au
🏡 Step Inside a Frenken Home at Smiths Lane
During a recent visit to the Smiths Lane display village, OpenLot.com.au ...








