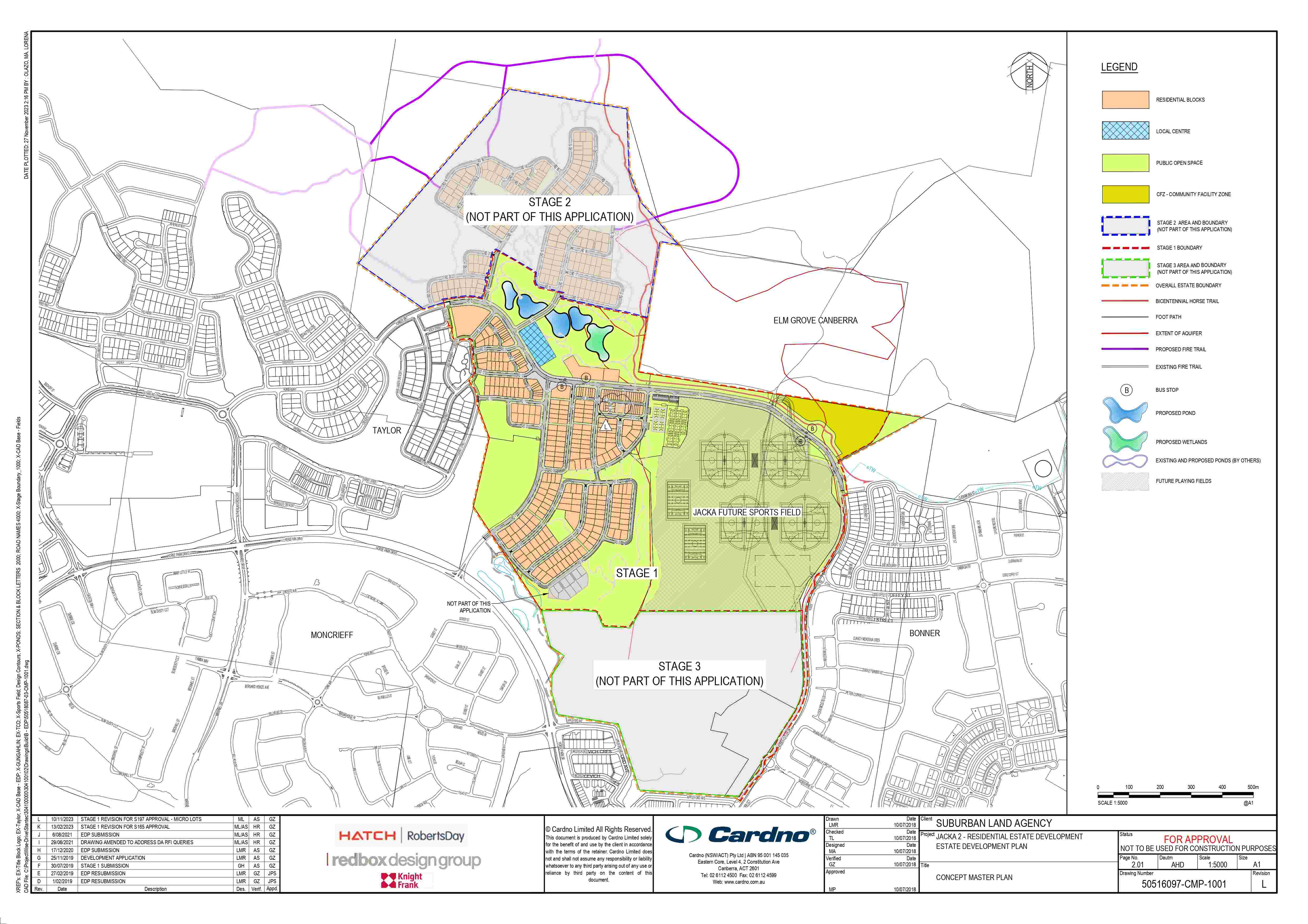
Jacka Estate - Bonner
This information is estimated by the OpenLot research team. Let us know here to provide up-to-date information about this development.
| Total new homes | 700 |
| Area size | N/A |
| Growth Region | Canberra Growth Regions |
| City council | Australian Capital Territory |
| Developer | Suburban Land Agency |
| Distance to | Canberra CBD - 17 km north Canberra Airport - 18 km north |
Land for Sale, House and Land Packages:
Popular Estates near Jacka Estate - Bonner
Updates for Jacka Estate - Bonner
Location & Map for Jacka Estate - Bonner
Schools near Jacka Estate - Bonner
Here are 6 schools near Jacka Estate - Bonner:
K-8 Independent Combined School
K-10 Government Combined School
K-6 Government Primary School
K-6 Government Primary School
K-6 Catholic Primary School
Unknown Government School
Reviews & Comments on Jacka Estate - Bonner
Estate Brochure, Masterplan, Engineering Plan, Plan of Subdivision (POS), Design Guidelines
FAQs about Jacka Estate - Bonner
View all estates from Suburban Land Agency
- Taqwa School - 1.0km south-west
- Amaroo School - 1.4km south
- Margaret Hendry School - 1.4km west
- Neville Bonner Primary School - 1.5km south-east
- Good Shepherd Primary School - 1.5km south
- Aunty Agnes Shea High School - 1.8km west
Popular Estates near Jacka Estate - Bonner
Latest New Home Articles for You
19/Aug/2025 | OpenLot.com.au
🏡 Suburb Profile: Beveridge
19/Aug/2025 | OpenLot.com.au
test
19/Aug/2025 | OpenLot.com.au
tests
13/Jun/2025 | OpenLot.com.au
Display Homes at Playford Alive Estate: A Thriving Community at the Heart of Munno Para
Welcome to Playford Alive, a vibrant and dynamic masterplanned community ...
11/Jun/2025 | OpenLot.com.au
Display Homes at Ocean Hill Estate: A Thriving Community by the Coast
A short stroll from the white sands of Madora Beach and fringed by the co...
10/Jun/2025 | OpenLot.com.au
Display Homes at Bluestone Estate: An Established Community in the Mount Barker
Whether you’re a first home buyer, a growing family, or looking to downsi...
09/Jun/2025 | OpenLot.com.au
Queensland Leads, But NSW and VIC Fall Behind, in New Housing Buyer Demand Index
New data reveals that Australia’s new housing market remains resilient de...
06/Jun/2025 | OpenLot.com.au
Display Homes at Minters Fields Estate: A Scenic Hillside Community in Mount Barker
Nestled in the heart of Mount Barker, Minters Fields offers a truly remar...
03/Jun/2025 | OpenLot.com.au
🏡 Step Inside a Frenken Home at Smiths Lane
During a recent visit to the Smiths Lane display village, OpenLot.com.au ...








