Janson Views Estate - Brown Hill 6 AVAILABLE
- Approximately 10 minutes from Ballarat’s city centre
- 7 minutes to the Western Freeway
- Set amongst surrounding bushland in proximity to endless walking and cycling trails
- Features larger than normal block sizes, perfectly suited for growing families
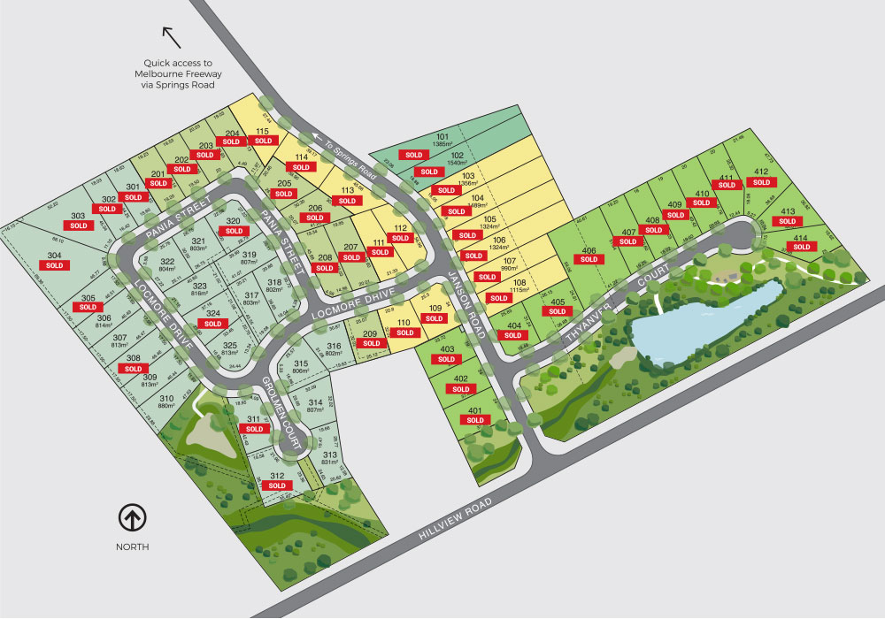
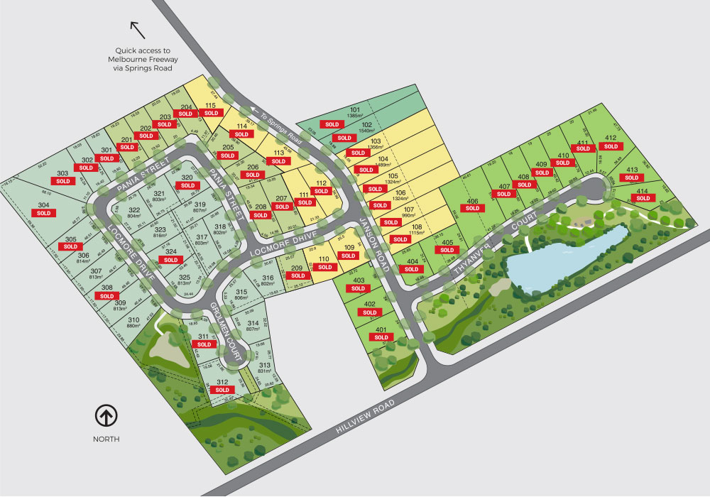
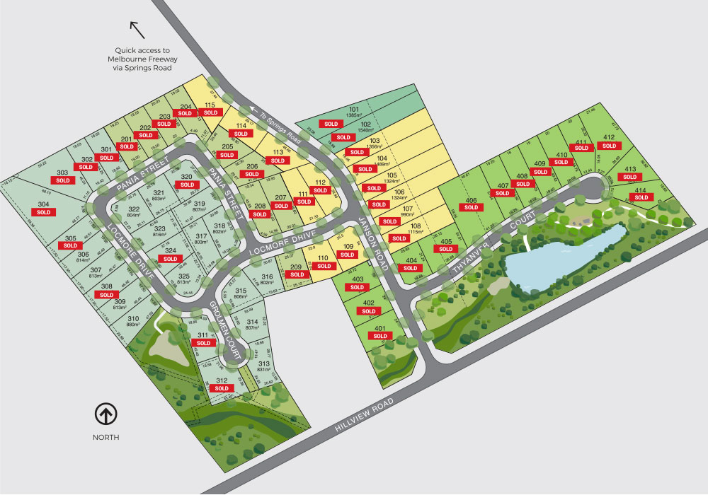
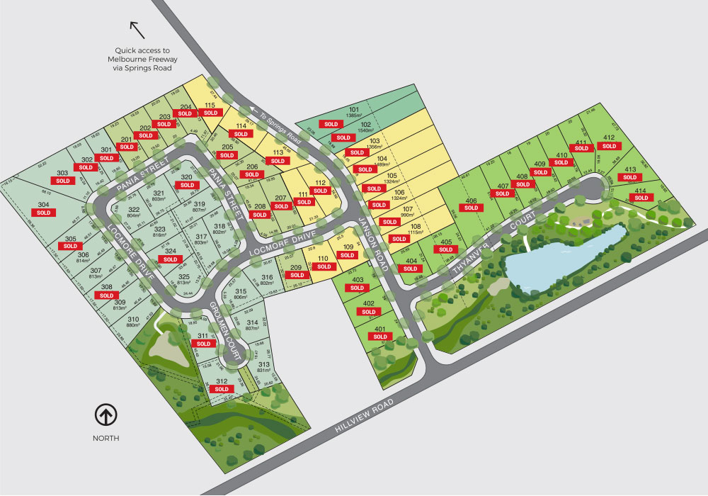
- Stage three, the final stage, features blocks ranging in size from 802sqm to 2,393sqm.
This information is estimated by the OpenLot research team. Let us know here to provide up-to-date information about this development.
| Total new homes | 63 |
| Area size | N/A |
| Growth Region | City of Ballarat Growth Areas |
| City council | Ballarat City Council |
| Developer | N/A |
| Project marketer | Jellis Craig Ballarat |
| Creative agency | Momentum Co |
| Distance to | Ballarat CBD - 7 km east Melbourne CBD - 97 km west |
Land for Sale, House and Land Packages:
6 Land Lots in Janson Views Estate - Brown Hill
Popular Estates near Janson Views Estate - Brown Hill
Updates for Janson Views Estate - Brown Hill
Location & Map for Janson Views Estate - Brown Hill
Visit Display Homes near Janson Views Estate - Brown Hill
Land Price Trend in Brown Hill VIC 3350
- In Oct - Dec 23, the median price for vacant land in Brown Hill VIC 3350 was $305,000. *
- From Oct - Dec 17 to Oct - Dec 23, the median price for vacant land in Brown Hill VIC 3350 has increased 47.7%. *
- From 2008 to 2024, the median price for vacant land in Brown Hill VIC 3350 has increased 213.73%. *
Vacancy Rate in Brown Hill VIC 3350
View full vacancy rate history in Brown Hill VIC 3350 via SQM Research.
Schools near Janson Views Estate - Brown Hill
Here are 6 schools near Janson Views Estate - Brown Hill:
Prep-6 Government Primary School
Prep-6 Government Primary School
Prep-6 Catholic Primary School
Prep-6 Government Primary School
7-12 Government Secondary School
Prep-6 Government Primary School
Reviews & Comments on Janson Views Estate - Brown Hill
Estate Brochure, Masterplan, Engineering Plan, Plan of Subdivision (POS), Design Guidelines
FAQs about Janson Views Estate - Brown Hill
View all estates marketed by Jellis Craig Ballarat
- Little Bendigo Primary School - 2.3km west
- Glen Park Primary School - 2.3km north-east
- St Francis Xavier School - 2.7km south-west
- Caledonian Primary School - 2.7km south-west
- Woodmans Hill Secondary College - 3.0km south-west
- Warrenheip Primary School - 3.6km south
Popular Estates near Janson Views Estate - Brown Hill
Latest New Home Articles for You
19/Aug/2025 | OpenLot.com.au
🏡 Suburb Profile: Beveridge
19/Aug/2025 | OpenLot.com.au
test
19/Aug/2025 | OpenLot.com.au
tests
13/Jun/2025 | OpenLot.com.au
Display Homes at Playford Alive Estate: A Thriving Community at the Heart of Munno Para
Welcome to Playford Alive, a vibrant and dynamic masterplanned community ...
11/Jun/2025 | OpenLot.com.au
Display Homes at Ocean Hill Estate: A Thriving Community by the Coast
A short stroll from the white sands of Madora Beach and fringed by the co...
10/Jun/2025 | OpenLot.com.au
Display Homes at Bluestone Estate: An Established Community in the Mount Barker
Whether you’re a first home buyer, a growing family, or looking to downsi...
09/Jun/2025 | OpenLot.com.au
Queensland Leads, But NSW and VIC Fall Behind, in New Housing Buyer Demand Index
New data reveals that Australia’s new housing market remains resilient de...
06/Jun/2025 | OpenLot.com.au
Display Homes at Minters Fields Estate: A Scenic Hillside Community in Mount Barker
Nestled in the heart of Mount Barker, Minters Fields offers a truly remar...
03/Jun/2025 | OpenLot.com.au
🏡 Step Inside a Frenken Home at Smiths Lane
During a recent visit to the Smiths Lane display village, OpenLot.com.au ...











