
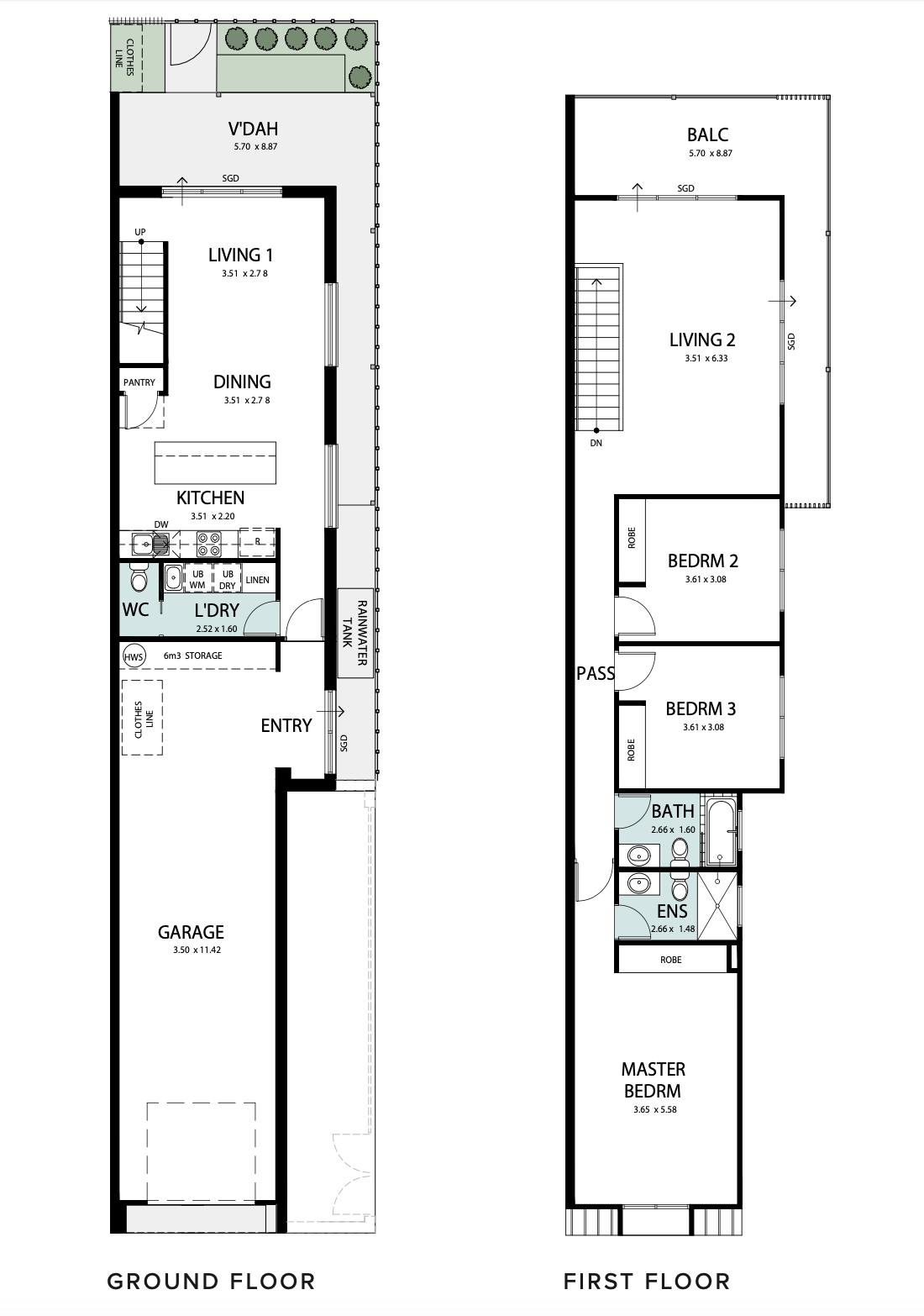
Lot 5: Soho @ Kingslea Estate - Broadmeadows VIC 3047
Anticipated to be completed January 2025
2700mm ceiling height throughout
Air conditioning: ducted reverse cycle
600mm Artusi kitchen appliances
Floor coverings throughout
Essastone benchtops to kitchen, bathrooms, laundry, WC
LED down lights throughout (fluro to garage)
Fencing, paving & landscaping included
Fibre optic cable connection NBN ready
Colorbond panel lift garage
Part of a brand new masterplanned community - Kingslea
2
2
2Development Info of Kingslea Estate - Broadmeadows
This information is estimated by the OpenLot research team. Let us know here to provide up-to-date information about this development.
| Total new homes | N/A |
| Area size | 3.26 hectares |
| Growth Region | Melbourne North Growth Corridor |
| City council | Hume City Council |
| Developer | Gorway Projects |
| Creative agency | Klik Advertising |
| Distance to | Melbourne Airport - 8 km east Melbourne CBD - 16 km north |
Location & Map for Kingslea Estate - Broadmeadows
Visit Display Homes near Kingslea Estate - Broadmeadows
More Townhouses in Kingslea Estate - Broadmeadows
Vacancy Rate in Broadmeadows VIC 3047
View full vacancy rate history in Broadmeadows VIC 3047 via SQM Research.
Schools near Kingslea Estate - Broadmeadows
Here are 6 schools near Kingslea Estate - Broadmeadows:
Prep-6 Government Primary School
Prep-6 Independent Primary School
Prep-6 Catholic Primary School
U Government Special School - School Head Campus
Prep-12 Independent Combined School - School Head Campus
Prep-6 Government Primary School
Popular Estates near Kingslea Estate - Broadmeadows
Latest New Home Articles for You
19/Aug/2025 | OpenLot.com.au
🏡 Suburb Profile: Beveridge
19/Aug/2025 | OpenLot.com.au
test
19/Aug/2025 | OpenLot.com.au
tests
13/Jun/2025 | OpenLot.com.au
Display Homes at Playford Alive Estate: A Thriving Community at the Heart of Munno Para
Welcome to Playford Alive, a vibrant and dynamic masterplanned community ...
11/Jun/2025 | OpenLot.com.au
Display Homes at Ocean Hill Estate: A Thriving Community by the Coast
A short stroll from the white sands of Madora Beach and fringed by the co...
10/Jun/2025 | OpenLot.com.au
Display Homes at Bluestone Estate: An Established Community in the Mount Barker
Whether you’re a first home buyer, a growing family, or looking to downsi...
09/Jun/2025 | OpenLot.com.au
Queensland Leads, But NSW and VIC Fall Behind, in New Housing Buyer Demand Index
New data reveals that Australia’s new housing market remains resilient de...
06/Jun/2025 | OpenLot.com.au
Display Homes at Minters Fields Estate: A Scenic Hillside Community in Mount Barker
Nestled in the heart of Mount Barker, Minters Fields offers a truly remar...
03/Jun/2025 | OpenLot.com.au
🏡 Step Inside a Frenken Home at Smiths Lane
During a recent visit to the Smiths Lane display village, OpenLot.com.au ...












