Mason Green Private Estate - Piara Waters SOLD OUT
This information is estimated by the OpenLot research team. Let us know here to provide up-to-date information about this development.
| Total new homes | 425 |
| Area size | 27.10 hectares |
| Growth Region | Perth South East Growth Areas |
| City council | City of Armadale |
| Developer | QUBE Property Group |
| Distance to | Perth CBD - 20 km south Perth Airport - 22 km south |
Land for Sale, House and Land Packages:
Popular Estates near Mason Green Private Estate - Piara Waters
Updates for Mason Green Private Estate - Piara Waters
Location & Map for Mason Green Private Estate - Piara Waters
Vacancy Rate in Piara Waters WA 6112
View full vacancy rate history in Piara Waters WA 6112 via SQM Research.
Schools near Mason Green Private Estate - Piara Waters
Here are 6 schools near Mason Green Private Estate - Piara Waters:
K-6 Government Primary School
7-8 Government Secondary School
K-6 Government Primary School
K-6 Government Primary School
7-12 Government Secondary School
PP-11 Catholic Combined School
Reviews & Comments on Mason Green Private Estate - Piara Waters
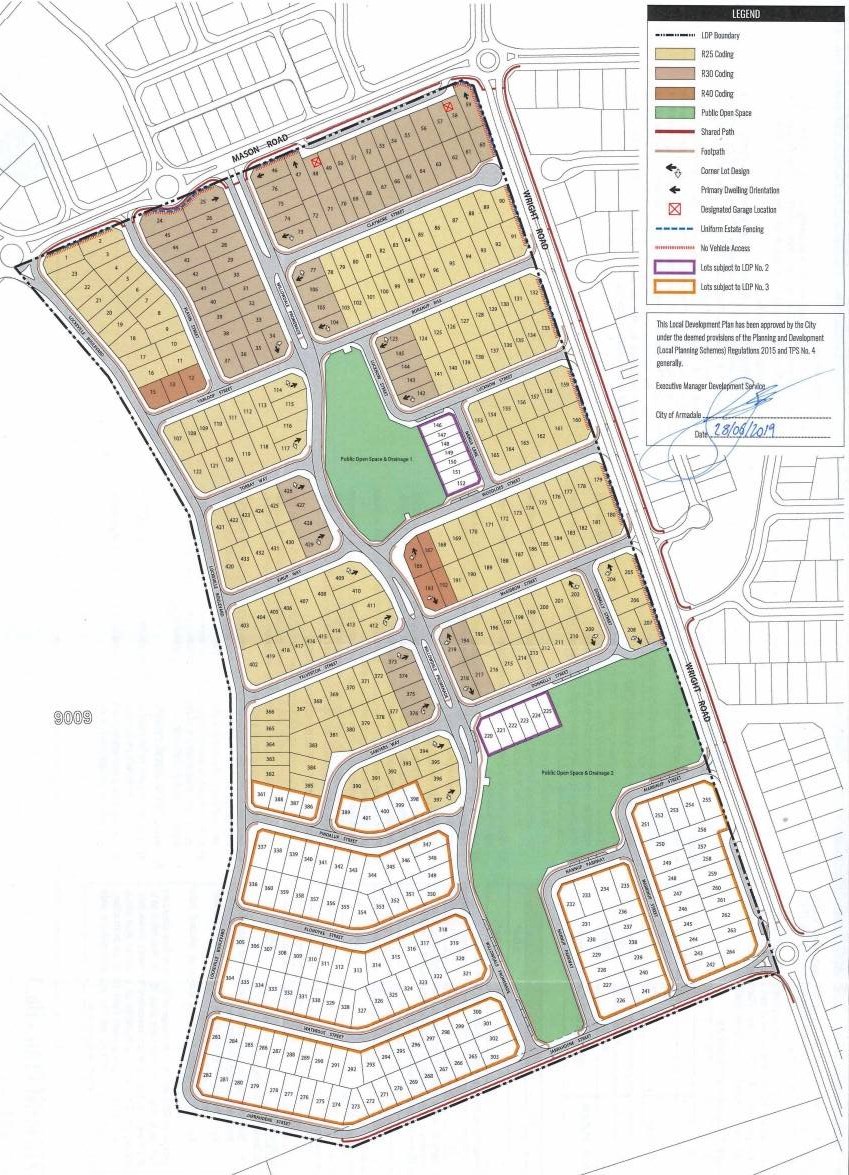
Estate Brochure, Masterplan, Engineering Plan, Plan of Subdivision (POS), Design Guidelines
FAQs about Mason Green Private Estate - Piara Waters
View all estates from QUBE Property Group
- Piara Waters Primary School - 558m south
- Piara Waters Senior High School - 598m north
- Aspiri Primary School - 972m south
- Riva Primary School - 1.8km south-east
- Harrisdale Senior High School - 2.3km east
- St John Bosco College - 2.5km south-east
Popular Estates near Mason Green Private Estate - Piara Waters
Latest New Home Articles for You
19/Aug/2025 | OpenLot.com.au
🏡 Suburb Profile: Beveridge
19/Aug/2025 | OpenLot.com.au
test
19/Aug/2025 | OpenLot.com.au
tests
13/Jun/2025 | OpenLot.com.au
Display Homes at Playford Alive Estate: A Thriving Community at the Heart of Munno Para
Welcome to Playford Alive, a vibrant and dynamic masterplanned community ...
11/Jun/2025 | OpenLot.com.au
Display Homes at Ocean Hill Estate: A Thriving Community by the Coast
A short stroll from the white sands of Madora Beach and fringed by the co...
10/Jun/2025 | OpenLot.com.au
Display Homes at Bluestone Estate: An Established Community in the Mount Barker
Whether you’re a first home buyer, a growing family, or looking to downsi...
09/Jun/2025 | OpenLot.com.au
Queensland Leads, But NSW and VIC Fall Behind, in New Housing Buyer Demand Index
New data reveals that Australia’s new housing market remains resilient de...
06/Jun/2025 | OpenLot.com.au
Display Homes at Minters Fields Estate: A Scenic Hillside Community in Mount Barker
Nestled in the heart of Mount Barker, Minters Fields offers a truly remar...
03/Jun/2025 | OpenLot.com.au
🏡 Step Inside a Frenken Home at Smiths Lane
During a recent visit to the Smiths Lane display village, OpenLot.com.au ...









