
Parklands Estate - Wonthaggi 15 AVAILABLE
[LIMITED OFFER] Stage 7 & Stage 9 Release Now Selling!
- NEW RELEASE: Stage 9B has just hit the market, consisting of 14 premium allotments ranging from 409m2 through to an expansive 790m2.
- Stage 9 Release: Our Stage 9A release includes 13 premium allotments adjacent to parklands ranging from 350m2 through to an impressive 729m2.
- Landscaping, solar & security rebates
- NBN connected community
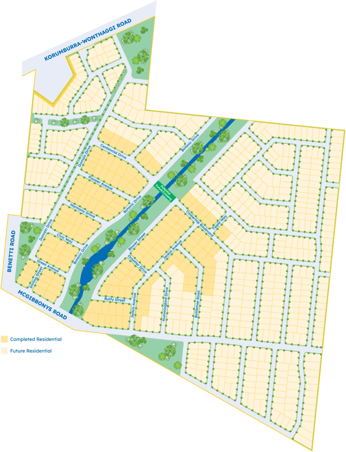
- These lots are close to the future park so very desirable for existing and growing families
- 14 acres of open space & parks
- Corner & rear fencing including
- 3 minute drive into town centre
- Shopping, eating out, hospitals, police, public transport, schools, sporting clubs — you name it, Wonthaggi has you covered.
- Parklands is only a 12-minute drive to the popular town of Inverloch
- 24 minutes to the world-famous Phillip Island and 65 minutes to Cranbourne
- 120 mins to Melbourne CBD
- The Wonthaggi Plaza has major retailers such as Kmart, Coles and Liquorland eateries and other services
- There is also a Woolworths, ALDI and IGA elsewhere in town.
- There are two gyms, a heated pool, a large recreation ground where a variety of sports are catered
- There is a good choice in secondary schools for a small population and three local primary schools
- Wonthaggi has a total of 9 bus routes, including a V-line service
- Wonthaggi is also located just 45 minutes from the newly proposed Airport at Koo Wee Rup.
- Sales office has relocated to 39 McGibbony’s Road.
This information is estimated by the OpenLot research team. Let us know here to provide up-to-date information about this development.
| Total new homes | 600 |
| Area size | N/A |
| Growth Region | Gippsland Regional Growth Areas |
| City council | Bass Coast Shire Council |
| Developer | Parklea |
| Creative agency | Kick&Co, Zain Digital |
Land for Sale, House and Land Packages:
12 Land Lots in Parklands Estate - Wonthaggi
- NBN connected community
- Seconds walking distance to new park
- 3 minute drive to town centre
- premium streetscapes
- Rear fencing included
- Shops, restaurants, schools, public transport, hospital, sporting grounds all a short drive away.
- NBN connected community
- Seconds walking distance to new park
- 3 minute drive to town centre
- Premium landscapes
- Landscaping & security rebates
- NBN connected community
- 3 minute drive to town centre
- Premium landscapes and open spaces
- Multiple parks & wetlands
- Security rebate ($500).
- Proximity to future park.
- Short 3 minute drive to town centre.
- No rear easement.
6 House and Land Packages in Parklands Estate - Wonthaggi
Updates for Parklands Estate - Wonthaggi
Location & Map for Parklands Estate - Wonthaggi
Land Price Trend in Wonthaggi VIC 3995
- In Oct - Dec 24, the median price for vacant land in Wonthaggi VIC 3995 was $269,000. *
- From Oct - Dec 17 to Oct - Dec 24, the median price for vacant land in Wonthaggi VIC 3995 has increased 90.11%. *
- From 2008 to 2024, the median price for vacant land in Wonthaggi VIC 3995 has increased 129.79%. *
Vacancy Rate in Wonthaggi VIC 3995
View full vacancy rate history in Wonthaggi VIC 3995 via SQM Research.
Schools near Parklands Estate - Wonthaggi
Here are 6 schools near Parklands Estate - Wonthaggi:
Prep-6 Catholic Primary School
Prep-6 Government Primary School
U Government Special School
7-12 Government Secondary School - School Head Campus
Prep-6 Government Primary School
Prep-6 Government Primary School
Reviews & Comments on Parklands Estate - Wonthaggi
Estate Brochure, Masterplan, Engineering Plan, Plan of Subdivision (POS), Design Guidelines
FAQs about Parklands Estate - Wonthaggi
View all estates from Parklea
- St Joseph's School - 1.1km south-west
- Wonthaggi North Primary School - 1.3km west
- Bass Coast Specialist School - 2.1km south-west
- Bass Coast College - 2.1km south-west
- Wonthaggi Primary School - 2.6km south-west
- Powlett River Primary School - 7.2km north-west
Popular Estates near Parklands Estate - Wonthaggi
Latest New Home Articles for You
19/Aug/2025 | OpenLot.com.au
🏡 Suburb Profile: Beveridge
19/Aug/2025 | OpenLot.com.au
test
19/Aug/2025 | OpenLot.com.au
tests
13/Jun/2025 | OpenLot.com.au
Display Homes at Playford Alive Estate: A Thriving Community at the Heart of Munno Para
Welcome to Playford Alive, a vibrant and dynamic masterplanned community ...
11/Jun/2025 | OpenLot.com.au
Display Homes at Ocean Hill Estate: A Thriving Community by the Coast
A short stroll from the white sands of Madora Beach and fringed by the co...
10/Jun/2025 | OpenLot.com.au
Display Homes at Bluestone Estate: An Established Community in the Mount Barker
Whether you’re a first home buyer, a growing family, or looking to downsi...
09/Jun/2025 | OpenLot.com.au
Queensland Leads, But NSW and VIC Fall Behind, in New Housing Buyer Demand Index
New data reveals that Australia’s new housing market remains resilient de...
06/Jun/2025 | OpenLot.com.au
Display Homes at Minters Fields Estate: A Scenic Hillside Community in Mount Barker
Nestled in the heart of Mount Barker, Minters Fields offers a truly remar...
03/Jun/2025 | OpenLot.com.au
🏡 Step Inside a Frenken Home at Smiths Lane
During a recent visit to the Smiths Lane display village, OpenLot.com.au ...













