Lot 22 Skyline Avenue, Dennington: Curlewis 150 @ Skyline Warrnambool Estate - Dennington VIC 3280

3
2Development Info of Skyline Warrnambool Estate - Dennington
This information is estimated by the OpenLot research team. Let us know here to provide up-to-date information about this development.
| Total new homes | 29 |
| Area size | 1.52 hectares |
| City council | Warrnambool City Council |
| Developer | N/A |
Location & Map for Skyline Warrnambool Estate - Dennington
More House and Land Packages in Skyline Warrnambool Estate - Dennington

3
2
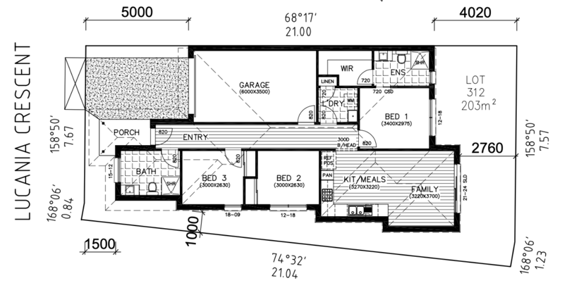
2Ideal for first home buyers or downsizers, the home provides three bedrooms that are well separated throughout the home, including a private master suite to the rear with ensuite and walk-in robe.
Light and breezes flow into a spacious open plan living area, comprising a stylish kitchen, island bench, family and dining area, connecting to the outdoors with large windows down the side and sliding doors to a covered outdoor living space to the rear.
A modern approach with entry from the side of the home, allows the third bedroom to be positioned for privacy at the front. A study, laundry and double garage are welcome additions, making the Riverbank a delightful family home.
Allow yourself to imagine the lifestyle you’ve always wanted; in the home you deserve

3
2
1You connect with your preferred house and land specialist nominated within this page all have customised H&L specials to suit all budgets-
Elevated blocks capture panoramic landscape views across rural farmlands with Tower Hill and Koroit as the scenic backdrop to the west.

4
2
2You connect with your preferred house and land specialist nominated within this page all have customised H&L specials to suit all budgets-
Elevated blocks capture panoramic landscape views across rural farmlands with Tower Hill and Koroit as the scenic backdrop to the west.
More House and Land Packages by G.J. Gardner Homes (Home Builder)
Land Price Trend in Dennington VIC 3280
- In Oct - Dec 23, the median price for vacant land in Dennington VIC 3280 was $140,000. *
- From Oct - Dec 17 to Oct - Dec 23, the median price for vacant land in Dennington VIC 3280 has increased 9.8%. *
- From 2008 to 2023, the median price for vacant land in Dennington VIC 3280 has increased 27.27%. *
Vacancy Rate in Dennington VIC 3280
View full vacancy rate history in Dennington VIC 3280 via SQM Research.
Schools near Skyline Warrnambool Estate - Dennington
Here are 6 schools near Skyline Warrnambool Estate - Dennington:
Prep-6 Catholic Primary School
7-12 Government Secondary School - School Head Campus
Prep-6 Catholic Primary School
Prep-6 Government Primary School
U Government Special School
Prep-6 Government Primary School
Popular Estates near Skyline Warrnambool Estate - Dennington
Latest New Home Articles for You
19/Aug/2025 | OpenLot.com.au
🏡 Suburb Profile: Beveridge
19/Aug/2025 | OpenLot.com.au
test
19/Aug/2025 | OpenLot.com.au
tests
13/Jun/2025 | OpenLot.com.au
Display Homes at Playford Alive Estate: A Thriving Community at the Heart of Munno Para
Welcome to Playford Alive, a vibrant and dynamic masterplanned community ...
11/Jun/2025 | OpenLot.com.au
Display Homes at Ocean Hill Estate: A Thriving Community by the Coast
A short stroll from the white sands of Madora Beach and fringed by the co...
10/Jun/2025 | OpenLot.com.au
Display Homes at Bluestone Estate: An Established Community in the Mount Barker
Whether you’re a first home buyer, a growing family, or looking to downsi...
09/Jun/2025 | OpenLot.com.au
Queensland Leads, But NSW and VIC Fall Behind, in New Housing Buyer Demand Index
New data reveals that Australia’s new housing market remains resilient de...
06/Jun/2025 | OpenLot.com.au
Display Homes at Minters Fields Estate: A Scenic Hillside Community in Mount Barker
Nestled in the heart of Mount Barker, Minters Fields offers a truly remar...
03/Jun/2025 | OpenLot.com.au
🏡 Step Inside a Frenken Home at Smiths Lane
During a recent visit to the Smiths Lane display village, OpenLot.com.au ...











