
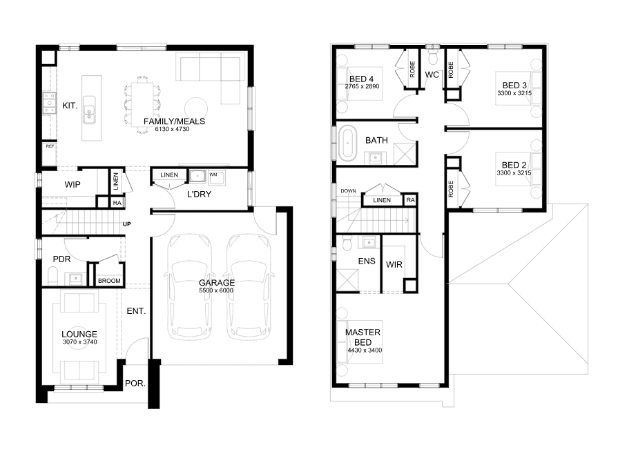
Lot 334: Manly @ Society 1056 - Fraser Rise VIC 3336
- Fixed Site Costs Including Rock Removal
- 7-star energy rated homes
- Double-glazed awning windows and sliding doors to homes throughout
- 40mm edge category 1 stone bench top
- 1500mm freestanding bath
- Brickwork above all elevations including windows, external doors and over garage with face brick
- Evaporative cooling throughout
Neighbouring the well-established communities of Caroline Springs and Taylors Hill, Society 1056 is prominently positioned in the heart of one of Melbourneās up-and-coming new suburbs, Fraser Rise. Residents have access to a wealth of existing retail, education, hospitality, recreation, and relaxation amenity in the local area.
Society 1056 is designed to be low-impact, habitat-healthy, and pedestrian-friendly. Rebated solar energy for all-electric homes means greater efficiency, healthier living environments and lower household running costs. Hardy, shade-producing trees provide a cool refuge from the summer heat. Parks and waterways support a strong biodiversity mix and connect via walk and bike paths to encourage eco-friendly movement for people and native fauna.

4
2
2Development Info of Society 1056 - Fraser Rise
This information is estimated by the OpenLot research team. Let us know here to provide up-to-date information about this development.
| Total new homes | 1,300 |
| Area size | 93.06 hectares |
| Growth Region | Melbourne West Growth Corridor |
| City council | Melton City Council |
| Developer | YourLand Developments, NTT UD Australia |
| Distance to | Melbourne Airport - 13 km west Melbourne CBD - 25 km north-west |
Location & Map for Society 1056 - Fraser Rise
Nearby Display Homes from Sherridon Homes (Home Builder)
4
2
2
2
4
2
3
2Visit Display Homes near Society 1056 - Fraser Rise
More House and Land Packages in Society 1056 - Fraser Rise
More House and Land Packages by Sherridon Homes (Home Builder)
Land Price Trend in Fraser Rise VIC 3336
- In Oct - Dec 24, the median price for vacant land in Fraser Rise VIC 3336 was $370,000. *
- From Oct - Dec 17 to Oct - Dec 24, the median price for vacant land in Fraser Rise VIC 3336 has increased 21.31%. *
- From 2011 to 2024, the median price for vacant land in Fraser Rise VIC 3336 has increased 45.92%. *
Vacancy Rate in Fraser Rise VIC 3336
View full vacancy rate history in Fraser Rise VIC 3336 via SQM Research.
Schools near Society 1056 - Fraser Rise
Here are 6 schools near Society 1056 - Fraser Rise:
Prep-6 Government Primary School
7-12 Government Secondary School
Prep-6 Catholic Primary School
Prep-12 Independent Combined School
7-10 Catholic Secondary School
Prep-9 Government Combined School
Popular Estates near Society 1056 - Fraser Rise
Latest New Home Articles for You
19/Aug/2025 | OpenLot.com.au
š” Suburb Profile: Beveridge
19/Aug/2025 | OpenLot.com.au
test
19/Aug/2025 | OpenLot.com.au
tests
13/Jun/2025 | OpenLot.com.au
Display Homes at Playford Alive Estate: A Thriving Community at the Heart of Munno Para
Welcome to Playford Alive, a vibrant and dynamic masterplanned community ...
11/Jun/2025 | OpenLot.com.au
Display Homes at Ocean Hill Estate: A Thriving Community by the Coast
A short stroll from the white sands of Madora Beach and fringed by the co...
10/Jun/2025 | OpenLot.com.au
Display Homes at Bluestone Estate: An Established Community in the Mount Barker
Whether youāre a first home buyer, a growing family, or looking to downsi...
09/Jun/2025 | OpenLot.com.au
Queensland Leads, But NSW and VIC Fall Behind, in New Housing Buyer Demand Index
New data reveals that Australiaās new housing market remains resilient de...
06/Jun/2025 | OpenLot.com.au
Display Homes at Minters Fields Estate: A Scenic Hillside Community in Mount Barker
Nestled in the heart of Mount Barker, Minters Fields offers a truly remar...
03/Jun/2025 | OpenLot.com.au
š” Step Inside a Frenken Home at Smiths Lane
During a recent visit to the Smiths Lane display village, OpenLot.com.au ...























