Symmetry Estate - Denman Prospect SOLD OUT
This information is estimated by the OpenLot research team. Let us know here to provide up-to-date information about this development.
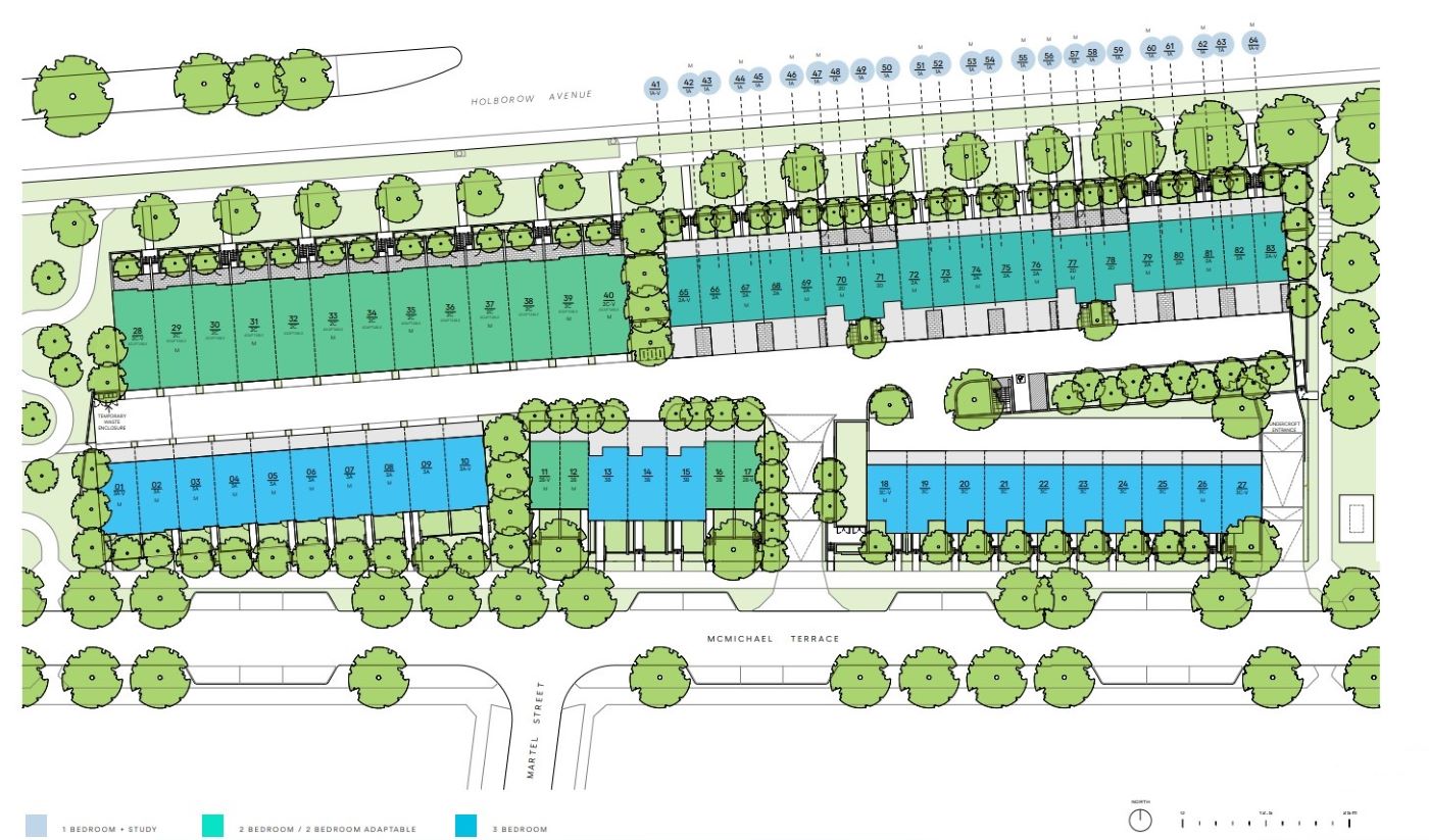
| Total new homes | 83 |
| Area size | 0.94 hectares |
| Growth Region | Canberra Growth Regions |
| City council | Australian Capital Territory |
| Developer | Bronte Group |
| Distance to | Canberra CBD - 9 km west Canberra Airport - 15 km west |
Townhomes:
Popular Estates near Symmetry Estate - Denman Prospect
Updates for Symmetry Estate - Denman Prospect
Location & Map for Symmetry Estate - Denman Prospect
Visit Display Homes near Symmetry Estate - Denman Prospect
Vacancy Rate in Denman Prospect ACT 2611
View full vacancy rate history in Denman Prospect ACT 2611 via SQM Research.
Schools near Symmetry Estate - Denman Prospect
Here are 6 schools near Symmetry Estate - Denman Prospect:
K-10 Government Combined School
K-6 Government Primary School
K-6 Government Primary School
K-6 Independent Primary School
K-12 Independent Combined School
K-6 Catholic Primary School
Suburb Planning Review in Denman Prospect ACT 2611
Denman Prospect is a suburb of approximately 107 hectares within the Australian Capital Territory (ACT). It forms part of the Molonglo Valley district of Canberra, located 24 km South of Queanbeyan and 13 km West of Canberra.

The suburb was officially gazetted in June 2012. It is named in honour of Lady Denman, who famously declared the name "Canberra" during the capital's inauguration in 1913. The suburb forms part of the ACT's broader plan for sustainable urban growth within the Molonglo Valley corridor. It previously consisted of open rural land and has been transformed into a modern residential community.
The suburb boundary is located along John Gorton Drive to the east, with property boundaries, Holborrow Avenue, and a dirt track to the west. Property boundaries, Thwaites Crescent and Uriarra Road form the southern boundary. Molonglo River forms the entire boundary to the north.
The John Gorton Drive provides access to the entire suburb, providing the north-south connection along the eastern boundary. Holborrow Avenue and Ada Norris Avenues provide east and west connections from John Gorton Drive to provide local road networks throughout Denman Prospect.
The southern portion of the suburb is an urban mixed density residential area with parks and a school. The northern portion of the suburb is under new residential development, using the remaining vacant land to provide housing, recreation space and dedicated green space and environmental reserves. The south-west corner of the suburb is undeveloped land and bushland along the Uriarra Road, with a new road stub set up for future connection.

Denman Prospect's Canberra Spatial Plan
The Canberra Spatial Plan (2004) was the first strategic planning document for the ACT since self-government in 1988. It set a clear direction for a more compact city and identified the Molonglo Valley as a key area for future urban development. Its goals—supporting healthy communities, improving connectivity, fostering employment, protecting the natural environment, and maintaining fiscal responsibility—remain relevant today and are echoed in later strategic planning initiatives, including the Time to Talk: Canberra 2030 discussions and the ACT Planning Strategy (2012).
Denman Prospect, ACT's Planning Strategy
The ACT Planning Strategy builds on this foundation by providing a framework to guide future development, spatial planning, and land management across the ACT. It focuses on high-quality urban design, a strong landscape identity, economic growth, integrated transport, housing choice, and access to services—principles that are directly reflected in the planning considerations for Molonglo Valley Stage 2.
Denman Prospect's Territory Plan and Structure Plan
The Territory Plan, as the ACT's main statutory planning instrument, manages land use and development in line with broader strategic goals set by the government and community. It incorporates structure and concept plans, including the Molonglo and North Weston Structure Plan (2008), which outlines specific social, environmental, and economic objectives for development in the area. These include policies around transport, urban design, open space, residential and commercial development, and community infrastructure. Together, these documents form the strategic and statutory foundation for the planning vision and guiding principles applied in Molonglo Valley Stage 2.
Denman Prospect's National Environmental Significance (NES Plan)
In accordance with the Environment Protection and Biodiversity Conservation Act 1999 (EPBC Act), the ACT Government's Molonglo Valley Plan for the Protection of Matters of National Environmental Significance (NES Plan) was approved by the Commonwealth Government as a strategic assessment under Part 10 of the Act.
The NES Plan (Matters of National Environmental Significance Plan) was developed to assess the environmental impacts of urban development proposed under Territory Plan Variation No. 281 and National Capital Plan Amendment No. 63 in the Molonglo Valley.
A NES Plan commitment required that a planning and design framework be prepared to guide detailed planning and future development within Molonglo East, which is located between the Molonglo River and Uriarra Road and comprises the suburb of Denman Prospect, stages of development to the west of the suburb of Coombs.
Mononglo Valley Plan
The Molonglo Valley Plan for the Protection of Matters of National Environmental Significance (NES Plan) was developed in response to the complexity and environmental sensitivity of proposed urban development in the Molonglo Valley. Recognising the potential scale and impact, the ACT and Commonwealth Governments agreed in 2008 to undertake a strategic assessment under Part 10 of the EPBC Act, rather than assess individual projects in isolation.
This agreement was later amended in 2010 to specifically incorporate the NES Plan, which addresses urban development, infrastructure, and broadacre land use in East and West Molonglo and North Weston. The plan is closely tied to the Molonglo and North Weston Structure Plan, a statutory planning instrument within the ACT Territory Plan, which defines the development framework for the region.
The NES Plan reflects both the proposed development activities and the ACT Government’s commitments to protect Matters of National Environmental Significance (MNES). These include ecological features such as natural corridors, significant trees, habitats, and recreational links, with an emphasis on maintaining Canberra’s unique balance between urban form and natural landscape. Key urban planning principles outlined in the Structure Plan promote walkable neighbourhoods, integrated centres, and sensitivity to the valley's topography and character. The Structure Plan will guide development over the next 30 years and will be adapted as needed to uphold conservation priorities and respond to evolving planning requirements.

Denman Prospect's Molonglo Valley Planning Framework
Denman Prospect is part of the Molonglo Valley Stage 2 Urban Development Strategy, which guides land use, infrastructure provision, and environmental management in this growth corridor, approved on 20 December 2011 by the Commonwealth Minister for the Environment.
Residential Development
Molonglo Stage 2 is projected to accommodate 18,000 dwellings, comprising a mix of low- medium density housing residential areas. Residential locations will align with the framework plan.
Environmental Aspect
Stage also involves environmental management, specifically focusing on the river corridor and conservation efforts related to Box-Gum Woodland and the Pink-tailed Worm Lizard, leading to a statutory Plan of Management for the East Molonglo River Corridor.
Commercial Centres
The development will include the following commercial centres, as indicated in the framework plan:
Primary commercial hub of the Molonglo Valley
Alongside smaller local commercial areas.

Denman Prospect's Molonglo Valley Stage 2 – Planning and Design Framework
Molonglo Valley Stage 2 is a major urban development initiative within Canberra’s Molonglo Valley, marking the second stage of the district’s expansion and encompassing three future suburbs. It has been recognised by the Planning Institute of Australia (PIA) with a commendation in the Strategic Planning category, highlighting it as a benchmark in strategic infrastructure design and integrated water quality management.
The project is designed to accommodate approximately 18,000 future residents as part of a broader goal to grow the Molonglo Valley to over 55,000 people by 2050. The design includes:
Housing across mixed residential neighbourhoods, with open space and recreation areas,
Areas under investigation for potential future development
Principal commercial centre with retail, services, and employment opportunities
Community infrastructure, including schools, childcare, healthcare, and other facilities
Transport network featuring arterial roads, public transport, and active travel paths.
Environmental protection of the Molonglo River corridor and Kama Nature Reserve, guided by the NES Plan
Focus on energy and water efficiency, compact development, and climate resilience.
The project stands out for its collaborative approach, involving intensive stakeholder engagement to optimise infrastructure, reduce long-term costs, and ensure future community needs are met. The PIA judges commended it as an example of climate-adaptive, integrated urban design that provides a foundation for resilient, connected neighbourhoods and demonstrates how strategic planning can define the structure and relationship of future urban areas to natural assets like the Molonglo River.

Denman Prospect's Molonglo Valley District Strategy
The Molonglo Valley District Strategy Plan outlines key structural elements and strategic directions for the district, aligned with five major planning drivers (detailed in Volume 1). It serves as a high-level guide to shaping future growth, infrastructure, and community development in the area.
Key Elements Highlighted in the Plan:
Blue-green infrastructure: Existing and potential future ecological and water networks.
Transport connections: Current and proposed new corridors, with some areas flagged for further investigation.
Economic focus areas: Locations identified for enhanced economic development and employment opportunities.
Community centres: Existing and future group/local centres identified for further planning and investment to ensure their viability as community hubs.
Recreational and community facilities: Proposed new sites to serve the growing population.
Future development precincts: Areas earmarked for housing and urban expansion, based on estate plans, land release schedules, or current development proposals, each with estimated dwelling yields.
This plan provides the spatial and strategic framework for coordinated, sustainable urban growth across the Molonglo Valley district.


Molonglo Valley Stage 2 Urban Development
The development application for Molonglo Valley Stage 2 was lodged on 4 September 2020. This application encompassed urban development, associated infrastructure, and a combined sewer and pedestrian link bridge across the Molonglo River. Subsequently, on 19 October 2020, the ACT Government issued a notice confirming the receipt of the application.
Before this, in June 2012, the ACT Government's Economic Development Directorate sought an exemption from the requirement to complete an Environmental Impact Statement (EIS) under Section 211 of the Planning and Development Act 2007. This exemption pertained to the urban development of land comprising part of Molonglo Valley Stage 2, including the provision of associated urban infrastructure and the link bridge.
The planning and design framework for Molonglo Valley Stage 2 was established earlier, with the initial version approved in April 2012. This framework set the strategic context and planning rationale for the future development of Molonglo Valley Stage 2, aiming to accommodate up to 18,000 residents as part of the broader Molonglo Valley development.
Denman Prospect Suburb Development
Denman Prospect is a master-planned suburb located in the Molonglo Valley district of Canberra, ACT. Developed by the Suburban Land Agency (SLA), it forms part of Canberra’s westward urban expansion and is designed to support diverse, sustainable, and connected communities.
Denman Prospect, located in Canberra's Molonglo Valley, is a thoughtfully planned suburb that blends modern urban living with natural surroundings. Developed by Capital Estate Developments, part of the Snow family's Capital Property Group, the suburb has been progressively expanding since its initial stages.
Residential and Community Developments:
Stage 1: 2000 dwellings will be delivered in Stage 1 (A & B)
Stromlo Reach (Stage 2): Approved in February 2024, this development includes approximately 1,000 new homes, comprising a mix of standalone homes, apartments and townhouses, a new school and large park.
The Borough (Stage 3): A significant project within Denman Prospect, The Borough is a master-planned community featuring 700 apartments. Designed by award-winning architectural firms, it emphasises affordable living and is centred around a communal village square. Stage 1 is expected to be completed by 2025.
The Boulevard: This development offers a range of 1, 2, and 3-bedroom apartments, complemented by amenities such as landscaped gardens, a pool, co-working spaces, and a top-floor community dining room with expansive views of Canberra.
Educational Infrastructure
Evelyn Scott School, located in Denman Prospect, ACT, is a contemporary public school serving students from Preschool to Year 10. Named after Dr. Evelyn Scott, a prominent Indigenous Australian activist and educator, the school embodies a commitment to reconciliation and the advancement of Aboriginal and Torres Strait Islander peoples.
The school opened its junior campus in 2021, catering to Preschool through Year 6 students, and expanded to include a senior campus for Years 7 to 10 in 2023. This integration created a cohesive P–10 learning environment, accommodating up to 1,288 students. Facilities include integrated indoor and outdoor learning spaces, a double gymnasium with seating for 300, a sporting oval, hardcourts, a library/resource centre, and secure bicycle parking.

Denman Prospect Suburb Summary
References
- City Renewal Authority – Planning and Urban Renewal (Denman Prospect & Molonglo)
- ACT Environment, Planning and Sustainable Development Directorate (EPSDD)
- ACT Planning System Review and Reform
- ACT ePlan – Interactive Territory Plan Viewer
- Molonglo Valley Development Guidelines (includes Denman Prospect)
- The Territory Plan - Environment, Planning and Sustainable Development Directorate
- Denman Prospect ‘Deferred Area’
- Molonglo Valley MNES Plan Annual Report 2015-16
- Matters of National Environmental Significance: Significant Impact Guidelines 1.1
- ACT Planning Strategy
- The Canberra Spatial Plan
Reviews & Comments on Symmetry Estate - Denman Prospect
Estate Brochure, Masterplan, Engineering Plan, Plan of Subdivision (POS), Design Guidelines
FAQs about Symmetry Estate - Denman Prospect
View all estates from Bronte Group
- Evelyn Scott School - 800m south
- Charles Weston School - 2.6km south-east
- Duffy Primary School - 3.9km south
- Canberra Montessori School - 4.2km south-east
- Orana Steiner School - 4.2km south-east
- St Jude's Primary School - 4.3km south-east
Popular Estates near Symmetry Estate - Denman Prospect
Latest New Home Articles for You
19/Aug/2025 | OpenLot.com.au
🏡 Suburb Profile: Beveridge
19/Aug/2025 | OpenLot.com.au
test
19/Aug/2025 | OpenLot.com.au
tests
13/Jun/2025 | OpenLot.com.au
Display Homes at Playford Alive Estate: A Thriving Community at the Heart of Munno Para
Welcome to Playford Alive, a vibrant and dynamic masterplanned community ...
11/Jun/2025 | OpenLot.com.au
Display Homes at Ocean Hill Estate: A Thriving Community by the Coast
A short stroll from the white sands of Madora Beach and fringed by the co...
10/Jun/2025 | OpenLot.com.au
Display Homes at Bluestone Estate: An Established Community in the Mount Barker
Whether you’re a first home buyer, a growing family, or looking to downsi...
09/Jun/2025 | OpenLot.com.au
Queensland Leads, But NSW and VIC Fall Behind, in New Housing Buyer Demand Index
New data reveals that Australia’s new housing market remains resilient de...
06/Jun/2025 | OpenLot.com.au
Display Homes at Minters Fields Estate: A Scenic Hillside Community in Mount Barker
Nestled in the heart of Mount Barker, Minters Fields offers a truly remar...
03/Jun/2025 | OpenLot.com.au
🏡 Step Inside a Frenken Home at Smiths Lane
During a recent visit to the Smiths Lane display village, OpenLot.com.au ...









